Pronájem obchodního prostoru, Strakonice, Bezděkovská, 111 m2

Bezděkovská, Strakonice II

19 900 Kč /za měsíc Získejte výhodnou HYPOTÉKU

(Cena je uvedena bez DPH)

Exkluzivní partneři v Strakonicích

Výkup a prodej starého nábytku

Pojištění a finance

Informace k nemovitosti

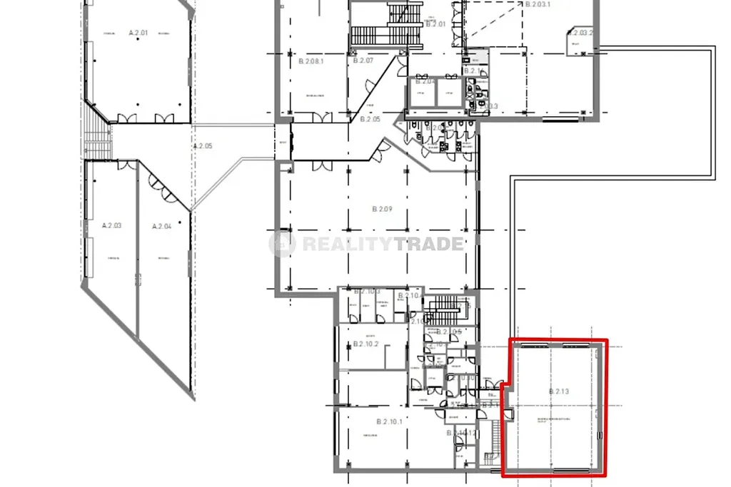
Pronájem obchodního, komerčního prostoru 111,18 m2 v 1.patře OC Maxim, v centru okresního města Strakonice, vhodného pro obchod, služby či kanceláře. K dispozici ihned. Nájemce musí být plátcem DPH! Nabízíme pronájem komerčního prostoru č. 48, č. B.2.13 o rozloze 111,18 m2 ve 2.NP (1.patro) OC Maxim v centru Strakonic. Vhodné využití na obchod nebo služby. Jedná se o provozovnu, kde jsou instalovány nová světla a nové výkladce i vstupní dveře. Podlahová krytina - dlažba. Světlá výška činí 3,20 m. Manipulace se zbožím je možná z nákladové rampy v zadním traktu budovy prostřednictvím dvou nákladních výtahů. Provozovna se nachází na lukrativním místě, v pasáži (přízemí) hlavní budovy centra.

Vytápění je zajištěno úspornými elektrickými přímotopy. Možnost připojení k internetu za poplatek cca 250 Kč měsíčně (nájemce hradí přímo dodavateli, který sídlí v objektu). Úprava dispozice provozovny je po dohodě možná dle požadavků nájemce.

V nájemném nejsou zahrnuty poplatky za služby ve společných prostorách. Vyúčtování za využívání společných prostor probíhá jednou za rok dle poměru plochy, a to v měsíci červnu, a orientačně činí: vodné/stočné cca 1.200 Kč/rok, společná elektřina cca 5.400 Kč/rok, úklid společných prostor cca 6.200 Kč/rok, svoz a uložení odpadů cca 2.600 Kč/rok. Elektřinu (samostatný elektroměr) si platí nájemce dle skutečné spotřeby, kdy elektroměr je převeden přímo na nájemce. V objektu je k dispozici Wi-Fi připojení zdarma pro zákazníky centra. Energetická náročnost budovy stupeň D - méně úsporná.

Pro svou atraktivní polohu v centru okresního města nabízí OC Maxim rychlou a dostupnou možnost nákupu a služeb, jak pro obyvatele Strakonic, tak i pro náhodné návštěvníky a turisty. Velkou výhodou je možnost zaparkování na přilehlých parkovištích, ať už placených či neplacených. Všechna placená parkoviště v okolí jsou prvních 30 minut zdarma. V OC Maxim naleznete 42 provozoven na 4.200 m2 prodejní plochy. Budova prošla během roku 2011 kompletní stavební rekonstrukcí, která spočívala v zateplení objektu, výměně oken, výměně výkladců, výměně dveří a úpravě vnitřních prostor. Celý objekt vytváří v současné době svou koncepcí i novým, atraktivním vzhledem příjemné prostředí pro zákazníky i nájemce. Nájemci mohou po dohodě využít reklamní plochy centra.

Nabízený prostor je k dispozici ihned. Nájemce musí být plátce DPH! Pokud Vám nevyhovuje tento prostor, a hledáte atraktivní prostory pro své podnikání, neváhejte nás kontaktovat telefonicky na čísle 602 271 334. Vždy jsme schopni nabídnout různorodé prostory od malých či sdílených prostor, až po velké provozovny, vše v různých cenových relacích dle konkrétního umístění.

Parametry nemovitosti

Cena
19 900 Kč /za měsíc
Poznámka k ceně
Cena je uvedena bez DPH
Aktualizováno
16. 3. 2026
Adresa
Bezděkovská, Strakonice II
ID
880
Stavba
Montovaná
Stav objektu
Velmi dobrý
Lokalita objektu
Centrum obce
Užitná plocha
111 m2
Zastavěná plocha
2500 m2
Podlahová plocha
111 m2
Třída energetické náročnosti
D - Méně úsporná
Ukazatel energetické náročnosti
152 kWh/m2 za rok
Elektřina
230V, 400V
Telekomunikace
Telefon, Internet, Kabelové rozvody
Doprava
Vlak, MHD, Autobus
Výtah
Bezbarierový přístup
Parkování

Kontaktovat makléře

Realitní kancelář

REALITYTRADE

Pracejovice 8, Pracejovice

Chystáte se prodat nemovitost?
Pomůžeme Vám!

Máte zájem o tuto nemovistost?

Tímto, v souladu s nařízením Evropského parlamentu a Rady (EU) 2016/679, v platném znění, prohlašuji, že mi je alespoň 16 let a uděluji tak svůj souhlas se zpracováním zadaných údajů (jméno, telefon, e-mail, ip adresa) společnosti B3 Technology, s.r.o., IČ: 07330600, se sídlem Novostavby 126/23, 435 11 Lom (správce dat), za účelem předání dotazu z tohoto formuláře Vámi vybranému inzerentovi a zpětného kontaktování mé osoby. Osobní údaje bude správce zpracovávat manuálně i automaticky přímo prostřednictvím svých zaměstnanců. Informace předané tímto formulářem budou uloženy v databázi správce maximálně po dobu 10 let. Odvolání souhlasu s uložením a zpracováním poskytnutých dat lze e-mailem na info@vitio.cz. V případě podezření na neoprávněné použití Vámi poskytnutých údajů máte právo předat podnět k šetření Úřadu pro ochranu osobních údajů. Více informací
Chystáte se prodat nemovitost?
Pomůžeme Vám!
Theleadway banner

Inzerát si prohlédlo 5 lidí

Prodejce

Petr Strbačka

Petr Strbačka

Hlídací pes

Chcete dostávat emailem podobné nabídky pronájmu obchodních prostor v Strakonicích?

Podobné nemovitosti