Prodej pozemku pro bydlení, Malá Losenice, 1196 m2

Malá Losenice

2 990 Kč /za metr čtvereční HYPOTÉKA od 13 Kč /za měsíc
Exkluzivní partneři v Malé Losenici

Pojištění a finance

Informace k pozemku

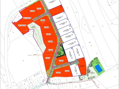
Nabízíme k prodeji devět kompletně zasíťovaných stavebních parcel pro výstavbu rodinných domů v katastrálním území Malá Losenice.
Výměra pozemků je od 1188 m2 do 2328 m2 dle vašich požadavků.
Součástí ceny je vyhotovení individuálního projektu pro výstavbu rodinných domů, včetně vyřízení stavebního povolení.
Pozemky jsou vybaveny přípojkou veřejné splaškové kanalizace a obecního vodovodu, rozvody nízkého napětí (NN) jsou ukončeny ve skříni PPS, elektroměrové rozvaděče jsou usazeny, připojovací poplatek (3x25A) uhrazen. Lokalita je vybavena veřejným osvětlením, asfaltovou komunikací a optickými kabely pro rozvod internetu.
Pozemky jsou v klidné lokalitě na mírném jižním svahu s dobrou dostupností do města Žďár nad Sázavou, Přibyslavi.
Nabízené pozemky se pyšní nejen svoji atraktivní polohou v těsné blízkosti nádherné přírody, která vybízí k procházkám, cyklistice a sportovním aktivitám, ale také klidným a útulným prostředím.
Jedná se o jedinečné místo stranou od rušných hlavních komunikací, v těsném sousedsví rozsáhlých lesů, konkrétně v CHKO Žďárské vrchy, kde Vaše klidné bydlení nic rušit nebude. Tato lokalita má velký potenciál stát se prémiovou a prestižní adresou.
A vy můžete být i toho.

Parametry pozemku

Cena
2 990 Kč /za metr čtvereční Spočítat hypotéku
Aktualizováno
14. 3. 2026
Adresa
Malá Losenice
ID
5646
Plocha pozemku
1196 m2
Elektřina
230V
Komunikace
Dlážděná, Asfaltová
Doprava
Silnice, Autobus
Převod do OV

Kontaktovat makléře

Máte zájem o tento pozemek?

Tímto, v souladu s nařízením Evropského parlamentu a Rady (EU) 2016/679, v platném znění, prohlašuji, že mi je alespoň 16 let a uděluji tak svůj souhlas se zpracováním zadaných údajů (jméno, telefon, e-mail, ip adresa) společnosti B3 Technology, s.r.o., IČ: 07330600, se sídlem Novostavby 126/23, 435 11 Lom (správce dat), za účelem předání dotazu z tohoto formuláře Vámi vybranému inzerentovi a zpětného kontaktování mé osoby. Osobní údaje bude správce zpracovávat manuálně i automaticky přímo prostřednictvím svých zaměstnanců. Informace předané tímto formulářem budou uloženy v databázi správce maximálně po dobu 10 let. Odvolání souhlasu s uložením a zpracováním poskytnutých dat lze e-mailem na info@vitio.cz. V případě podezření na neoprávněné použití Vámi poskytnutých údajů máte právo předat podnět k šetření Úřadu pro ochranu osobních údajů. Více informací
Chystáte se prodat nemovitost?
Pomůžeme Vám!
Theleadway banner

Inzerát si prohlédlo 5 lidí

Prodejce

Zdeňka Hospodková

Zdeňka Hospodková

Hlídací pes

Chcete dostávat emailem podobné nabídky prodeje pozemků pro bydlení v Malé Losenici?

Podobné nemovitosti