Prodej půdního prostoru, Jihlava, Kosmákova, 160 m2

Kosmákova, Jihlava

2 200 000 Kč /za nemovitost HYPOTÉKA od 9 833 Kč /za měsíc

(včetně poplatků, včetně provize, včetně právního servisu)

Exkluzivní partneři v Jihlavě

Informace k nemovitosti

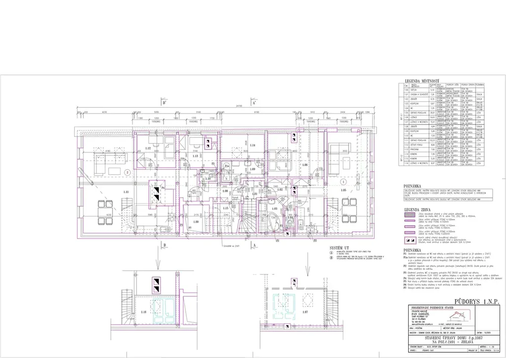
Nabízíme prodej půdního prostoru (jiný nebytový prostor) v bytovém domě. Půda má celkovou podlahovou plochu 199 m2 (viz. půdorys) a v tomto stavu se nemovitost prodává.

Možnost využití:
Půdní prostor nabízí velmi zajímavý developerský potenciál pro vybudování dvou mezonetových bytových jednotek. Dle připraveného návrhu lze realizovat:
• 1. bytovou jednotku (2+kk) o celkové výměře 67,75 m², řešenou jako mezonet s obytnou částí ve spodním podlaží a spací místností v horním patře.
• 2. bytovou jednotku (3+kk) o celkové výměře 93,24 m², rovněž v mezonetovém provedení s oddělenou spací částí v horním podlaží.

Dispozice nabízí moderní a velmi žádané bydlení s otevřeným prostorem a efektivním využitím podkroví.

Projekční činnost:
Aktuálně se řeší stavební povolení. Nemovitost bude prodávána včetně schváleného stavebního povolení (s nabytím právní moci). Vyřízení stavebního povolení vyřizuje majitel.

Realizace:
Na základě připraveného návrhu půdorysu je předběžný rozpočet realizace přibližně 6,6 mil. Kč, který deklaruje stavební firma připravená projekt i realizovat (není podmínkou). Veškeré detaily je možné projednat při osobním jednání.

Lokalita:
Nemovitost se nachází přímo v centru města Jihlava – ulice Kosmákova, která nabízí kompletní občanskou vybavenosti. V bezprostředním okolí se nachází obchody, školy, restaurace, lékaři, lékárna, obchodní centrum i zastávky MHD.

Projekt tak představuje zajímavou příležitost jak pro investora, tak pro developera hledajícího projekt s připravenou dokumentací a jasným plánem realizace.

Parametry nemovitosti

Cena
2 200 000 Kč /za nemovitost Spočítat hypotéku
Poznámka k ceně
včetně poplatků, včetně provize, včetně právního servisu
Aktualizováno
14. 3. 2026
Adresa
Kosmákova, Jihlava
ID
00902
Stavba
Cihlová
Stav objektu
Dobrý
Vybaveno
Ne
Lokalita objektu
Centrum obce
Užitná plocha
160 m2
Elektřina
230V
Plyn
Plynovod
Odpad
Veřejná kanalizace
Komunikace
Asfaltová
Telekomunikace
Internet
Doprava
Vlak, Dálnice, Silnice, MHD, Autobus
Voda
Vodovod
Zdroj teplé vody
Plynový kotel

Kontaktovat makléře

Máte zájem o tuto nemovistost?

Tímto, v souladu s nařízením Evropského parlamentu a Rady (EU) 2016/679, v platném znění, prohlašuji, že mi je alespoň 16 let a uděluji tak svůj souhlas se zpracováním zadaných údajů (jméno, telefon, e-mail, ip adresa) společnosti B3 Technology, s.r.o., IČ: 07330600, se sídlem Novostavby 126/23, 435 11 Lom (správce dat), za účelem předání dotazu z tohoto formuláře Vámi vybranému inzerentovi a zpětného kontaktování mé osoby. Osobní údaje bude správce zpracovávat manuálně i automaticky přímo prostřednictvím svých zaměstnanců. Informace předané tímto formulářem budou uloženy v databázi správce maximálně po dobu 10 let. Odvolání souhlasu s uložením a zpracováním poskytnutých dat lze e-mailem na info@vitio.cz. V případě podezření na neoprávněné použití Vámi poskytnutých údajů máte právo předat podnět k šetření Úřadu pro ochranu osobních údajů. Více informací
Chystáte se prodat nemovitost?
Pomůžeme Vám!

Inzerát si prohlédlo 0 lidí

Prodejce

Dominik Ecker

Dominik Ecker

Hlídací pes

Chcete dostávat emailem podobné nabídky prodeje půdních prostor v Jihlavě?

Podobné nemovitosti