Prodej louky, Vranovice, 6440 m2

Vranovice

Cena na vyžádání /za nemovitost Získejte výhodnou HYPOTÉKU

(volejte makléři, včetně DPH, včetně poplatků, včetně provize, včetně právního servisu)

Exkluzivní partneři v Vranovicích

Informace k pozemku

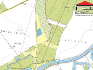
Prodej rovinatého pozemku 6440 m², v KÚ obce Vranovice nad Svratkou, mezi lokalitami Velké louky a Zahrádky. Jedná se o plochy ZT trvalé travní porosty a NH plochy lesů.
- na plochách ZT lze v souladu s jejich charakterem "umisťovat stavby, zařízení a jiná opatření pouze pro
zemědělství, vodní hospodářství, těžbu nerostů, pro protierozní a protipovodňovou ochranu, pro ochranu přírody
a krajiny a dále taková technická opatření a stavby, které zlepší podmínky jeho využití pro účely rekreace, např.
cyklistické stezky, hygienická zařízení, ekologická a informační centra
- na plochách NH, pozemky vodních toků, lze "umisťovat stavby, zařízení a jiná opatření pouze pro lesní
hospodářství, pro ochranu přírody a krajiny pro veřejnou dopravní a technickou infrastrukturu, přípojky a účelové
komunikace, pro snižování nebezpečí ekologických a přírodních katastrof a pro odstraňování jejich důsledků
Dle ÚP se pozemek parc. č. 4280 téměř celý nachází v aktivní zóně Q20 záplavového území vodního toku. Vzhledem k tomu bude potřeba konkrétní záměr předložit a konzultovat se stavebním úřadem v Pohořelicích.

Parametry pozemku

Cena
Cena na vyžádání Spočítat hypotéku
Poznámka k ceně
volejte makléři, včetně DPH, včetně poplatků, včetně provize, včetně právního servisu
Aktualizováno
12. 3. 2026
Adresa
Vranovice
ID
IETB99546
Druh objektu
V bloku
Plocha pozemku
6440 m2

Kontaktovat makléře

Máte zájem o tento pozemek?

Tímto, v souladu s nařízením Evropského parlamentu a Rady (EU) 2016/679, v platném znění, prohlašuji, že mi je alespoň 16 let a uděluji tak svůj souhlas se zpracováním zadaných údajů (jméno, telefon, e-mail, ip adresa) společnosti B3 Technology, s.r.o., IČ: 07330600, se sídlem Novostavby 126/23, 435 11 Lom (správce dat), za účelem předání dotazu z tohoto formuláře Vámi vybranému inzerentovi a zpětného kontaktování mé osoby. Osobní údaje bude správce zpracovávat manuálně i automaticky přímo prostřednictvím svých zaměstnanců. Informace předané tímto formulářem budou uloženy v databázi správce maximálně po dobu 10 let. Odvolání souhlasu s uložením a zpracováním poskytnutých dat lze e-mailem na info@vitio.cz. V případě podezření na neoprávněné použití Vámi poskytnutých údajů máte právo předat podnět k šetření Úřadu pro ochranu osobních údajů. Více informací
Chystáte se prodat nemovitost?
Pomůžeme Vám!

Inzerát si prohlédlo 0 lidí

Prodejce

Patricie Vojtěchovská

Patricie Vojtěchovská

Hlídací pes

Chcete dostávat emailem podobné nabídky prodeje louk v Vranovicích (okr. Brno-venkov)?

Podobné nemovitosti