Prodej pozemku, Častolovice, Na Skalce, 251 m2

Na Skalce, Častolovice

1 195 000 Kč HYPOTÉKA od 5 341 Kč /za měsíc

(včetně provize RK)

Exkluzivní partneři v Častolovicích

Informace k pozemku

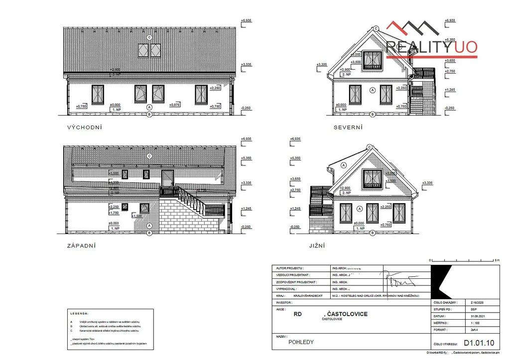
Stavební pozemek s hotovými základy a povolením Častolovice 251 m² začněte stavět

Nabízíme k prodeji stavební pozemek připravený k okamžité realizaci dvoupodlažního rodinného domu. Zapomeňte na roky vyřizování dokumentace – zde je vše hotové.

Stav připravenosti: Na pozemku jsou hotové základy po původní stavbě, stačí položit rozvody a betonovou desku.

Inženýrské sítě: Obecní vodovod, kanalizace i elektřina (sloup ČEZ) jsou přímo na pozemku a připraveny k napojení.

Projekt v ceně: Projektová dokumentace na 2-podlažní dům, schválená památkáři se všemi povoleními.

Bonusy na pozemku: Plechový sklad na materiál, zásoba kamene a starých cihel na stylové oplocení/záhony, břidlicový obklad, hranoly a další materiál využitelný při stavbě.

Doporučení: Pokud máte v plánu žádat o dotace "Oprav dům po Babičce", nečekejte na červen. Od dubna vyhledejte certifikovaného poradce (seznam bude na webu novazelenausporam. cz), aby vám připravil renovační pas. Bez něj se v nové vlně dotací pravděpodobně nepohnete.

Máte za sebou tu nejúnavnější část – „papírovou válku“ s úřady a památkáři, a k tomu připravenou infrastrukturu.
Tato nabídka šetří minimálně 2 roky vašeho času, který byste jinak strávili projektováním a úředním procesem.

Parametry pozemku

Cena
1 195 000 Kč Spočítat hypotéku
Poznámka k ceně
včetně provize RK
Aktualizováno
11. 3. 2026
Adresa
Na Skalce, Častolovice
ID
0063
Lokalita objektu
Centrum obce
Plocha pozemku
251 m2

Kontaktovat makléře

Realitní kancelář

Milan Šponar

Říčky 26, Orlické Podhůří

Chystáte se prodat nemovitost?
Pomůžeme Vám!

Máte zájem o tento pozemek?

Tímto, v souladu s nařízením Evropského parlamentu a Rady (EU) 2016/679, v platném znění, prohlašuji, že mi je alespoň 16 let a uděluji tak svůj souhlas se zpracováním zadaných údajů (jméno, telefon, e-mail, ip adresa) společnosti B3 Technology, s.r.o., IČ: 07330600, se sídlem Novostavby 126/23, 435 11 Lom (správce dat), za účelem předání dotazu z tohoto formuláře Vámi vybranému inzerentovi a zpětného kontaktování mé osoby. Osobní údaje bude správce zpracovávat manuálně i automaticky přímo prostřednictvím svých zaměstnanců. Informace předané tímto formulářem budou uloženy v databázi správce maximálně po dobu 10 let. Odvolání souhlasu s uložením a zpracováním poskytnutých dat lze e-mailem na info@vitio.cz. V případě podezření na neoprávněné použití Vámi poskytnutých údajů máte právo předat podnět k šetření Úřadu pro ochranu osobních údajů. Více informací
Chystáte se prodat nemovitost?
Pomůžeme Vám!

Inzerát si prohlédlo 0 lidí

Prodejce

Milan Šponar

Milan Šponar

Hlídací pes

Chcete dostávat emailem podobné nabídky prodeje pozemků v Častolovicích?

Podobné nemovitosti