Prodej vily, Čista Mala,Chorvatsko, 244 m2

Čista Mala,Chorvatsko

14 559 974 Kč /za nemovitost
Exkluzivní partneři

Informace k domu

Tento unikátní dům se nachází v obci ČISTA MALA ve vnitrozemí Vodice, asi 15 minut jízdy autem od prvních pláží a měst Vodice a Pirovac a je také jen 1 km od dálnice.
Poloha objektu je ideální! Nabízí blízkost ke všemu a na druhou stranu klid, venkovskou idylu a klidnou dovolenou...!

Zařízený samostatně stojící dům s velkou zahradou a bazénem, ​​o rozloze 245 m2 a skládá se z přízemí a horního patra.
Dům byl kompletně zrekonstruován (jinak byl postaven v roce 1984) a některé z jeho prvků jsou: nová fasáda, střecha, okapy, tesařské práce, moskytiéry, nábytek, klimatizace, kompletní instalace vody a elektřiny.
K dispozici je také sklep zakopaný hluboko v zemi, který lze využít jako vinný sklep nebo místo pro sušení a skladování dalmatských specialit.

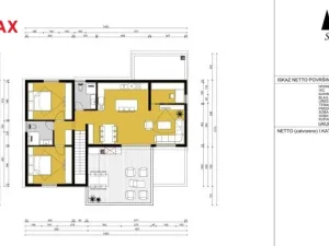
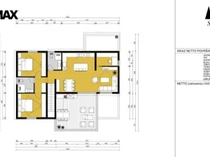
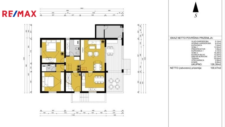
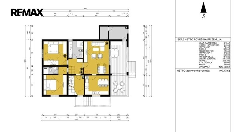
V přízemí se nachází komfortní byt o rozloze 126,30 m2, který se skládá ze vstupní haly a předsíně se skříněmi, 2 ložnic, 2 koupelen, kuchyně s jídelnou a obývacího pokoje s přístupem na východní uzavřenou lodžii (kde se nachází toaleta pro hosty), s výhledem na zelenou zahradu a bazén.

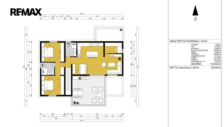
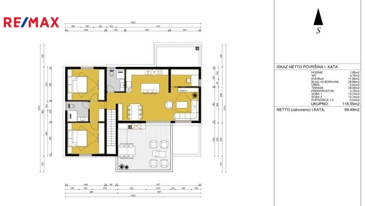
V patře - po vystoupení po vnitřním schodišti se nachází další byt o rozloze 118,55 m2, který se skládá z: chodby s toaletou, 2 ložnic s koupelnou, vstupní haly, pracovny, obrovské kuchyně s jídelnou a obývacího pokoje s přístupem na jižní slunnou terasu.

Dvůr o rozloze 760 m2 je skutečnou zelenou oázou s bazénem pro relaxaci v naprostém soukromí a 4 parkovacími místy.

Vila je ideální pro užívání větší rodinou nebo pro dvě rodiny, protože patra jsou zcela oddělená a mají pouze společný venkovní vchod do domu.
Je vhodný i k turistickému pronájmu, protože nabízí klid, požitek a samotu, únik z velkoměst a rychlého života.
Vzdálenost od moře a pláže v Pirovaci 16 km (17 min), do Vodice 16 km (15 min), 1 km od dálnice, 17 km od NP Krka, 27 km od Murteru (NP Kornati), 71 km od NP Paklenica, 37 km od přírodního parku Vranjsko jezero, 49 km od letiště v Zadaru a 70 km od letiště ve Splitu. Prodávající si vyhrazuje právo vybrat kupujícího na základě jím zvolených kritérií.

Parametry domu

Cena
14 559 974 Kč /za nemovitost
Aktualizováno
11. 4. 2026
Adresa
Čista Mala,Chorvatsko
ID
261-NP01184
Stavba
Cihlová
Stav objektu
Velmi dobrý
Typ objektu
Patrový
Druh objektu
Samostatný
Lokalita objektu
Okraj obce
Užitná plocha
244 m2
Plocha pozemku
760 m2
Třída energetické náročnosti
G - Mimořádně nehospodárná
Převod do OV

Kontaktovat makléře

Realitní kancelář

RE/MAX Optimal

třída Národní svobody 181/26, Písek

Chystáte se prodat nemovitost?
Pomůžeme Vám!

Máte zájem o tento dům?

Tímto, v souladu s nařízením Evropského parlamentu a Rady (EU) 2016/679, v platném znění, prohlašuji, že mi je alespoň 16 let a uděluji tak svůj souhlas se zpracováním zadaných údajů (jméno, telefon, e-mail, ip adresa) společnosti B3 Technology, s.r.o., IČ: 07330600, se sídlem Novostavby 126/23, 435 11 Lom (správce dat), za účelem předání dotazu z tohoto formuláře Vámi vybranému inzerentovi a zpětného kontaktování mé osoby. Osobní údaje bude správce zpracovávat manuálně i automaticky přímo prostřednictvím svých zaměstnanců. Informace předané tímto formulářem budou uloženy v databázi správce maximálně po dobu 10 let. Odvolání souhlasu s uložením a zpracováním poskytnutých dat lze e-mailem na info@vitio.cz. V případě podezření na neoprávněné použití Vámi poskytnutých údajů máte právo předat podnět k šetření Úřadu pro ochranu osobních údajů. Více informací
Chystáte se prodat nemovitost?
Pomůžeme Vám!

Inzerát si prohlédlo 5 lidí

Prodejce

Aleš Kudrlička

Aleš Kudrlička

Hlídací pes

Chcete dostávat emailem podobné nabídky prodeje vil?

Podobné nemovitosti