Prodej bytu 4+kk, Tachov, Palackého, 80 m2

Palackého, Tachov

4 495 000 Kč /za nemovitost HYPOTÉKA od 20 090 Kč /za měsíc
Exkluzivní partneři v Tachově

Stěhovací služby

Informace k bytu

Exkluzivně nabízíme k prodeji moderní byt 4+kk s balkonem v jedinečném developerském projektu v klidné rezidenční lokalitě města Tachova, ulice Palackého. Jedná se o výjimečnou příležitost stát se majitelem nového nízkoenergetického bytu v právě vznikajícím moderním bytovém domě, který splňuje nároky současného komfortního a kvalitního bydlení.
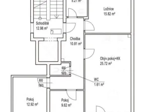
Bytová jednotka o dispozici 4+kk a podlahové ploše 80,23 m2 je situována ve 3. nadzemním podlaží bytového domu s výtahem. Součástí bytu je balkon o velikosti 5,59 m2, který poskytuje příjemný prostor pro relaxaci a každodenní odpočinek. K bytové jednotce náleží také sklepní kóje, která rozšiřuje možnosti úložného prostoru.
Dispozice bytu zahrnuje vstupní chodbu, prostorný obývací pokoj s kuchyňským koutem, ložnici a další dva samostatné pokoje, které lze využít jako dětské pokoje, pracovnu nebo pokoj pro hosty. K dispozici je koupelna s vanou a přípravou pro pračku a také samostatné WC s umývátkem. Standardem provedení je vinylová podlaha a komfortní teplovodní podlahové vytápění. Budoucí majitelé mají možnost ovlivnit finální vzhled interiéru výběrem povrchů jako jsou obklady, dlažby nebo podlahové krytiny, a přizpůsobit si tak bydlení vlastním představám.
Rezidenční dům nabídne veškeré zázemí pro moderní bydlení. K dispozici bude osobní výtah, kočárkárna či kolárna, sušárna, technické prostory i prakticky řešené společné části domu. V areálu jsou plánována garážová stání a dvojgaráže pro pohodlné parkování rezidentů. Energetickou úspornost objektu zajišťuje kvalitní zateplení budovy a instalace fotovoltaických panelů, které budou sloužit jako předohřev teplé vody.
Podrobnější informace o standardech provedení, plánovaném termínu dokončení, lokalitě či technických parametrech projektu Vám rádi poskytneme při osobní prohlídce s realitní makléřkou. S financováním koupě bytu prostřednictvím hypotečního úvěru Vám také rádi pomůžeme.

Parametry bytu

Cena
4 495 000 Kč /za nemovitost Spočítat hypotéku
Aktualizováno
9. 3. 2026
Adresa
Palackého, Tachov
ID
JR0626
Stavba
Cihlová
Stav objektu
Novostavba
Patro
3. z 5
Typ objektu
Patrový
Vlastnictví
Osobní
Užitná plocha
80 m2
Podlahová plocha
85 m2
Třída energetické náročnosti
B - Velmi úsporná
Topení
Ústřední plynové
Balkon
Sklep
Bezbarierový přístup

Kontaktovat makléře

Máte zájem o tento byt?

Tímto, v souladu s nařízením Evropského parlamentu a Rady (EU) 2016/679, v platném znění, prohlašuji, že mi je alespoň 16 let a uděluji tak svůj souhlas se zpracováním zadaných údajů (jméno, telefon, e-mail, ip adresa) společnosti B3 Technology, s.r.o., IČ: 07330600, se sídlem Novostavby 126/23, 435 11 Lom (správce dat), za účelem předání dotazu z tohoto formuláře Vámi vybranému inzerentovi a zpětného kontaktování mé osoby. Osobní údaje bude správce zpracovávat manuálně i automaticky přímo prostřednictvím svých zaměstnanců. Informace předané tímto formulářem budou uloženy v databázi správce maximálně po dobu 10 let. Odvolání souhlasu s uložením a zpracováním poskytnutých dat lze e-mailem na info@vitio.cz. V případě podezření na neoprávněné použití Vámi poskytnutých údajů máte právo předat podnět k šetření Úřadu pro ochranu osobních údajů. Více informací
Chystáte se prodat nemovitost?
Pomůžeme Vám!

Inzerát si prohlédlo 0 lidí

Prodejce

Jitka Rejtharová

Jitka Rejtharová

Hlídací pes

Chcete dostávat emailem podobné nabídky prodeje bytů 4+kk v Tachově?

Podobné nemovitosti