Pronájem kanceláře, Praha - Řepy, 60 m2

Praha, Řepy

25 000 Kč /za nemovitost Získejte výhodnou HYPOTÉKU

(+ poplatky 2.500 Kč (voda, plyn))

Exkluzivní partneři v Praze 6

Stěhovací služby

Výkup a prodej starého nábytku

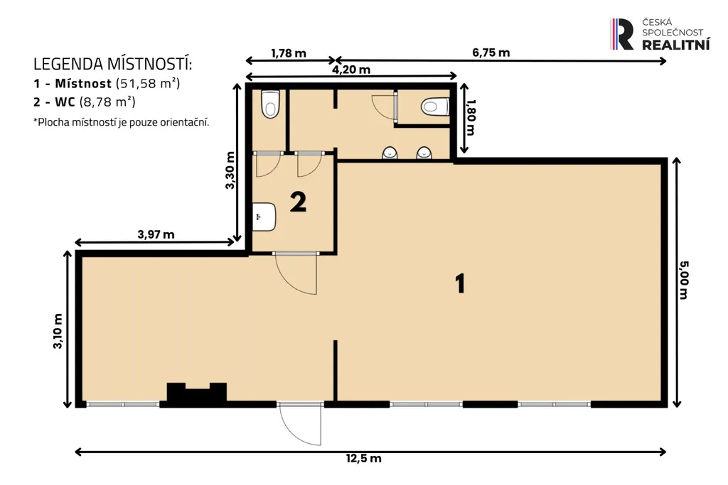
Informace k nemovitosti

Pronajměte si nebytový prostor na Karlovarské ulici!

Prostor se nachází u frekventované silnice, takže vaši reklamu uvidí tisíce projíždějících aut denně. V docházkové vzdálenosti je zastávka autobusu i tramvají 22 a 25, což zajišťuje pohodlný přístup pro klienty i zaměstnance.

O prostoru

k dispozici od 1. 6. 2026

prostor bude prázdný, připravený k vlastnímu uspořádání

součástí jsou dvě toalety

vytápění plynem (vafky + radiátor)

možnost parkování klientů přímo u objektu

preferujeme klidný typ činnosti

Náklady

Nájemné: 25 000 Kč / měsíc

Poplatky: 2 500 Kč / měsíc (voda, plyn, odpad)

Elektřina se převádí na nájemníka

Více info u makléře 730 701 701

Parametry nemovitosti

Cena
25 000 Kč /za nemovitost
Poznámka k ceně
+ poplatky 2.500 Kč (voda, plyn)
Aktualizováno
11. 3. 2026
Adresa
Praha, Řepy
ID
N90783
Stavba
Cihlová
Stav objektu
Dobrý
Typ objektu
Přízemní
Vlastnictví
Osobní
Užitná plocha
60 m2
Podlahová plocha
60 m2
Třída energetické náročnosti
G - Mimořádně nehospodárná
Elektřina
230V
Plyn
Plynovod
Odpad
Veřejná kanalizace
Topení
Ústřední plynové
Komunikace
Asfaltová
Telekomunikace
Kabelová televize
Doprava
Dálnice, Silnice, MHD, Autobus
Voda
Vodovod
Parkování

Kontaktovat makléře

Máte zájem o tuto nemovistost?

Tímto, v souladu s nařízením Evropského parlamentu a Rady (EU) 2016/679, v platném znění, prohlašuji, že mi je alespoň 16 let a uděluji tak svůj souhlas se zpracováním zadaných údajů (jméno, telefon, e-mail, ip adresa) společnosti B3 Technology, s.r.o., IČ: 07330600, se sídlem Novostavby 126/23, 435 11 Lom (správce dat), za účelem předání dotazu z tohoto formuláře Vámi vybranému inzerentovi a zpětného kontaktování mé osoby. Osobní údaje bude správce zpracovávat manuálně i automaticky přímo prostřednictvím svých zaměstnanců. Informace předané tímto formulářem budou uloženy v databázi správce maximálně po dobu 10 let. Odvolání souhlasu s uložením a zpracováním poskytnutých dat lze e-mailem na info@vitio.cz. V případě podezření na neoprávněné použití Vámi poskytnutých údajů máte právo předat podnět k šetření Úřadu pro ochranu osobních údajů. Více informací
Chystáte se prodat nemovitost?
Pomůžeme Vám!

Inzerát si prohlédlo 2 lidí

Prodejce

Ing. Edita Navrátilová

Ing. Edita Navrátilová

Hlídací pes

Chcete dostávat emailem podobné nabídky pronájmu kanceláří v Praze 6?