Prodej bytu 5+kk, Černá v Pošumaví - Dolní Vltavice, 108 m2

Černá v Pošumaví, Dolní Vltavice

15 934 000 Kč HYPOTÉKA od 71 215 Kč /za měsíc

(včetně provize RK)

Exkluzivní partneři v Černé v Pošumaví

Výkup a prodej starého nábytku

Informace k bytu

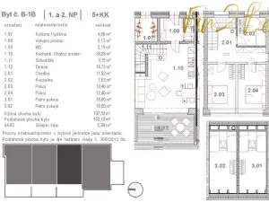
Prodej bytu 5+kk, 107m² s terasou 16m² , Černá v Pošumaví - Lipno

Investujte do výjimečného místa a vlastněte byt tam, kde ostatní jen sní o dovolené.
Představujeme Vám jedinečnou příležitost stát se majitelem moderního dvoupodlažního apartmánu 5+kk s velkou terasou, podkrovím a sklepem v prestižním developerském projektu Apartmány Celnice Lipno.
Tato exkluzivní rezidence je zasazená do srdce šumavské přírody v bezprostřední blízkosti největší vodní nádrže v České republice - Lipna nad Vltavou.
Pokud hledáte dokonalou kombinaci komfortního bydlení, odpočinku v přírodě a chytré investice do nemovitosti s vysokým turistickým potenciálem, pak je tato nemovitost přesně to, co hledáte.
Architektonicky čistý a moderní komplex je navržen tak, aby splynul s okolní krajinou a zároveň nabídl svým obyvatelům maximální komfort a nadstandardní vybavení.
Lokalita disponuje naprosto výjimečnou polohou – v létě lákají okolní lesy, cyklostezky a blízký přístup k vodám Lipna na koupání, vodní sporty a aktivní trávení volného času. V zimě se celá oblast proměňuje v oblíbené lyžařské středisko s výbornými podmínkami pro sjezdové i běžecké lyžování. Lipno je prostě destinací pro celý rok.
Do Rakouska dojdete doslova pěšky, jelikož hranice je pouhých 500m a do lyžařského střediska dojedete za 15minut autem.
Stavba je stavěna s citem pro detail, má nízkou energetickou náročnost a využívá moderní technologie. Budovy jsou vytápěny tepelnými čerpadly a ve standardu je v bytových jednotkách podlahové vytápění. V galerii najdete vizualizace pro lepší představu dispozice a vybavení na míru s jehož podobou a realizací vám v případě zájmu pomohou naši designéři, včetně vypracování cenové nabídky. Je zde pouhých 20 apartmánů od dispozice 2+kk do 5kk, včetně možnosti zakoupení dvou apartmánů s předzahrádkou. Zakoupit můžete také parkovací místa a to: garážové stání pod domem, venkovní stání nebo venkovní kryté stání. Neváhejte, zavolejte a přijďte na prohlídku.
Těšíme se na vás a pro první klienty máme unikátní nabídku v rámci financování, která vás potěší.

Parametry bytu

Cena
15 934 000 Kč Spočítat hypotéku
Poznámka k ceně
včetně provize RK
Aktualizováno
8. 3. 2026
Adresa
Černá v Pošumaví, Dolní Vltavice
ID
2137
Stavba
Cihlová
Stav objektu
Ve výstavbě
Vybaveno
Částečně
Lokalita objektu
Klidná část obce
Vlastnictví
Osobní
Užitná plocha
108 m2
Třída energetické náročnosti
B - Velmi úsporná

Kontaktovat makléře

Máte zájem o tento byt?

Tímto, v souladu s nařízením Evropského parlamentu a Rady (EU) 2016/679, v platném znění, prohlašuji, že mi je alespoň 16 let a uděluji tak svůj souhlas se zpracováním zadaných údajů (jméno, telefon, e-mail, ip adresa) společnosti B3 Technology, s.r.o., IČ: 07330600, se sídlem Novostavby 126/23, 435 11 Lom (správce dat), za účelem předání dotazu z tohoto formuláře Vámi vybranému inzerentovi a zpětného kontaktování mé osoby. Osobní údaje bude správce zpracovávat manuálně i automaticky přímo prostřednictvím svých zaměstnanců. Informace předané tímto formulářem budou uloženy v databázi správce maximálně po dobu 10 let. Odvolání souhlasu s uložením a zpracováním poskytnutých dat lze e-mailem na info@vitio.cz. V případě podezření na neoprávněné použití Vámi poskytnutých údajů máte právo předat podnět k šetření Úřadu pro ochranu osobních údajů. Více informací
Chystáte se prodat nemovitost?
Pomůžeme Vám!

Inzerát si prohlédlo 1 lidí

Prodejce

Mgr. Zuzana Benešová

Mgr. Zuzana Benešová

Hlídací pes

Chcete dostávat emailem podobné nabídky prodeje bytů 5+kk v Černé v Pošumaví?

Podobné nemovitosti