Pronájem obchodního prostoru, Praha - Holešovice, Ortenovo náměstí, 150 m2

Ortenovo náměstí, Praha 7 - Holešovice

69 900 Kč /za měsíc Získejte výhodnou HYPOTÉKU

(měsíční poplatky 5 000 Kč)

Exkluzivní partneři v Praze 7

Stěhovací služby

Výkup a prodej starého nábytku

Informace k nemovitosti

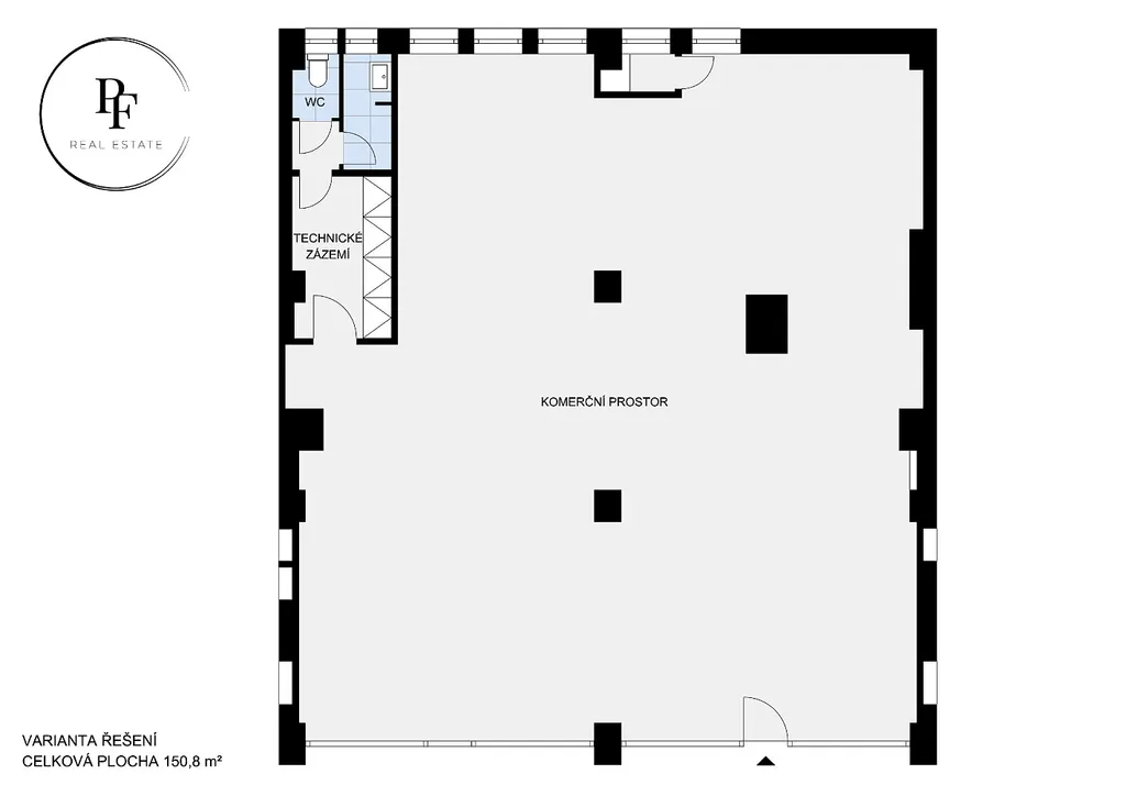
Pronájem obchodních prostor 150,8m²

K pronájmu nabízíme komerční prostor o užitné ploše 150,8 m² v jedné z nejžádanějších částí Prahy 7 na Ortenově náměstí. Prostor se nachází ve zrekonstruovaném domě a má přímý vstup z ulice. Lokalita je dlouhodobě silná pro komerční provoz díky výborné dostupnosti MHD a přirozenému pohybu lidí v okolí. Prostor je vhodný pro klientské centrum, větší služby, showroom, studio nebo kombinaci provozu a zázemí. Konkrétní využití je možné nastavit dle dohody.

Velkou výhodou je variabilita dispozice. Dle zamýšleného využití je možné zvětšit otevřenou prodejní nebo klientskou plochu úpravou dispozice (viz. půdorys), například odstraněním vybraných příček. Konkrétní řešení bude záležet na plánovaném provozu a dohodě.

Prostor je v současné době řádně užíván stávajícím nájemcem.

K dispozici od 15. 7. 2026
Užitná plocha: 150,8 m²
Nájemné: 69 900 Kč/měsíc
Služby: 5 000 Kč/měsíc (měsíční zálohy na energie a služby spojené s užíváním prostoru dle předpisu SVJ)
Provize RK: ve výši 1 měsíčního nájemného

Elektřina v prostoru se přepisuje na nájemce.

Pro více informací a domluvení prohlídky mě neváhejte kontaktovat.

Parametry nemovitosti

Cena
69 900 Kč /za měsíc
Poznámka k ceně
měsíční poplatky 5 000 Kč
Aktualizováno
7. 3. 2026
Adresa
Ortenovo náměstí, Praha 7 - Holešovice
ID
J002610
Lokalita objektu
Centrum obce
Vlastnictví
Osobní
Užitná plocha
150 m2
Třída energetické náročnosti
C - Úsporná

Kontaktovat makléře

Máte zájem o tuto nemovistost?

Tímto, v souladu s nařízením Evropského parlamentu a Rady (EU) 2016/679, v platném znění, prohlašuji, že mi je alespoň 16 let a uděluji tak svůj souhlas se zpracováním zadaných údajů (jméno, telefon, e-mail, ip adresa) společnosti B3 Technology, s.r.o., IČ: 07330600, se sídlem Novostavby 126/23, 435 11 Lom (správce dat), za účelem předání dotazu z tohoto formuláře Vámi vybranému inzerentovi a zpětného kontaktování mé osoby. Osobní údaje bude správce zpracovávat manuálně i automaticky přímo prostřednictvím svých zaměstnanců. Informace předané tímto formulářem budou uloženy v databázi správce maximálně po dobu 10 let. Odvolání souhlasu s uložením a zpracováním poskytnutých dat lze e-mailem na info@vitio.cz. V případě podezření na neoprávněné použití Vámi poskytnutých údajů máte právo předat podnět k šetření Úřadu pro ochranu osobních údajů. Více informací
Chystáte se prodat nemovitost?
Pomůžeme Vám!

Inzerát si prohlédlo 0 lidí

Prodejce

PF real estate s.r.o.

PF real estate s.r.o.

Hlídací pes

Chcete dostávat emailem podobné nabídky pronájmu obchodních prostor v Praze 7?

Podobné nemovitosti