Prodej bytu 2+kk, Pardubice, Na Spravedlnosti, 53 m2

Na Spravedlnosti, Pardubice, Zelené Předměstí

6 890 000 Kč /za nemovitost HYPOTÉKA od 30 794 Kč /za měsíc

(včetně poplatků, včetně provize, včetně právního servisu)

Exkluzivní partneři v Pardubicích

Informace k bytu

Tento prostorný byt nabídne prostor, světlo i venkovní život ve vyhledávané pardubické lokalitě Višňovka. Ta kombinuje klid rezidenční čtvrti s výbornou dostupností do centra města i ke kompletní občanské vybavenosti. V docházkové vzdálenosti najdete obchody, kavárny, restaurace, školy, školky i zastávky MHD. Zároveň jste během pár minut v centru Pardubic nebo na hlavních dopravních tazích. Je to lokalita, kde můžete pohodlně fungovat bez auta, ale zároveň mít vše rychle dostupné.

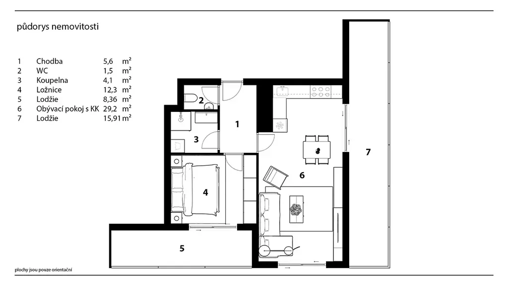
Byt se nachází v 6. nadzemním podlaží moderního domu s výtahem. Jeho celková plocha zahrnuje byt s plochou 53 m2, terasu o ploše 16 m2 a druhou terasu velkou 8 m2. Díky vyššímu patru je z teras příjemný nadhled, více světla a větší pocit soukromí. Celý byt je ve velmi pěkném stavu a připravený k okamžitému nastěhování bez nutnosti dalších investic. Nabízí se jako nezařízený, před předáním bude vyklizen. Dům byl dokončen v roce 2021, takže splňuje současné nároky na komfort, energetickou úspornost i moderní standard bydlení.

Měsíční náklady na bydlení dle předpisu plateb SVJ pro 1 osobu jsou 3 186 Kč (z toho fond oprav 442 Kč) a k tomu elektřina dle spotřeby, cca 1 300 Kč. V případě zájmu je možné samostatně dokoupit také venkovní parkovací stání, což je v této lokalitě praktický benefit.

Srdcem bytu je velkorysý obývací pokoj s kuchyňským koutem, který tvoří otevřený a vzdušný prostor, přirozeně prosvětlený ze dvou stran. Kuchyňský kout je elegantně zakomponovaný tak, aby byl plně funkční, ale nerušil obytnou část. Z vestavěných spotřebičů nabídne sklokeramickou varnou desku, troubu s digestoří a myčku nádobí. Z tohoto prostoru vstupujete na velkou terasu cca 16 m2 orientovanou na západ. Ta přirozeně rozšiřuje obytný prostor a dává bytu další rozměr. Představte si letní západy slunce, bylinky v květináčích a klidná posezení s výhledem na střechy okolních domů.

Ložnice je samostatná, klidná a dostatečně prostorná pro pohodlné útočiště. Bez problémů se sem vejde manželská postel, šatní skříň i pracovní kout. Je odtud vstup na druhou, ještě větší, severně orientovanou terasu o výměře cca 8 m². Ani zde se fantazii meze nekladou – může zde malá zahrádka či příjemné posezení, kde se ukryjete před sluncem.

Vstupní předsíň je prostorná a prakticky řešená. Nachází se zde skříň i botník a díky své velikosti působí vzdušně, nikoli stísněně. Navíc centrálně propojuje všechny místnosti, což zajišťuje logickou a pohodlnou dispozici bez zbytečných chodeb.

Koupelna je vybavena sprchovým koutem a působí moderně a čistě. Toaleta je samostatná, což zvyšuje komfort každodenního fungování, zejména pokud v bytě bydlí pár nebo přijde návštěva.

Tento byt je ideální volbou pro pár i jednotlivce, který chce víc prostoru, nebo jako investice v jedné z nejvyhledávanějších pardubických lokalit. Nabízí moderní dům, výtah, dvě velkorysé terasy a dispozici, která dává smysl. Pokud hledáte bydlení, které kombinuje městský život s vlastním venkovním prostorem, právě jste ho našli. Zavolejte mi a přijďte se podívat osobně.

Parametry bytu

Cena
6 890 000 Kč /za nemovitost Spočítat hypotéku
Poznámka k ceně
včetně poplatků, včetně provize, včetně právního servisu
Aktualizováno
6. 3. 2026
Adresa
Na Spravedlnosti, Pardubice, Zelené Předměstí
ID
00256
Stavba
Smíšená
Stav objektu
Velmi dobrý
Patro
6. z 13
Vybaveno
Ne
Lokalita objektu
Klidná část obce
Vlastnictví
Osobní
Užitná plocha
53 m2
Podlahová plocha
77 m2
Třída energetické náročnosti
B - Velmi úsporná
Ukazatel energetické náročnosti
59 kWh/m2 za rok
Elektřina
230V
Odpad
Veřejná kanalizace
Komunikace
Asfaltová
Telekomunikace
Internet
Doprava
Silnice, MHD, Autobus
Voda
Vodovod
Topné těleso
Radiátory
Zdroj topení
Centrální dálkové
Zdroj teplé vody
Centrální dálkový ohřev
Terasa
Výtah
Parkování

Kontaktovat makléře

Realitní kancelář

FIRST HOLD INVEST s.r.o.

Za Pasáží 1429, Pardubice, Zelené Předměstí

Chystáte se prodat nemovitost?
Pomůžeme Vám!

Máte zájem o tento byt?

Tímto, v souladu s nařízením Evropského parlamentu a Rady (EU) 2016/679, v platném znění, prohlašuji, že mi je alespoň 16 let a uděluji tak svůj souhlas se zpracováním zadaných údajů (jméno, telefon, e-mail, ip adresa) společnosti B3 Technology, s.r.o., IČ: 07330600, se sídlem Novostavby 126/23, 435 11 Lom (správce dat), za účelem předání dotazu z tohoto formuláře Vámi vybranému inzerentovi a zpětného kontaktování mé osoby. Osobní údaje bude správce zpracovávat manuálně i automaticky přímo prostřednictvím svých zaměstnanců. Informace předané tímto formulářem budou uloženy v databázi správce maximálně po dobu 10 let. Odvolání souhlasu s uložením a zpracováním poskytnutých dat lze e-mailem na info@vitio.cz. V případě podezření na neoprávněné použití Vámi poskytnutých údajů máte právo předat podnět k šetření Úřadu pro ochranu osobních údajů. Více informací
Chystáte se prodat nemovitost?
Pomůžeme Vám!

Inzerát si prohlédlo 0 lidí

Prodejce

Kryštof Kalhous

Kryštof Kalhous

Hlídací pes

Chcete dostávat emailem podobné nabídky prodeje bytů 2+kk v Pardubicích?

Podobné nemovitosti