Prodej bytu 1+kk, Praha - Dejvice, Lindleyova, 34 m2 (ID: 2600239)

Lindleyova, Praha, Dejvice

7 170 000 Kč /za nemovitost HYPOTÉKA od 32 046 Kč /za měsíc
Exkluzivní partneři v Praze 6

Stěhovací služby

Výkup a prodej starého nábytku

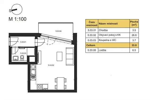
Informace k bytu

Nabízíme k prodeji moderní byt 1+kk v žádané lokalitě Prahy. Tento cihlový byt se nachází v novostavbě zkolaudované v roce 2018, což zaručuje kvalitní a současné standardy bydlení. Byt se pyšní klidnou atmosférou díky umístění v klidné části obce.

Byt se nachází v pátém patře budovy, ke které je k dispozici výtah. Užitná plocha bytu je 34 m², což je efektivně rozděleno a nabízí pohodlné bydlení. K bytu náleží lodžie o ploše 6,5 m², což poskytuje další prostor pro relaxaci. K bytu náleží sklep v suterénu domu, k dispozice taky společenská místnost s posilovnou. Topení - Centrální dálkové, energetická náročnost budovy - B.

Pohodlnou dopravní dostupnost zajišťuje MHD, která propojuje byt s centrem města a dalšími částmi Prahy. Byt je zařazen do energetické třídy B, což z něj činí úspornou volbu pro budoucí majitele. Provozní náklady Vám sdělí makléř, který je kontaktní osobou u tohoto inzerátu.

Pokud Vás tento byt zaujal, vyplňte níže uvedený formulář, rádi Vám pomůžeme.

Parametry bytu

Cena
7 170 000 Kč /za nemovitost Spočítat hypotéku
Náklady na bydlení
3000
Aktualizováno
5. 3. 2026
Adresa
Lindleyova, Praha, Dejvice
Stavba
Cihlová
Stav objektu
Novostavba
Patro
5.
Lokalita objektu
Klidná část obce
Vlastnictví
Osobní
Užitná plocha
34 m2
Třída energetické náročnosti
B - Velmi úsporná
Odpad
Veřejná kanalizace
Doprava
MHD
Topné těleso
Radiátory
Zdroj topení
Ústřední dálkové
Zdroj teplé vody
Centrální dálkový ohřev
Sklep
Lodžie
Výtah

Kontaktovat makléře

Máte zájem o tento byt?

Tímto, v souladu s nařízením Evropského parlamentu a Rady (EU) 2016/679, v platném znění, prohlašuji, že mi je alespoň 16 let a uděluji tak svůj souhlas se zpracováním zadaných údajů (jméno, telefon, e-mail, ip adresa) společnosti B3 Technology, s.r.o., IČ: 07330600, se sídlem Novostavby 126/23, 435 11 Lom (správce dat), za účelem předání dotazu z tohoto formuláře Vámi vybranému inzerentovi a zpětného kontaktování mé osoby. Osobní údaje bude správce zpracovávat manuálně i automaticky přímo prostřednictvím svých zaměstnanců. Informace předané tímto formulářem budou uloženy v databázi správce maximálně po dobu 10 let. Odvolání souhlasu s uložením a zpracováním poskytnutých dat lze e-mailem na info@vitio.cz. V případě podezření na neoprávněné použití Vámi poskytnutých údajů máte právo předat podnět k šetření Úřadu pro ochranu osobních údajů. Více informací
Chystáte se prodat nemovitost?
Pomůžeme Vám!

Inzerát si prohlédlo 0 lidí

Prodejce

Slobodskaja Olga

Slobodskaja Olga

Hlídací pes

Chcete dostávat emailem podobné nabídky prodeje bytů 1+kk v Praze 6?

Podobné nemovitosti