Prodej obchodního prostoru, Praha - Košíře, Naskové, 90 m2

Naskové, Praha, Košíře

6 500 000 Kč /za nemovitost HYPOTÉKA od 29 051 Kč /za měsíc

(+3% PROVIZE +DPH)

Exkluzivní partneři v Praze 5

Stěhovací služby

Výkup a prodej starého nábytku

Informace k nemovitosti

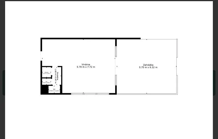
Představujeme Vám tento obchodní prostor k prodeji, který se nachází v dynamicky se rozvíjející části Prahy. Tento přízemní prostor s užitnou plochou 90 m² je ideálním místem pro různé typy podnikání, zvláště vhodný pro účely jako jsou kanceláře,showroom, kadeřnictví nebo salon a jiné(nelze gastro) Díky své poloze v novostavbě zkolaudované v roce 2024 nabízí moderní zázemí a vysoký komfort pro klienty i zaměstnance.

Prostor je částečně vybaven, což Vám umožní přizpůsobit si interiér podle specifických potřeb Vašeho podnikání. Novostavba se nachází v zástavbě určené pro bydlení, což zajišťuje dobrou dostupnost potenciální klientely. K dispozici je jedno parkovací místo, což usnadňuje přístup pro zákazníky.

Energetická třída prostor je B, což znamená, že je velmi efektivní v otázce spotřeby energie. Provozní náklady Vám sdělí makléř, který je kontaktní osobou u tohoto inzerátu.

Prohlídky jsou možné po předchozí domluvě. Pro více informací o této nemovitosti nebo sjednání prohlídky nás prosím kontaktujte nebo vyplňte níže uvedený formulář, rádi Vám pomůžeme.

Parametry nemovitosti

Cena
6 500 000 Kč /za nemovitost Spočítat hypotéku
Poznámka k ceně
+3% PROVIZE +DPH
Náklady na bydlení
cca 4.tis
Aktualizováno
4. 3. 2026
Adresa
Naskové, Praha, Košíře
Stavba
Smíšená
Stav objektu
Novostavba
Patro
1. z 7
Vybaveno
Částečně
Užitná plocha
90 m2
Plocha zahrady
45 m2
Třída energetické náročnosti
B - Velmi úsporná
Topné těleso
Radiátory
Zdroj topení
Centrální dálkové
Zdroj teplé vody
Centrální dálkový ohřev
Parkování

Kontaktovat makléře

Realitní kancelář

DDEM Real Estate

Hlubočepská 1156/38b, Praha

Chystáte se prodat nemovitost?
Pomůžeme Vám!

Máte zájem o tuto nemovistost?

Tímto, v souladu s nařízením Evropského parlamentu a Rady (EU) 2016/679, v platném znění, prohlašuji, že mi je alespoň 16 let a uděluji tak svůj souhlas se zpracováním zadaných údajů (jméno, telefon, e-mail, ip adresa) společnosti B3 Technology, s.r.o., IČ: 07330600, se sídlem Novostavby 126/23, 435 11 Lom (správce dat), za účelem předání dotazu z tohoto formuláře Vámi vybranému inzerentovi a zpětného kontaktování mé osoby. Osobní údaje bude správce zpracovávat manuálně i automaticky přímo prostřednictvím svých zaměstnanců. Informace předané tímto formulářem budou uloženy v databázi správce maximálně po dobu 10 let. Odvolání souhlasu s uložením a zpracováním poskytnutých dat lze e-mailem na info@vitio.cz. V případě podezření na neoprávněné použití Vámi poskytnutých údajů máte právo předat podnět k šetření Úřadu pro ochranu osobních údajů. Více informací
Chystáte se prodat nemovitost?
Pomůžeme Vám!

Inzerát si prohlédlo 0 lidí

Prodejce

Martin Borák

Martin Borák

Hlídací pes

Chcete dostávat emailem podobné nabídky prodeje obchodních prostor v Praze 5?

Podobné nemovitosti