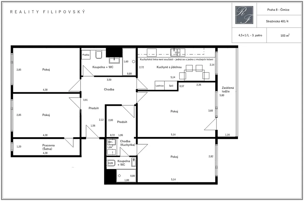
Prodej bytu 4+1, Praha - Čimice, Strážnická, 103 m2

Strážnická, Praha, Čimice

12 950 000 Kč /za nemovitost HYPOTÉKA od 57 879 Kč /za měsíc
Exkluzivní partneři v Praze 8

Stěhovací služby

Výkup a prodej starého nábytku

Informace k bytu

Ojedinělá nabídka nadstandardně prostorného (dvougeneračního), kompletně nově zrekonstruovaného bytu o dispozici 4,5+1-2/L, který se nachází ve třetím patře nízkopodlažního panelového domu bez výtahu v klidné lokalitě s výbornou dostupností do centra Prahy.

Dispozice 4,5+1-2/L označuje následující skladbu místností:
- 4x samostatný pokoj,
- 1x samostatná pracovna nebo šatna,
- 1x chodba, která se skládá ze dvou samostatných částí,
- 2x koupelna s toaletou,
- 1x plnohodnotná kuchyň
- 1x prostor pro umístění malého kuchyňského koutu v části bytu, kterou lze užívat separovaně a která dále obsahuje jeden z uvedených pokojů, samostatnou koupelnu s toaletou a samostatnou vstupní chodbu s místem na úložné prostory, případně i na automatickou pračku,
- 1x zasklená lodžie,
- 1x sklepní kóje,
Dispozici si můžete prohlédnout v přiloženém plánku ve fotogalerii.

Rekonstrukce bytu byla právě dokončena zkušenou realizační firmou a zahrnovala vše od nivelace podlah, vyzdění obou jader, vodoinstalaci, odpady, vzduchotechniku i elektroinstalaci zakončenou revizní zprávou. Na hlavní i druhou kuchyňskou linku (kterou můžete, ale nemusíte instalovat) jsou připraveny všechny přípojky elektřiny i přívody vody a odpadu tak, aby budoucího vlastníka při návrhu kuchyně nijak neomezovaly a zajistily dodržení platných norem. Kuchyňské linky nejsou součástí nabídky a nový vlastník si je řeší dle svých potřeb.

Díky svému dispozičnímu řešení nabízí tento byt více variant jeho používání dle toho, jak se budou v průběhu času měnit potřeby rodiny. Rodiče např. můžou nejprve využívat separátní část interiéru jako nadstandardní ložnici s vlastní koupelnou, toaletou a šatnou, a později si zde umím představit třeba dospívajícího člena rodiny se svou partnerkou/rem, kdy bude tato část bytu sloužit jako samostatná jednotka 1+kk se vším, co je třeba, včetně kuchyňského koutu a dostatku soukromí.

Neméně zajímavou alternativou je pak pojetí koupě této nemovitosti jako investiční příležitosti, kdy dané dispoziční řešení otevírá zajímavé možnosti směrem k maximalizaci výnosu z pronájmu.

Co musím určitě vyzdvihnout je také lokalita. Výborná dostupnost MHD i centra města, mimořádný klid v sousedství vilové čtvrti a absolutně bezproblémové parkování jsou jen některými z výhod, které toto bydlení nabízí.

Budu se těšit na setkání s Vámi

Parametry bytu

Cena
12 950 000 Kč /za nemovitost Spočítat hypotéku
Aktualizováno
2. 3. 2026
Adresa
Strážnická, Praha, Čimice
ID
635
Stavba
Panelová
Stav objektu
Po rekonstrukci
Patro
4.
Vlastnictví
Osobní
Užitná plocha
103 m2
Třída energetické náročnosti
C - Úsporná
Elektřina
230V
Odpad
Veřejná kanalizace
Voda
Vodovod
Topné těleso
Radiátory
Zdroj topení
Centrální dálkové
Zdroj teplé vody
Centrální dálkový ohřev
Sklep
Lodžie

Kontaktovat makléře

Máte zájem o tento byt?

Tímto, v souladu s nařízením Evropského parlamentu a Rady (EU) 2016/679, v platném znění, prohlašuji, že mi je alespoň 16 let a uděluji tak svůj souhlas se zpracováním zadaných údajů (jméno, telefon, e-mail, ip adresa) společnosti B3 Technology, s.r.o., IČ: 07330600, se sídlem Novostavby 126/23, 435 11 Lom (správce dat), za účelem předání dotazu z tohoto formuláře Vámi vybranému inzerentovi a zpětného kontaktování mé osoby. Osobní údaje bude správce zpracovávat manuálně i automaticky přímo prostřednictvím svých zaměstnanců. Informace předané tímto formulářem budou uloženy v databázi správce maximálně po dobu 10 let. Odvolání souhlasu s uložením a zpracováním poskytnutých dat lze e-mailem na info@vitio.cz. V případě podezření na neoprávněné použití Vámi poskytnutých údajů máte právo předat podnět k šetření Úřadu pro ochranu osobních údajů. Více informací
Chystáte se prodat nemovitost?
Pomůžeme Vám!

Inzerát si prohlédlo 0 lidí

Prodejce

Marek Filipovský - certifikovaný obchodník s nemovitostmi

Marek Filipovský - certifikovaný obchodník s nemovitostmi

Hlídací pes

Chcete dostávat emailem podobné nabídky prodeje bytů 4+1 v Praze 8?

Podobné nemovitosti