Pronájem kanceláře, Staré Město, Jamnická, 84 m2

Jamnická, Staré Město

15 000 Kč /za měsíc Získejte výhodnou HYPOTÉKU

(Služby - teplo, voda, elektřina (2.000,-Kč/měsíc), vratná kauce ve výši 2 x nájem, provize RK ve výši 1 x nájem + DPH)

Exkluzivní partneři v Starém Městu

Informace k nemovitosti

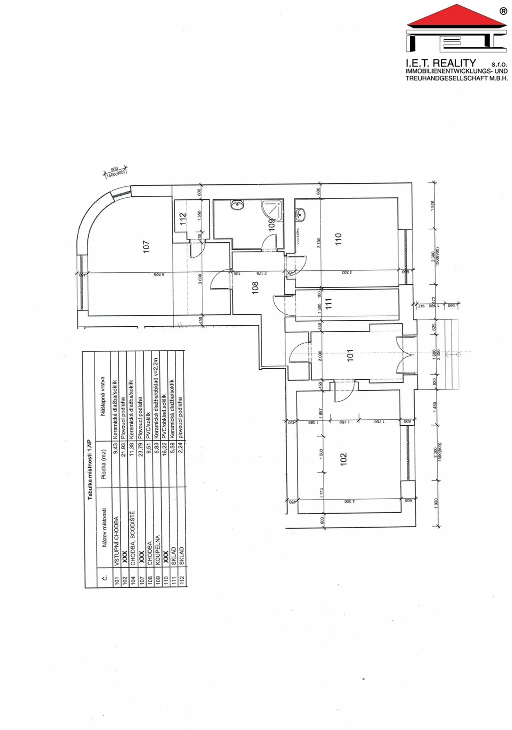
Nabízíme Vám k pronájmu velmi pěkné, slunné a klidné komerční prostory o celkové výměře 84 m², situované v 1. nadzemním podlaží budovy s výbornou dostupností, nedaleko centra Frýdku-Místku.

Prostory jsou vhodné k využití jako kanceláře, sídlo společnosti, obchod, ordinace, školící centrum, provozovna služeb atd. Dispozice zahrnuje dvě prostorné a světlé místnosti, sklad, sociální zázemí, technickou místnost a chodbu.
Interiér je částečně vybaven kuchyňskou linkou, vestavěnými skříněmi a dalším nábytkem, který je možné po dohodě ponechat k užívání.

Velkou výhodou je:
parkování v bezprostřední blízkosti objektu
velmi dobrá viditelnost z okolí
možnost umístění reklamy na budově i oplocení
výborná dopravní dostupnost

Prostory jsou k dispozici od 1. 3. 2026, případně dle potřeby.
V případě zájmu o bližší informace nebo sjednání prohlídky mě neváhejte kontaktovat. Těším se na osobní setkání.

Parametry nemovitosti

Cena
15 000 Kč /za měsíc
Poznámka k ceně
Služby - teplo, voda, elektřina (2.000,-Kč/měsíc), vratná kauce ve výši 2 x nájem, provize RK ve výši 1 x nájem + DPH
Aktualizováno
13. 3. 2026
Adresa
Jamnická, Staré Město
ID
IETO838574
Stavba
Cihlová
Stav objektu
Velmi dobrý
Vybaveno
Částečně
Typ objektu
Patrový
Druh objektu
Samostatný
Lokalita objektu
Centrum obce
Užitná plocha
84 m2
Podlahová plocha
420 m2
Plocha pozemku
1 m2
Plocha nebytových prostor
450 m2
Třída energetické náročnosti
G - Mimořádně nehospodárná

Kontaktovat makléře

Máte zájem o tuto nemovistost?

Tímto, v souladu s nařízením Evropského parlamentu a Rady (EU) 2016/679, v platném znění, prohlašuji, že mi je alespoň 16 let a uděluji tak svůj souhlas se zpracováním zadaných údajů (jméno, telefon, e-mail, ip adresa) společnosti B3 Technology, s.r.o., IČ: 07330600, se sídlem Novostavby 126/23, 435 11 Lom (správce dat), za účelem předání dotazu z tohoto formuláře Vámi vybranému inzerentovi a zpětného kontaktování mé osoby. Osobní údaje bude správce zpracovávat manuálně i automaticky přímo prostřednictvím svých zaměstnanců. Informace předané tímto formulářem budou uloženy v databázi správce maximálně po dobu 10 let. Odvolání souhlasu s uložením a zpracováním poskytnutých dat lze e-mailem na info@vitio.cz. V případě podezření na neoprávněné použití Vámi poskytnutých údajů máte právo předat podnět k šetření Úřadu pro ochranu osobních údajů. Více informací
Chystáte se prodat nemovitost?
Pomůžeme Vám!

Inzerát si prohlédlo 3 lidí

Prodejce

Jarmila Diblíková

Jarmila Diblíková

Hlídací pes

Chcete dostávat emailem podobné nabídky pronájmu kanceláří v Starém Městu (okr. Frýdek-Místek)?

Podobné nemovitosti