Soccer reality

Prodej bytu 2+kk, Praha, Za černým mostem, 51 m2

Za černým mostem, Praha 9

9 499 000 Kč /za nemovitost HYPOTÉKA od 42 455 Kč /za měsíc

(Cena za nemovitost)

Exkluzivní partneři v Praze 9

Stěhovací služby

Výkup a prodej starého nábytku

Informace k bytu

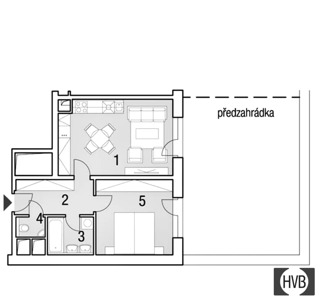
Nabízíme k prodeji byt 2+kk, 53m2 se sklepní kójí a soukromou předzahrádkou 46m2 v lokalitě Praha 14 - Hloubětín, ul. Za černým mostem. Byt je v osobním vlastnictví. Součástí je vyhrazené garážové stání. Dispozice bytu zahrnuje předsíň, koupelnu s vanou, oddělenou toaletu, ložnici, obývací pokoj s kuchyňským koutem a se vstupem na zahrádku. Jednotka se nachází v prvním nadzemním podlaží novostavby z roku 2022 a nabízí bezbariérový přístup. V blízkosti veškerá občanská a kulturní vybavenost, perfektní dopravní dostupnost. V případě zájmu či dotazů neváhejte kontaktovat makléře i přes víkend. Možno financovat hypotečním úvěrem, výhodně vyřídíme.

Parametry bytu

Cena
9 499 000 Kč /za nemovitost Spočítat hypotéku
Poznámka k ceně
Cena za nemovitost
Aktualizováno
8. 4. 2026
Adresa
Za černým mostem, Praha 9
ID
N2617057
Stavba
Cihlová
Stav objektu
Velmi dobrý
Patro
1. z 8
Vybaveno
Částečně
Lokalita objektu
Klidná část obce
Vlastnictví
Osobní
Užitná plocha
51 m2
Zastavěná plocha
345 m2
Podlahová plocha
53 m2
Plocha zahrady
46 m2
Třída energetické náročnosti
B - Velmi úsporná
Elektřina
230V
Plyn
Plynovod
Odpad
Veřejná kanalizace
Komunikace
Asfaltová
Voda
Vodovod
Garáž
Sklep
Výtah

Kontaktovat makléře

Máte zájem o tento byt?

Tímto, v souladu s nařízením Evropského parlamentu a Rady (EU) 2016/679, v platném znění, prohlašuji, že mi je alespoň 16 let a uděluji tak svůj souhlas se zpracováním zadaných údajů (jméno, telefon, e-mail, ip adresa) společnosti B3 Technology, s.r.o., IČ: 07330600, se sídlem Novostavby 126/23, 435 11 Lom (správce dat), za účelem předání dotazu z tohoto formuláře Vámi vybranému inzerentovi a zpětného kontaktování mé osoby. Osobní údaje bude správce zpracovávat manuálně i automaticky přímo prostřednictvím svých zaměstnanců. Informace předané tímto formulářem budou uloženy v databázi správce maximálně po dobu 10 let. Odvolání souhlasu s uložením a zpracováním poskytnutých dat lze e-mailem na info@vitio.cz. V případě podezření na neoprávněné použití Vámi poskytnutých údajů máte právo předat podnět k šetření Úřadu pro ochranu osobních údajů. Více informací
Chystáte se prodat nemovitost?
Pomůžeme Vám!

Inzerát si prohlédlo 8 lidí

Prodejce

Šimon Havlík

Šimon Havlík

Hlídací pes

Chcete dostávat emailem podobné nabídky prodeje bytů 2+kk v Praze 9?

Podobné nemovitosti