Prodej bytu 2+1, Brno, Záhřebská, 50 m2 (ID: 2594600)

Záhřebská, Brno, Žabovřesky

6 690 000 Kč /za nemovitost HYPOTÉKA od 29 900 Kč /za měsíc
Exkluzivní partneři v Brně

Informace k bytu

Nabízíme k prodeji velmi dobře dispozičně řešený byt o velikosti 2+1 v přízemí udržovaného bytového domu v klidné lokalitě se vzrostlou zelení a příjemným výhledem do okolí.

Důležitou informací je, že na listu vlastnictví v katastru nemovitostí je uvedena celková plocha 56,3 m².

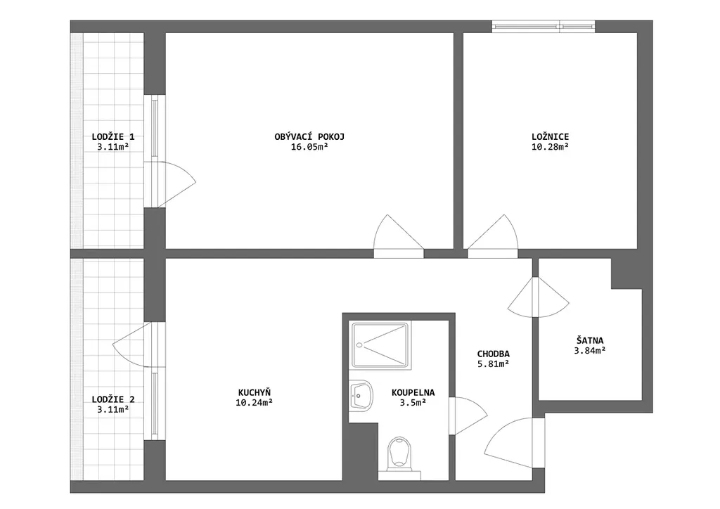
Samotná plocha bytu činí 50,4 m², k bytu náleží sklep o velikosti 5,9 m² a dvě lodžie o celkové ploše 6,2 m², které výrazně zvyšují komfort bydlení.

Dispozice bytu nabízí dvě neprůchozí ložnice o výměrách 16 m² a 10,28 m² a jídelnu s kuchyňským koutem o velikosti 10,24 m². Praktické rozvržení poskytuje dostatek soukromí i pohodlný prostor pro každodenní život.

Velkým benefitem jsou dvě lodžie (celkem 6,2 m²), které byly nedávno vybaveny markýzami s dálkovým ovládáním. Ty zajišťují vyšší míru soukromí a zároveň příjemné klima v letních měsících.

Byt má zděné jádro, je udržovaný, čerstvě vymalovaný a připravený k okamžitému nastěhování bez nutnosti dalších investic.

Součástí bytu je také prostorná komora o velikosti 3,84 m², která poskytuje dostatek úložného prostoru.Sklepní kóje o velikosti 5,9 m² umístěná v suterénu domu.

V suterénu je dále obyvatelům domu je k dispozici kolárna, sklad nábytku, sušárna a mandlovna. Pohodlný přístup do suterénu zajišťuje výtah.

Dům je spravován dobře fungujícím SVJ a nabízí klidné a bezpečné bydlení.

U vstupu do domu je instalován kamerový systém a v bytě je monitor, který zobrazuje osobu u vstupních dveří, což zvyšuje komfort i bezpečnost bydlení.

Parkování je možné přímo před domem v rezidentní zóně C.

Parametry bytu

Cena
6 690 000 Kč /za nemovitost Spočítat hypotéku
Aktualizováno
26. 2. 2026
Adresa
Záhřebská, Brno, Žabovřesky
Stavba
Panelová
Stav objektu
Velmi dobrý
Patro
1.
Vlastnictví
Osobní
Užitná plocha
50 m2
Třída energetické náročnosti
D - Méně úsporná
Ukazatel energetické náročnosti
109 kWh/m2 za rok
Lodžie

Kontaktovat makléře

Realitní kancelář

Ing. Pavel Vejrosta

Na Zahrádkách 436, Křižanov

Chystáte se prodat nemovitost?
Pomůžeme Vám!

Máte zájem o tento byt?

Tímto, v souladu s nařízením Evropského parlamentu a Rady (EU) 2016/679, v platném znění, prohlašuji, že mi je alespoň 16 let a uděluji tak svůj souhlas se zpracováním zadaných údajů (jméno, telefon, e-mail, ip adresa) společnosti B3 Technology, s.r.o., IČ: 07330600, se sídlem Novostavby 126/23, 435 11 Lom (správce dat), za účelem předání dotazu z tohoto formuláře Vámi vybranému inzerentovi a zpětného kontaktování mé osoby. Osobní údaje bude správce zpracovávat manuálně i automaticky přímo prostřednictvím svých zaměstnanců. Informace předané tímto formulářem budou uloženy v databázi správce maximálně po dobu 10 let. Odvolání souhlasu s uložením a zpracováním poskytnutých dat lze e-mailem na info@vitio.cz. V případě podezření na neoprávněné použití Vámi poskytnutých údajů máte právo předat podnět k šetření Úřadu pro ochranu osobních údajů. Více informací
Chystáte se prodat nemovitost?
Pomůžeme Vám!

Inzerát si prohlédlo 0 lidí

Prodejce

Pavel Vejrosta

Pavel Vejrosta

Hlídací pes

Chcete dostávat emailem podobné nabídky prodeje bytů 2+1 v Brně?

Podobné nemovitosti