Prodej bytu 3+kk, Liberec, Jáchymovská, 97 m2

Jáchymovská, Liberec (nečleněné město)

10 600 000 Kč /za nemovitost HYPOTÉKA od 47 376 Kč /za měsíc
Exkluzivní partneři v Liberci

Rekonstrukce

Úklidové služby

Pojištění a finance

Informace k bytu

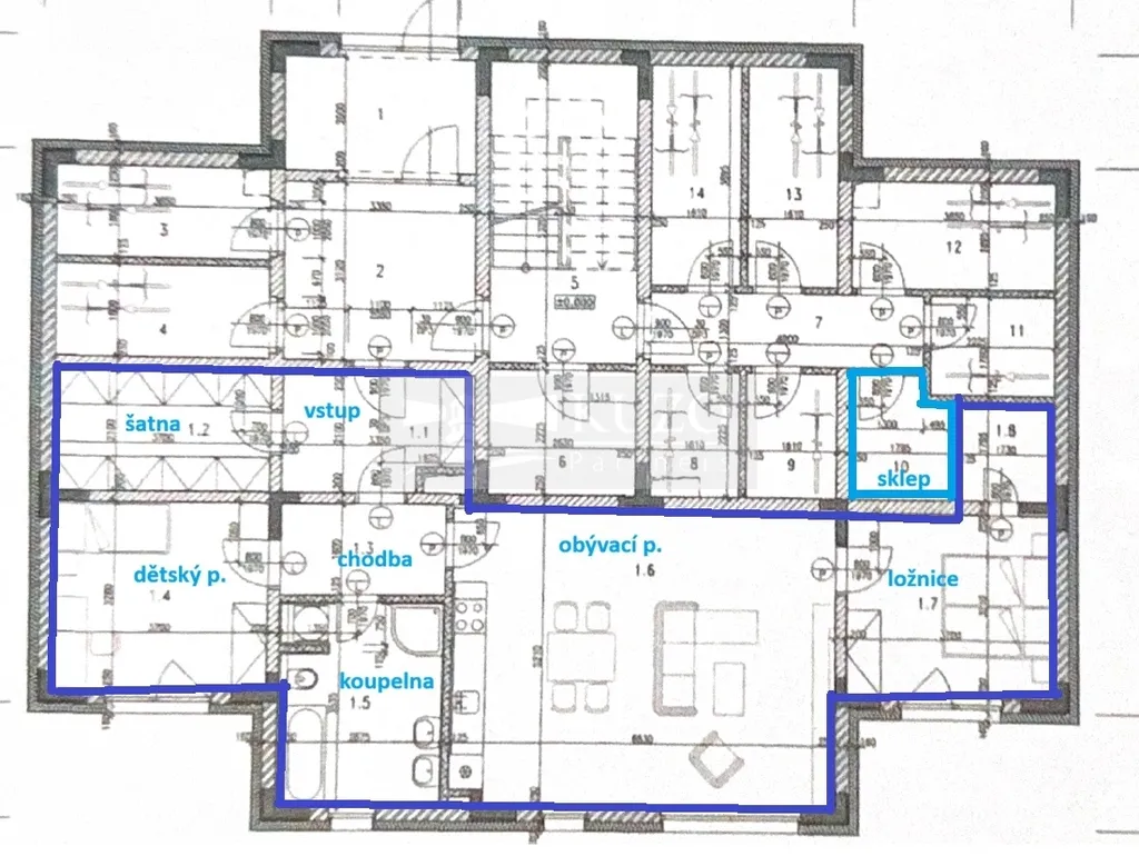
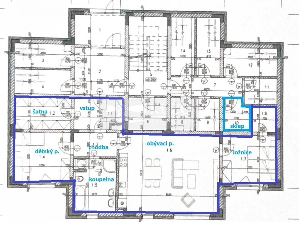
Dovolujeme si představit světlý a prostorný byt 3+kk se soukromou předzahrádkou v novostavbě v části Františkov. Byt má celkovou výměru 97 m2, umístěný je v přízemí menšího bytového domu, který má celkem čtyři podlaží.
Jednou z předností bytu je přístupná předzahrádka z každé obytné místnosti. Dokončovací práce byly provedeny v nadstandardu (vinylová podlaha, dlažba Piemme - limestone v dekoru kamene, dveře Sapeli). Obývací pokoj je velkoryse navržen, aby bylo možné prostor rozdělit na část kuchyňskou, jídelní a odpočinkovou. Kuchyně byla navržena do tvaru L a je vybavena vestavěnými spotřebiči AEG. V bytě naleznete dostatek úložných ploch, které nijak nezasahují do obytných místností. První úložný prostor je ve vstupní chodbě v podobě vestavěné skříně. Další již samostatná šatna s vestavěným úložným systémem je přístupná taktéž z chodby a poslední šatní prostor patří k ložnici. Dalším bonusem je rozvedený internet do každé místnosti, optický kabel zavedený do bytu a pro venkovní prostor jsou umístěny rozvody na kamerový systém.

Tento prostorný byt má výhled pouze do vlastní zahrady a na nejbližší okolí. Příjezdová místní komunikace je na opačné straně, do bytu tak nezasahuje ruch okolní komunikace.
Zahradu tvoří částečně travnatá plocha a částečně dlažba v prostoru terasy a zpevněný chodník, vedoucí až k vstupní brance k parkovišti. Pozemek je kompletně oplocen. Je možné používat hlavní vchod, ale i soukromý vstup z parkoviště.
Koupelna byla vybavena špičkovými podomítkovými zařizovací předměty Hans Grohe. Najdete tu vanu i sprchový kout, dále WC a místo pro pračku i sušičku. I přes to vše, je zde stále dost volného prostoru a místnost nepůsobí přeplněně.

Byt je velmi praktický, bezbariérový a poskytuje dostatečné soukromí a klid od ruchu města. Orientovaný je převážně západním směrem.
Na daném patře je k dispozici sklep vel. 3,8 m2 a na parkovišti jedno parkovací místo. Vjezd je umožněn pouze uživatelům bytového domu.
Kolaudace domu proběhla v roce 2021.

Jednotka je ve vynikajícím technickém stavu a není třeba očekávat žádné investice z důvodu potřeby okamžité údržby ani oprav.
Vytápění pro celý objekt zajišťují tepelná čerpadla. Byty mají podlahové vytápění, teplotu je možné nastavit na dálku přes aplikaci. En. náročnost objektu je třída A. Je zde velice nízká spotřeba na energie, vyúčtování za minulý rok je pro budoucí zájemce k dispozici. Bydlení uspokojí i náročnější uživatele, rodinu i osobu s omezenou pohyblivostí.

V těsné blízkosti najdete kompletní občanskou vybavenost (obchod, škola, školka, zastávka MHD, tramvaj, restaurace i přímé napojení na hlavní tah Libercem). V blízkém okolí je dostatek přírody a možnosti k procházkám (např. blízký Ještěd – cca 10 minut, okolí letiště). Více informací i prohlídku nemovitosti rádi zajistíme.

Parametry bytu

Cena
10 600 000 Kč /za nemovitost Spočítat hypotéku
Aktualizováno
23. 4. 2026
Adresa
Jáchymovská, Liberec (nečleněné město)
ID
D026415
Stavba
Skeletová
Stav objektu
Novostavba
Patro
1. z 4
Vybaveno
Částečně
Lokalita objektu
Okraj obce
Vlastnictví
Osobní
Užitná plocha
97 m2
Podlahová plocha
101 m2
Plocha zahrady
110 m2
Třída energetické náročnosti
B - Velmi úsporná
Ukazatel energetické náročnosti
55 kWh/m2 za rok
Elektřina
230V, 400V
Odpad
Veřejná kanalizace
Komunikace
Asfaltová
Telekomunikace
Internet
Doprava
Vlak, Silnice, MHD, Autobus
Voda
Vodovod
Sklep
Bezbarierový přístup
Parkování

Kontaktovat makléře

Realitní kancelář

Logo KUZO Partners s.r.o.

KUZO Partners s.r.o.

Olbrachtova 599/8, Mladá Boleslav

Chystáte se prodat nemovitost?
Pomůžeme Vám!

Máte zájem o tento byt?

Tímto, v souladu s nařízením Evropského parlamentu a Rady (EU) 2016/679, v platném znění, prohlašuji, že mi je alespoň 16 let a uděluji tak svůj souhlas se zpracováním zadaných údajů (jméno, telefon, e-mail, ip adresa) společnosti B3 Technology, s.r.o., IČ: 07330600, se sídlem Novostavby 126/23, 435 11 Lom (správce dat), za účelem předání dotazu z tohoto formuláře Vámi vybranému inzerentovi a zpětného kontaktování mé osoby. Osobní údaje bude správce zpracovávat manuálně i automaticky přímo prostřednictvím svých zaměstnanců. Informace předané tímto formulářem budou uloženy v databázi správce maximálně po dobu 10 let. Odvolání souhlasu s uložením a zpracováním poskytnutých dat lze e-mailem na info@vitio.cz. V případě podezření na neoprávněné použití Vámi poskytnutých údajů máte právo předat podnět k šetření Úřadu pro ochranu osobních údajů. Více informací
Chystáte se prodat nemovitost?
Pomůžeme Vám!
Theleadway banner

Inzerát si prohlédlo 47 lidí

Prodejce

Jana Onderčaninová

Jana Onderčaninová

Hlídací pes

Chcete dostávat emailem podobné nabídky prodeje bytů 3+kk v Liberci?

Podobné nemovitosti