Prodej pozemku pro bydlení, Kačice, Na Vršku, 859 m2 (ID: 2593606)

Na Vršku, Kačice

6 400 000 Kč /za nemovitost HYPOTÉKA od 28 604 Kč /za měsíc

(Cena včetně provize RK a právního servisu)

Exkluzivní partneři v Kačici

Informace k pozemku

K prodeji stavební pozemek o výměře 859 m² v obci Kačice, okres Kladno. Pozemek tvoří parc. č. 424/65 a 424/56 a nachází se v nové rezidenční čtvrti s rodinnými domy.

Pozemek je plně zasíťovaný – k dispozici je elektřina, plyn, obecní vodovod, kanalizace a optický internet.

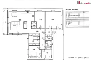
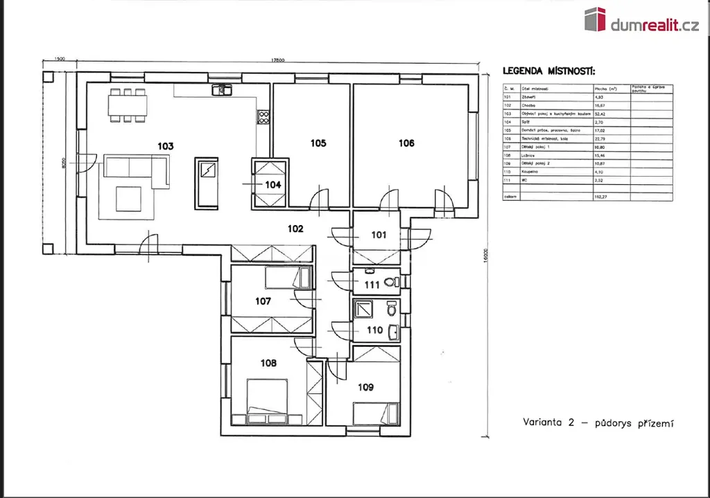
Velkou výhodou je, že se prodává s platným stavebním povolením a kompletním projektem rodinného domu 4+kk s valbovou střechou, akumulační nádrží na dešťovou vodu a dvěma parkovacími místy. Nový majitel tak může okamžitě zahájit výstavbu bez zdlouhavého vyřizování.

Regulace dle územního plánu Kačice

zastavitelnost až 45 % plochy pozemku (cca 387 m²) – možnost postavit prostorný rodinný dům s garáží či doplňkovými stavbami

přípustná výstavba: 1 nadzemní podlaží + obytné podkroví

Výhody pozemku

plocha 859 m² (parc. č. 424/65 a 424/56)

kompletní inženýrské sítě včetně optiky

stavební povolení a projekt v ceně

možnost okamžité výstavby

klidná lokalita s novou zástavbou

výborná dopravní dostupnost: Praha 20 minut (rychlý nájezd na D6), Kladno jen pár minut

Občanská vybavenost

Obec Kačice nabízí mateřskou i základní školu, obchod, restaurace a další služby. V okolí jsou lesy, cyklostezky a možnosti rodinného vyžití, což zvyšuje atraktivitu pro bydlení.

Tento pozemek není jen prázdná parcela, ale kompletně připravený základ pro okamžitou výstavbu rodinného domu. Pokud hledáte místo, kde můžete bez zbytečných průtahů realizovat své bydlení, je to ideální volba. Ev. číslo: 652351.

Parametry pozemku

Cena
6 400 000 Kč /za nemovitost Spočítat hypotéku
Poznámka k ceně
Cena včetně provize RK a právního servisu
Aktualizováno
25. 2. 2026
Adresa
Na Vršku, Kačice
ID
652965
Plocha pozemku
859 m2
Topení
Jiné

Kontaktovat makléře

Máte zájem o tento pozemek?

Tímto, v souladu s nařízením Evropského parlamentu a Rady (EU) 2016/679, v platném znění, prohlašuji, že mi je alespoň 16 let a uděluji tak svůj souhlas se zpracováním zadaných údajů (jméno, telefon, e-mail, ip adresa) společnosti B3 Technology, s.r.o., IČ: 07330600, se sídlem Novostavby 126/23, 435 11 Lom (správce dat), za účelem předání dotazu z tohoto formuláře Vámi vybranému inzerentovi a zpětného kontaktování mé osoby. Osobní údaje bude správce zpracovávat manuálně i automaticky přímo prostřednictvím svých zaměstnanců. Informace předané tímto formulářem budou uloženy v databázi správce maximálně po dobu 10 let. Odvolání souhlasu s uložením a zpracováním poskytnutých dat lze e-mailem na info@vitio.cz. V případě podezření na neoprávněné použití Vámi poskytnutých údajů máte právo předat podnět k šetření Úřadu pro ochranu osobních údajů. Více informací
Chystáte se prodat nemovitost?
Pomůžeme Vám!

Inzerát si prohlédlo 0 lidí

Prodejce

Michal Gažo

Michal Gažo

Hlídací pes

Chcete dostávat emailem podobné nabídky prodeje pozemků pro bydlení v Kačici?

Podobné nemovitosti