Prodej bytu 3+kk, Praha - Smíchov, Nádražní, 64 m2 (ID: 2593051)

Nádražní, Praha, Smíchov

11 990 000 Kč /za nemovitost HYPOTÉKA od 53 588 Kč /za měsíc
Exkluzivní partneři v Praze 5

Stěhovací služby

Výkup a prodej starého nábytku

Informace k bytu

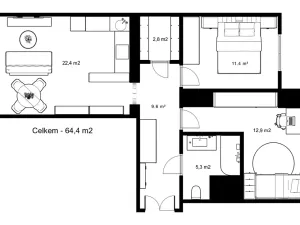
Exkluzivní nabídka světlého bytu o výměře 64 m2.
Pocitově velmi klidný a příjemný byt se nachází ve 2. P v pečlivě spravovaném a udržovaném cihlovém domě, ve správě výborně fungujícího SVJ.

Pocit komfortního bydlení, vzdušnosti a velkorysého prostoru dotváří vysoké stropy se sníženými podhledy s nainstalovaným odhlučněním.

Dispozici bytu tvoří tři samostatné neprůchozí místnosti, koupelna s toaletou a technická místnost.
K vybavení bytu patří kuchyňská linka s vestavěnými spotřebiči.

Orientace bytu je příznivá.
Obývací pokoj je orientován na západní světovou stranu, ložnice a dětský pokoj směřují do klidného vnitrobloku s orientací na východ.
Dostatek denního světla a zároveň snížení hluku do místností, zajišťují kvalitní dřevěná eurookna s izolačními dvojskly.

Byt byl kompletně a precizně zrekonstruován, je nově vymalovaný bez potřeby investic, ihned volný.
Ve fotogalerii se nachází i návrh možné úpravy obývacího pokoje a ložnice.

Parkování za symbolickou cenu formou ročního pronájmu, je možné na vyhrazeném parkovacím místě ve vnitrobloku.
K dispozici je prostorný sklep v suterénu domu o výměře 12 m2.

Lokalita s kompletní občanskou vybaveností.
Výborná dopravní dostupnost - stanice metra 2 minuty chůze, centrum města pohodlně dosažitelné v čase 10 minut.

V současnosti probíhá v okolí výstavba nových developerských projektů, které po dokončení zvýší investiční potenciál dynamicky se rozvíjejícího, městského centra levého břehu Vltavy.

Kompletní informace v RK.

Parametry bytu

Cena
11 990 000 Kč /za nemovitost Spočítat hypotéku
Aktualizováno
25. 2. 2026
Adresa
Nádražní, Praha, Smíchov
ID
N00388
Stavba
Cihlová
Stav objektu
Po rekonstrukci
Patro
2. z 3
Lokalita objektu
Centrum obce
Vlastnictví
Osobní
Užitná plocha
64 m2
Podlahová plocha
64 m2
Třída energetické náročnosti
G - Mimořádně nehospodárná
Elektřina
230V
Plyn
Plynovod
Odpad
Veřejná kanalizace
Telekomunikace
Telefon, Internet, Kabelová televize
Doprava
Vlak, Dálnice, Silnice, MHD, Autobus
Voda
Vodovod
Sklep
Parkování

Kontaktovat makléře

Máte zájem o tento byt?

Tímto, v souladu s nařízením Evropského parlamentu a Rady (EU) 2016/679, v platném znění, prohlašuji, že mi je alespoň 16 let a uděluji tak svůj souhlas se zpracováním zadaných údajů (jméno, telefon, e-mail, ip adresa) společnosti B3 Technology, s.r.o., IČ: 07330600, se sídlem Novostavby 126/23, 435 11 Lom (správce dat), za účelem předání dotazu z tohoto formuláře Vámi vybranému inzerentovi a zpětného kontaktování mé osoby. Osobní údaje bude správce zpracovávat manuálně i automaticky přímo prostřednictvím svých zaměstnanců. Informace předané tímto formulářem budou uloženy v databázi správce maximálně po dobu 10 let. Odvolání souhlasu s uložením a zpracováním poskytnutých dat lze e-mailem na info@vitio.cz. V případě podezření na neoprávněné použití Vámi poskytnutých údajů máte právo předat podnět k šetření Úřadu pro ochranu osobních údajů. Více informací
Chystáte se prodat nemovitost?
Pomůžeme Vám!

Inzerát si prohlédlo 0 lidí

Prodejce

Jiří Švára

Jiří Švára

Hlídací pes

Chcete dostávat emailem podobné nabídky prodeje bytů 3+kk v Praze 5?

Podobné nemovitosti