Prodej činžovního domu, Praha - Strašnice, Na hroudě, 400 m2 (ID: 2592190)

Na hroudě, Praha 10

43 750 000 Kč /za nemovitost HYPOTÉKA od 195 536 Kč /za měsíc
Exkluzivní partneři v Praze 10

Stěhovací služby

Výkup a prodej starého nábytku

Pojištění a finance

Informace k nemovitosti

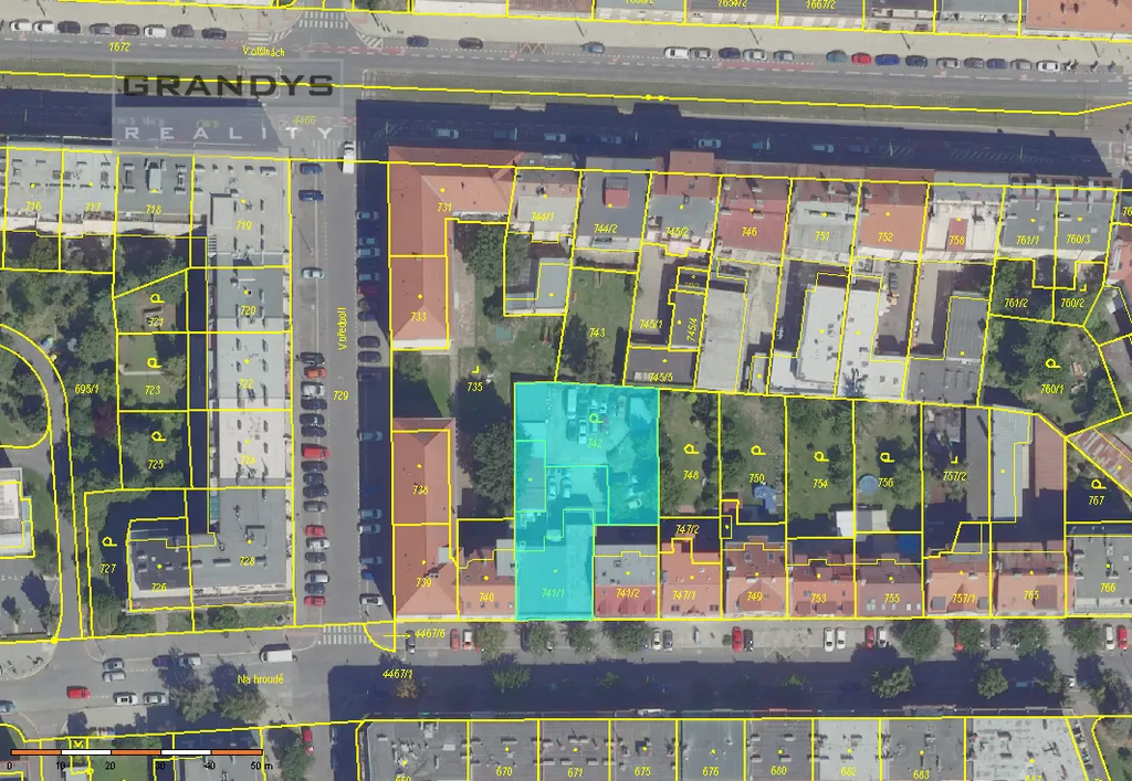
Nabízíme ke koupi zajímavý investorský činžovní dům s velkým pozemkem ve Strašnicích. Dům se nachází na adrese Na Hroudě 29a, je před kompletní rekonstrukcí, nebo demolicí, možno vystavět jedno až dvě patra. Celková plocha pozemku činí 1085 m2, zastavěná 317 m2 (bez autoservisu na druhém pozemku). Vjezd na pozemek je zajištěn průjezdem v sousedním domu (jsou zřízena věcná břemena).

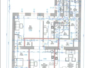
Aktuální stav: dvoupodlažní dům je bývalá budova výroby. Přestavěno na dvě prodejny ve spodním patře a tři bytové jednotky ve 2. NP. Celková užitná plocha činí zhruba 200 m2.

Pro více informací mě kontaktujte.

Parametry nemovitosti

Cena
43 750 000 Kč /za nemovitost Spočítat hypotéku
Aktualizováno
24. 2. 2026
Adresa
Na hroudě, Praha 10
ID
0351
Stavba
Smíšená
Stav objektu
Před rekonstrukcí
Typ objektu
Patrový
Lokalita objektu
Klidná část obce
Užitná plocha
400 m2
Zastavěná plocha
317 m2
Plocha zahrady
1085 m2
Třída energetické náročnosti
G - Mimořádně nehospodárná
Plyn
Plynovod
Odpad
Veřejná kanalizace
Převod do OV

Kontaktovat makléře

Realitní kancelář

Logo Grandys reality

Grandys reality

Karlovo náměstí 72, Kolín

Chystáte se prodat nemovitost?
Pomůžeme Vám!

Máte zájem o tuto nemovistost?

Tímto, v souladu s nařízením Evropského parlamentu a Rady (EU) 2016/679, v platném znění, prohlašuji, že mi je alespoň 16 let a uděluji tak svůj souhlas se zpracováním zadaných údajů (jméno, telefon, e-mail, ip adresa) společnosti B3 Technology, s.r.o., IČ: 07330600, se sídlem Novostavby 126/23, 435 11 Lom (správce dat), za účelem předání dotazu z tohoto formuláře Vámi vybranému inzerentovi a zpětného kontaktování mé osoby. Osobní údaje bude správce zpracovávat manuálně i automaticky přímo prostřednictvím svých zaměstnanců. Informace předané tímto formulářem budou uloženy v databázi správce maximálně po dobu 10 let. Odvolání souhlasu s uložením a zpracováním poskytnutých dat lze e-mailem na info@vitio.cz. V případě podezření na neoprávněné použití Vámi poskytnutých údajů máte právo předat podnět k šetření Úřadu pro ochranu osobních údajů. Více informací
Chystáte se prodat nemovitost?
Pomůžeme Vám!
Theleadway banner

Inzerát si prohlédlo 26 lidí

Prodejce

Tobiáš Pikart

Tobiáš Pikart

Hlídací pes

Chcete dostávat emailem podobné nabídky prodeje činžovních domů v Praze 10?

Podobné nemovitosti