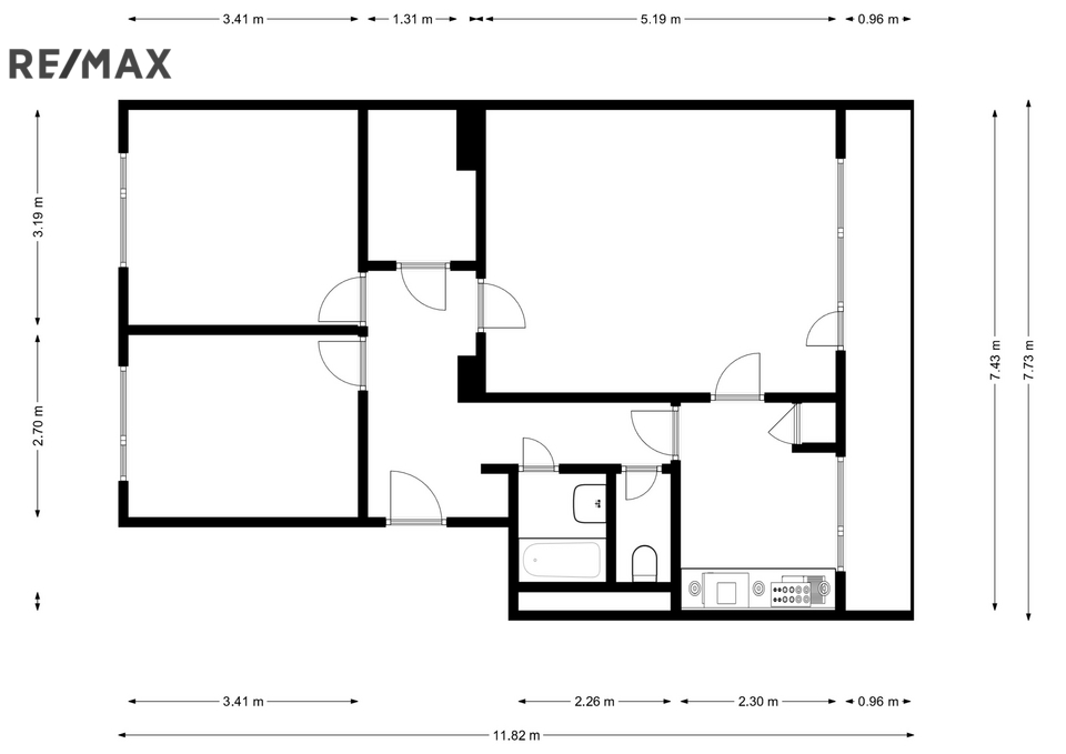
Prodej bytu 3+1, Jaroměř - Pražské Předměstí, Smetanova, 80 m2

Smetanova, Jaroměř, Pražské Předměstí

4 750 000 Kč /za nemovitost HYPOTÉKA od 21 230 Kč /za měsíc
Exkluzivní partneři v Jaroměři

Informace k bytu

Nabízíme k prodeji větší byt 3+1 o užitné ploše 80 m² na adrese Smetanova č. p. 688, část obce Pražské Předměstí, obec Jaroměř, okres Náchod. Byt se nachází ve zděném domě s výtahem ve 3.NP. Dispozice i velikost bytu je vhodná pro 4 člennou rodinu.

Před 5 lety proběhla rekonstrukce-zateplení a výměna oken. Přidanou hodnotu bytu tvoří velká lodžie, větší komora s přístupem z chodby bytu, zděný sklep, vlastní parkování pro bytový dům na počet bytů. Byt se nachází v klidné části obce v dosahu centra města, v blízkosti je škola, mateřská škola, gymnázium, sportovní areál, zimní stadion, lékárna, rehabilitační středisko, obchod COOP. Dalším plusem je úpravna vody.

Díky kombinaci velikosti bytu, dobré konstrukci domu, výborné polohy a nízkých provozních nákladů jde o velmi zajímavou nabídku jak pro bydlení tak i pro investiční příležitost s nemalým potenciálem. V případě zájmu o prohlídku mě neváhejte kontaktovat.

Parametry bytu

Cena
4 750 000 Kč /za nemovitost Spočítat hypotéku
Aktualizováno
23. 2. 2026
Adresa
Smetanova, Jaroměř, Pražské Předměstí
ID
305-NP00899
Stavba
Cihlová
Stav objektu
Dobrý
Patro
3. z 7
Vybaveno
Ne
Lokalita objektu
Klidná část obce
Vlastnictví
Osobní
Užitná plocha
80 m2
Třída energetické náročnosti
C - Úsporná
Elektřina
230V
Odpad
Veřejná kanalizace
Komunikace
Asfaltová
Voda
Vodovod
Výtah

Kontaktovat makléře

Realitní kancelář

RE/MAX Infinity

Masarykovo náměstí 392/14, Hradec Králové

Chystáte se prodat nemovitost?
Pomůžeme Vám!

Máte zájem o tento byt?

Tímto, v souladu s nařízením Evropského parlamentu a Rady (EU) 2016/679, v platném znění, prohlašuji, že mi je alespoň 16 let a uděluji tak svůj souhlas se zpracováním zadaných údajů (jméno, telefon, e-mail, ip adresa) společnosti B3 Technology, s.r.o., IČ: 07330600, se sídlem Novostavby 126/23, 435 11 Lom (správce dat), za účelem předání dotazu z tohoto formuláře Vámi vybranému inzerentovi a zpětného kontaktování mé osoby. Osobní údaje bude správce zpracovávat manuálně i automaticky přímo prostřednictvím svých zaměstnanců. Informace předané tímto formulářem budou uloženy v databázi správce maximálně po dobu 10 let. Odvolání souhlasu s uložením a zpracováním poskytnutých dat lze e-mailem na info@vitio.cz. V případě podezření na neoprávněné použití Vámi poskytnutých údajů máte právo předat podnět k šetření Úřadu pro ochranu osobních údajů. Více informací
Chystáte se prodat nemovitost?
Pomůžeme Vám!

Inzerát si prohlédlo 0 lidí

Prodejce

Ing. Boris Oláh

Ing. Boris Oláh

Hlídací pes

Chcete dostávat emailem podobné nabídky prodeje bytů 3+1 v Jaroměři?

Podobné nemovitosti