Soccer reality

Pronájem obchodního prostoru, Praha - Horní Počernice, K Bílému vrchu, 1400 m2 (ID: 2587974)

K Bílému vrchu, Praha, Horní Počernice

11 € /za metr čtvereční / měsíc Získejte výhodnou HYPOTÉKU

(bez služeb, bez DPH, bez poplatků)

Exkluzivní partneři v Praze 9

Stěhovací služby

Výkup a prodej starého nábytku

Informace k nemovitosti

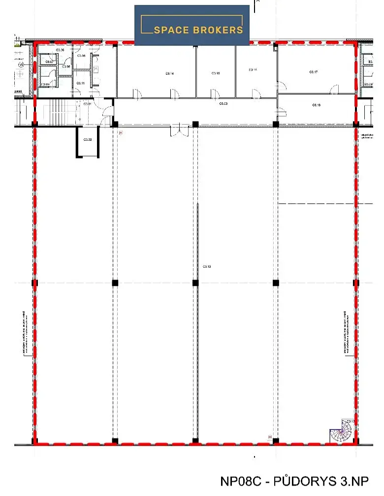
Se souhlasem pronajímatele nabízíme k pronájmu atraktivní obchodní prostory v průmyslové zóně v Horních Počernicích v projektu NORDPARK o velikosti 1,400m2. Jedná se o kompaktní jednotku umístěnou budově s nákladním výtahem ve 3.patře. Ideální pro provoz v kombinaci showroom, sklad, kanceláře a sociální zázemí.

V tomto projektu si můžete pronajmout také prostory vhodné pro:

- moderní kanceláře
- výrobní a vývojové prostory
- showroomy a obchody
- laboratoře
- školicí prostory
- skladové prostory

K dispozici jsou jednotky již od 350m2, a proto nás neváhejte kontaktovat pro nezávaznou konzultaci.

Parametry nemovitosti

Cena
11 € /za metr čtvereční / měsíc
Poznámka k ceně
bez služeb, bez DPH, bez poplatků
Aktualizováno
19. 2. 2026
Adresa
K Bílému vrchu, Praha, Horní Počernice
ID
00184
Stavba
Skeletová
Stav objektu
Novostavba
Patro
3. z 3
Vybaveno
Částečně
Lokalita objektu
Rušná část obce
Užitná plocha
1400 m2
Třída energetické náročnosti
G - Mimořádně nehospodárná
Elektřina
230V
Plyn
Plynovod
Odpad
Veřejná kanalizace
Voda
Vodovod
Výtah
Bezbarierový přístup
Parkování

Kontaktovat makléře

Máte zájem o tuto nemovistost?

Tímto, v souladu s nařízením Evropského parlamentu a Rady (EU) 2016/679, v platném znění, prohlašuji, že mi je alespoň 16 let a uděluji tak svůj souhlas se zpracováním zadaných údajů (jméno, telefon, e-mail, ip adresa) společnosti B3 Technology, s.r.o., IČ: 07330600, se sídlem Novostavby 126/23, 435 11 Lom (správce dat), za účelem předání dotazu z tohoto formuláře Vámi vybranému inzerentovi a zpětného kontaktování mé osoby. Osobní údaje bude správce zpracovávat manuálně i automaticky přímo prostřednictvím svých zaměstnanců. Informace předané tímto formulářem budou uloženy v databázi správce maximálně po dobu 10 let. Odvolání souhlasu s uložením a zpracováním poskytnutých dat lze e-mailem na info@vitio.cz. V případě podezření na neoprávněné použití Vámi poskytnutých údajů máte právo předat podnět k šetření Úřadu pro ochranu osobních údajů. Více informací
Chystáte se prodat nemovitost?
Pomůžeme Vám!

Inzerát si prohlédlo 3 lidí

Prodejce

Ondřej Straširybka

Ondřej Straširybka

Hlídací pes

Chcete dostávat emailem podobné nabídky pronájmu obchodních prostor v Praze 9?

Podobné nemovitosti