Prodej bytu 4+kk, Praha - Karlín, Sokolovská, 92 m2 (ID: 2586799)

Sokolovská, Praha 8

13 970 000 Kč /za nemovitost HYPOTÉKA od 62 437 Kč /za měsíc
Exkluzivní partneři v Praze 8

Stěhovací služby

Výkup a prodej starého nábytku

Informace k bytu

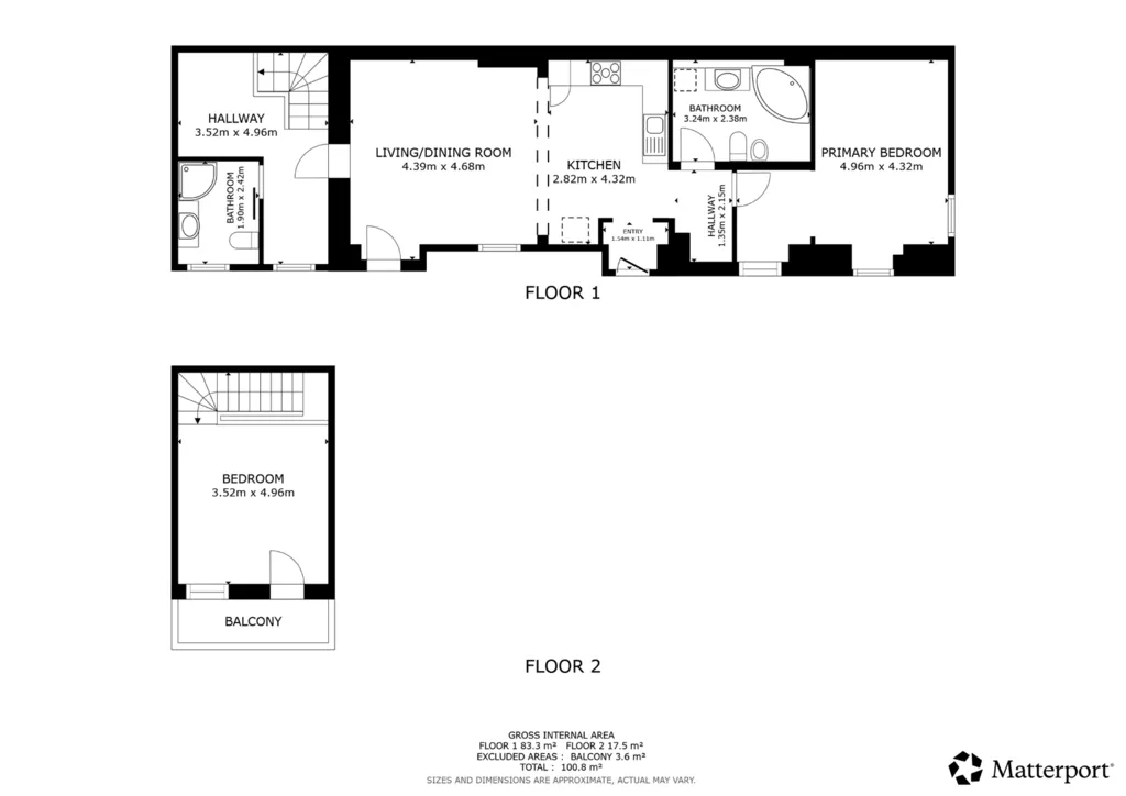
V jedné z nejžádanějších částí Prahy – v samotném srdci Karlína – nabízíme výjimečný mezonetový byt 4+kk o celkové ploše 92,29 m² (včetně balkonu), situovaný v 1. a 2. nadzemním podlaží kompletně rekonstruovaného secesního činžovního domu.
Tady nejde jen o metry čtvereční.
Tady jde o atmosféru.
Byt je orientován do klidné dvorní části domu, mimo ruch ulice, což mu dodává téměř až překvapivé ticho a intimitu. Vstup do domu je z přední části, takže dvůr zůstává komorním prostorem s minimálním provozem – bezpečný, klidný, s možností krátkodobého parkování a po dohodě i pronájmu parkovacího stání.

Tento byt byl domovem umělců. A je to znát.
Interiér vznikal s citem, kreativitou a respektem k prostoru.
Ručně vyráběné mozaiky v kuchyni i na parapetech, práce se dřevem, krbová kamna, promyšlené detaily, které nepůsobí okázale, ale přirozeně. Velkorysá knihovna, chytré úložné prostory, světlo proudící do dvorního ticha – všechno dohromady vytváří harmonii, která se dnes hledá jen těžko.
Byt působí autenticky, živě a zároveň klidně.
Je to prostor, kde se tvoří, čte, hraje na piano, vaří s přáteli a večer sedí u krbových kamen.
Po dohodě je možné ponechat kompletní vybavení včetně piana – a převzít tak nejen byt, ale i jeho atmosféru.

Karlín není jen adresa. Je to komunita, energie, kombinace historie a moderního městského života.
Metro i tramvaj jsou dvě minuty chůze. Kavárny, restaurace, školy, školky, designové obchody i řeka s cyklostezkou – vše je doslova za rohem. Ráno běh podél Vltavy, dopoledne práce v centru, večer víno v oblíbeném bistru.
Zde bydlíte v centru dění, ale spíte v klidu dvora.

Dispozice bytu umožňuje stavební rozdělení na dvě jednotky 2+kk, což otevírá zajímavé investiční možnosti.
Díky lokalitě, dispozici i charakteru prostoru je byt ideální nejen pro rodinné bydlení, ale i pro krátkodobé či střednědobé pronajímání. Karlín dlouhodobě patří mezi nejžádanější pražské čtvrti jak mezi expaty, tak mezi turisty hledající autentické bydlení mimo hotelový standard.
Satelitní připojení, bezpečnostní kamerový systém v domě a bezproblémové SVJ bez dluhů jsou samozřejmostí.


Základní informace
4+kk, 92,29 m² včetně balkonu
osobní vlastnictví, možnost financování hypotékou
služby (4 osoby): 3 823 Kč
elektřina: 1 530 Kč
plyn: 2 260 Kč
dům po kompletní rekonstrukci
Tento byt není sterilní novostavba.
Je to prostor s příběhem. A ten může pokračovat.
Ozvěte se mi, rád Vám osobně představím Váš budoucí domov.

Parametry bytu

Cena
13 970 000 Kč /za nemovitost Spočítat hypotéku
Aktualizováno
18. 2. 2026
Adresa
Sokolovská, Praha 8
ID
18875
Stavba
Smíšená
Stav objektu
Velmi dobrý
Patro
1. z 4
Vlastnictví
Osobní
Užitná plocha
92 m2
Zastavěná plocha
415 m2
Podlahová plocha
92 m2
Třída energetické náročnosti
D - Méně úsporná
Elektřina
230V
Plyn
Plynovod
Odpad
Veřejná kanalizace
Komunikace
Dlážděná
Telekomunikace
Telefon, Internet
Doprava
Vlak, Dálnice, Silnice, MHD, Autobus
Voda
Vodovod
Balkon
Bezbarierový přístup

Kontaktovat makléře

Realitní kancelář

Logo QARA, s.r.o.

QARA, s.r.o.

Šafaříkova 201/17, Praha

Chystáte se prodat nemovitost?
Pomůžeme Vám!

Máte zájem o tento byt?

Tímto, v souladu s nařízením Evropského parlamentu a Rady (EU) 2016/679, v platném znění, prohlašuji, že mi je alespoň 16 let a uděluji tak svůj souhlas se zpracováním zadaných údajů (jméno, telefon, e-mail, ip adresa) společnosti B3 Technology, s.r.o., IČ: 07330600, se sídlem Novostavby 126/23, 435 11 Lom (správce dat), za účelem předání dotazu z tohoto formuláře Vámi vybranému inzerentovi a zpětného kontaktování mé osoby. Osobní údaje bude správce zpracovávat manuálně i automaticky přímo prostřednictvím svých zaměstnanců. Informace předané tímto formulářem budou uloženy v databázi správce maximálně po dobu 10 let. Odvolání souhlasu s uložením a zpracováním poskytnutých dat lze e-mailem na info@vitio.cz. V případě podezření na neoprávněné použití Vámi poskytnutých údajů máte právo předat podnět k šetření Úřadu pro ochranu osobních údajů. Více informací
Chystáte se prodat nemovitost?
Pomůžeme Vám!

Inzerát si prohlédlo 1 lidí

Prodejce

Ondřej Petr

Ondřej Petr

Hlídací pes

Chcete dostávat emailem podobné nabídky prodeje bytů 4+kk v Praze 8?

Podobné nemovitosti