Prodej bytu 2+1, Praha - Malešice, Cerhenická, 52 m2

Cerhenická, Praha, Malešice

6 450 000 Kč /za nemovitost HYPOTÉKA od 28 828 Kč /za měsíc

(Anuita splacena)

Exkluzivní partneři v Praze 10

Stěhovací služby

Výkup a prodej starého nábytku

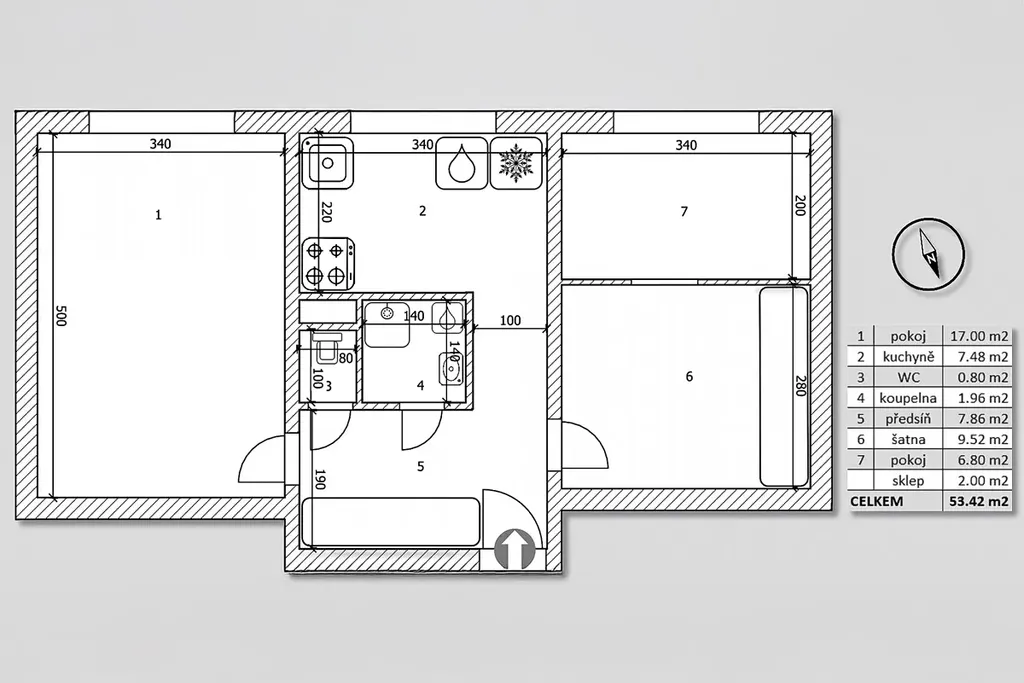
Informace k bytu

Světlý byt 2+1 v klidné a vyhledávané části Prahy 10 - Malešice, v bezprostřední blízkosti Malešického parku.

Byt se nachází v 1. patře revitalizovaného panelového domu, který prošel kompletní rekonstrukcí (zateplení, nová střecha, modernizace společných prostor i vstupů do bytů). Dům je velmi dobře udržovaný, má fungující družstvo a nízké měsíční náklady. Anuita je plně splacena.

Energetická náročnost budovy: C - Úsporná

Dispozice

Praktické a dlouhodobě velmi žádané uspořádání 2+1 nabízí:

- dva neprůchozí pokoje
- kuchyň s oknem
- koupelna se sprchovým koutem
- samostatné WC
- předsíň se šatní skříní

Díky uspořádání je byt vhodný jak pro pár či jednotlivce, tak i pro dvě nezávislé osoby (např. spolubydlení nebo rodič s dospělým dítětem).
K bytu náleží sklepní kóje v suterénu domu.

Měsíční náklady na byt jsou 4.132 Kč + elektřina.

Stav a potenciál

Byt je v udržovaném a plně obyvatelném stavu, zároveň však nabízí prostor pro modernizaci dle vlastních představ. Dispozice i lokalita z něj činí vhodnou volbu jak pro vlastní bydlení, tak i jako investici.

Součástí prezentace jsou jak reálné fotografie aktuálního stavu bytu, tak i vizualizace, které slouží pro lepší představu o možném budoucím řešení interiéru.

Lokalita

Jednou z hlavních předností je plno zeleně, klid a prostor pro sport i relaxaci doslova u domu.
V okolí je kompletní občanská vybavenost (obchody, školy, školky, lékaři, služby, restaurace). Samozřejmostí je velmi dobré autobusové spojení a snadná dostupnost do centra města i na hlavní dopravní tahy.

Vlastnictví a financování

Byt je v družstevním vlastnictví (převod členských práv a povinností). Nelze jej financovat klasickou hypotékou se zástavou nemovitosti, je tedy vhodný pro kupující s vlastními zdroji nebo s možností zajištění úvěru jinou nemovitostí.

Parametry bytu

Cena
6 450 000 Kč /za nemovitost Spočítat hypotéku
Poznámka k ceně
Anuita splacena
Aktualizováno
16. 2. 2026
Adresa
Cerhenická, Praha, Malešice
ID
0326P
Stavba
Panelová
Stav objektu
Velmi dobrý
Patro
2. z 5
Vlastnictví
Družstevní
Užitná plocha
52 m2
Podlahová plocha
54 m2
Třída energetické náročnosti
G - Mimořádně nehospodárná
Topení
Ústřední dálkové
Doprava
MHD, Autobus
Topné těleso
Radiátory
Sklep
Bezbarierový přístup
Převod do OV

Kontaktovat makléře

Realitní kancelář

Bohemia reality

Anny Letenské 34/7, Praha 2

Chystáte se prodat nemovitost?
Pomůžeme Vám!

Máte zájem o tento byt?

Tímto, v souladu s nařízením Evropského parlamentu a Rady (EU) 2016/679, v platném znění, prohlašuji, že mi je alespoň 16 let a uděluji tak svůj souhlas se zpracováním zadaných údajů (jméno, telefon, e-mail, ip adresa) společnosti B3 Technology, s.r.o., IČ: 07330600, se sídlem Novostavby 126/23, 435 11 Lom (správce dat), za účelem předání dotazu z tohoto formuláře Vámi vybranému inzerentovi a zpětného kontaktování mé osoby. Osobní údaje bude správce zpracovávat manuálně i automaticky přímo prostřednictvím svých zaměstnanců. Informace předané tímto formulářem budou uloženy v databázi správce maximálně po dobu 10 let. Odvolání souhlasu s uložením a zpracováním poskytnutých dat lze e-mailem na info@vitio.cz. V případě podezření na neoprávněné použití Vámi poskytnutých údajů máte právo předat podnět k šetření Úřadu pro ochranu osobních údajů. Více informací
Chystáte se prodat nemovitost?
Pomůžeme Vám!

Inzerát si prohlédlo 1 lidí

Prodejce

Smetana Petr

Smetana Petr

Hlídací pes

Chcete dostávat emailem podobné nabídky prodeje bytů 2+1 v Praze 10?

Podobné nemovitosti