Pronájem kanceláře, Brno - Židenice, Kosmákova, 50 m2 (ID: 2582074)

Kosmákova, Brno, Židenice

11 000 Kč /za měsíc Získejte výhodnou HYPOTÉKU
Exkluzivní partneři v Brně

Informace k nemovitosti

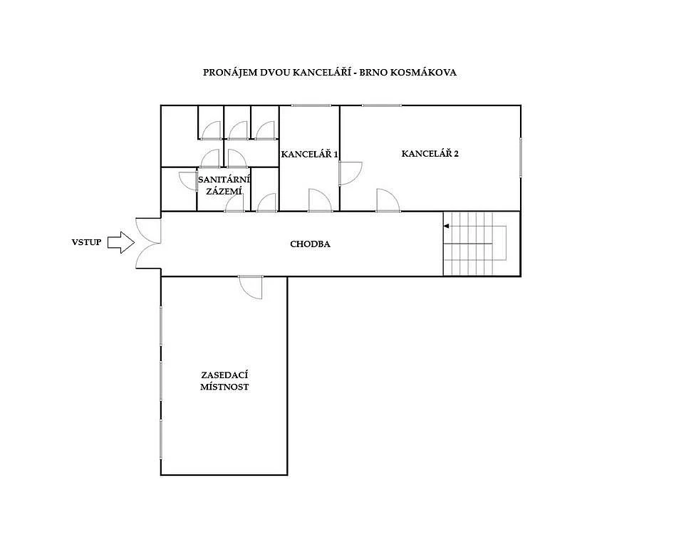
PRONÁJEM DVOU KANCELÁŘÍ O CELKOVÉ PLOŠE CCA 50 m², BRNO ŽIDENICE

Nabízíme Vám k Vašemu podnikání pěkné a útulné nebytové prostory skládající se ze dvou sousedících kanceláří, které se nachází ve vyhledávané lokalitě díky své velmi dobré dopravní dostupností v městské části Brno Židenice, na ulici Kosmáková. V blízkosti se nachází obchody i zastávky MHD. Jedná se o dvě kanceláře, které lze pronajmout i zvlášť, jinak mohou tvořit velmi příjemný funkční celek.

Celková plocha činí cca 50 m².

Dispozice:
Jedná se o dvě samostatné kanceláře o velikosti cca 38 m² a cca 12 m², které se nachází v přízemí budovy. Větší místnost může sloužit jako hlavní kancelářský prostor a menší místnost jako zázemí pro další pracovní místo, archiv či sklad dokumentů. Obě místnosti jsou světlé. Hlavní kancelář je nově vybavena malou kuchyňskou linkou s dostatečným úložným prostorem a dřezem. Menší kancelář se nabízí bez vybavení. Na chodbě jsou společné prostory jako je WC nebo zasedací místnost, kterou si lze pronajmout za poplatek. Zasedací místnost je vybavena velkým stolem se židlemi, křesly, televizemi a dalším nábytkem včetně kuchyňské linky s dřezem a lednicí.

Objekt je zabezpečen kamerovým systémem, vstup do areálu je přes bránu, což zajišťuje bezpečný přístup a ochranu prostor.

Měsíční poplatky:
Nájemné činí 11.000, - Kč měsíčně + DPH v zákonné výši.
Poplatky za služby činí 4.456, - Kč měsíčně. Tato částka obsahuje zálohu na vytápění ve výši 1.812, - Kč, záloha na elektřinu ve výši 1.600, - Kč, záloha na vodné a stočné ve výši 794, - Kč a internetové připojení ve výši 250, - Kč.
Kauce činí 15.500, - Kč.

Prostory je k dispozici ihned a prohlídky jsou možné kdykoli po domluvě, prohlídky jsou možné dle dohody. Je možné kanceláře pronajmout i každou zvlášť.

Lokalita:
V blízkosti kanceláří se nachází vlakové nádraží Brno Židenice, kde zastavují osobní vlaky IDSJMK linek S3, S2 a S6 a rychlíky z Břeclavi a Prahy. Dále se zde nachází dopravní uzel tramvají, trolejbusu a autobusu MHD Stará osada. V dosahu je také hypermarket Kaufland a supermarket Albert. Oproti kanceláří je restaurace, která nabízí možnost si zajít na dobrý oběd v polední přestávce.

Jestliže Vás naše nabídka zaujala, neváhejte nás kontaktovat na níže telefonním čísle nebo emailu.

Nebytový prostor je vhodný jako kancelář, sklad, ale například i výdejnu e-shopu.

Více informací naleznete na WWW. CRG. AS

Parametry nemovitosti

Cena
11 000 Kč /za měsíc
Aktualizováno
12. 2. 2026
Adresa
Kosmákova, Brno, Židenice
ID
251
Stavba
Cihlová
Vybaveno
Částečně
Vlastnictví
Osobní
Užitná plocha
50 m2
Třída energetické náročnosti
G - Mimořádně nehospodárná

Kontaktovat makléře

Máte zájem o tuto nemovistost?

Tímto, v souladu s nařízením Evropského parlamentu a Rady (EU) 2016/679, v platném znění, prohlašuji, že mi je alespoň 16 let a uděluji tak svůj souhlas se zpracováním zadaných údajů (jméno, telefon, e-mail, ip adresa) společnosti B3 Technology, s.r.o., IČ: 07330600, se sídlem Novostavby 126/23, 435 11 Lom (správce dat), za účelem předání dotazu z tohoto formuláře Vámi vybranému inzerentovi a zpětného kontaktování mé osoby. Osobní údaje bude správce zpracovávat manuálně i automaticky přímo prostřednictvím svých zaměstnanců. Informace předané tímto formulářem budou uloženy v databázi správce maximálně po dobu 10 let. Odvolání souhlasu s uložením a zpracováním poskytnutých dat lze e-mailem na info@vitio.cz. V případě podezření na neoprávněné použití Vámi poskytnutých údajů máte právo předat podnět k šetření Úřadu pro ochranu osobních údajů. Více informací
Chystáte se prodat nemovitost?
Pomůžeme Vám!

Inzerát si prohlédlo 0 lidí

Prodejce

Michaela Šopíková

Michaela Šopíková

Hlídací pes

Chcete dostávat emailem podobné nabídky pronájmu kanceláří v Brně?

Podobné nemovitosti