Pronájem rodinného domu, Soběšovice, 87 m2

Horní Soběšovice

45 000 Kč /za měsíc Získejte výhodnou HYPOTÉKU
Exkluzivní partneři v Soběšovicích

Informace k domu

Hledáte místo, kde budete mít přírodu, vodu a slunce doslova na dosah?

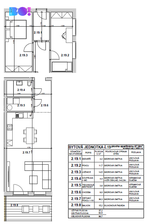
BO! Reality vám s velkou radostí představuje k pronájmu zcela nový řadový rodinný dům o dispozici 3+kk a podlahové ploše 87,8 m², nacházející se v srdci Horních Soběšovic, jen pár kroků od přehrady.
Ideální pro ty, kteří milují klid, procházky u vody, ranní slunce na terase a večerní západy s vůní lesa. Místo, kde si odpočinete, nadechnete se a budete opravdu doma.

Dispozice a vybavení:

Kompletně nový a plně vybavený apartmán 3+kk 87,8 m² a terasa 15,2 m².
Kuchyně na míru včetně moderních spotřebičů: lednice s mrazákem, mikrovlnná trouba, elektrická trouba, varná deska, myčka nádobí a digestoř.
V kuchyni stůl a židle, v obývacím pokoji pohodlný gauč a konferenční stolek.
Ložnice s postelí a nočními stolky – připravená k nastěhování.
Koupelna s pračkou, sušičkou a žebříkovým radiátorem.
Podlahové topení pro maximální komfort po celý rok.
Klimatizace pro horké letní dny.
Alarm a trezor pro vaše bezpečí a klid.
Parkovací místo přímo před domem.

Lokalita a okolí:

Příroda a voda na dosah: procházky kolem přehrady, běhání, cyklostezky, paddleboard, koupání, rybaření.
Slunné dny u vody a večery s výhledem – dokonalé místo pro relax i aktivní život.
Občanská vybavenost v blízkém okolí: obchody, kavárny a restaurace, dětská hřiště, základní občanské služby.
Dobrá dostupnost do okolních měst, klidná a bezpečná lokalita.

Podmínky nájmu:

Nájem: 45.000 Kč měsíčně. Záloha na služby: 6.000 Kč (voda, elektřina).
Vratná jistota (kauce) ve výši tří měsíčních nájmů a administrativní poplatek realitní kanceláři ve výši jednoho měsíčního nájemného + DPH.
Možnost trvalého pobytu a vhodné k dlouhodobému bydlení.

Tento řadový rodinný dům je ideální volbou pro jednotlivce, páry i ty, kdo hledají druhý domov u vody.
Pokud chcete žít v harmonii s přírodou a mít přitom veškerý komfort moderního bydlení, ozvěte se – rádi vás provedeme.

Srdce vás sem přivede, klid a slunce si vás tu udrží.

BO! spolu tvoříme příběhy...

Parametry domu

Cena
45 000 Kč /za měsíc
Aktualizováno
12. 2. 2026
Adresa
Horní Soběšovice
ID
8026
Stavba
Cihlová
Stav objektu
Novostavba
Vybaveno
Ano
Typ objektu
Patrový
Druh objektu
Řadový
Lokalita objektu
Klidná část obce
Užitná plocha
87 m2
Plocha pozemku
100 m2
Třída energetické náročnosti
B - Velmi úsporná
Elektřina
230V
Odpad
Veřejná kanalizace
Komunikace
Betonová, Dlážděná, Asfaltová
Telekomunikace
Internet, Ostatní
Doprava
Silnice, MHD, Autobus
Voda
Vodovod
Bezbarierový přístup
Převod do OV
Parkování
Nízkoenergetický

Kontaktovat makléře

Máte zájem o tento dům?

Tímto, v souladu s nařízením Evropského parlamentu a Rady (EU) 2016/679, v platném znění, prohlašuji, že mi je alespoň 16 let a uděluji tak svůj souhlas se zpracováním zadaných údajů (jméno, telefon, e-mail, ip adresa) společnosti B3 Technology, s.r.o., IČ: 07330600, se sídlem Novostavby 126/23, 435 11 Lom (správce dat), za účelem předání dotazu z tohoto formuláře Vámi vybranému inzerentovi a zpětného kontaktování mé osoby. Osobní údaje bude správce zpracovávat manuálně i automaticky přímo prostřednictvím svých zaměstnanců. Informace předané tímto formulářem budou uloženy v databázi správce maximálně po dobu 10 let. Odvolání souhlasu s uložením a zpracováním poskytnutých dat lze e-mailem na info@vitio.cz. V případě podezření na neoprávněné použití Vámi poskytnutých údajů máte právo předat podnět k šetření Úřadu pro ochranu osobních údajů. Více informací
Chystáte se prodat nemovitost?
Pomůžeme Vám!

Inzerát si prohlédlo 0 lidí

Prodejce

Darina Pekárková

Darina Pekárková

Hlídací pes

Chcete dostávat emailem podobné nabídky pronájmu rodinných domů v Soběšovicích?

Podobné nemovitosti