Prodej bytu 1+kk, Rychnov nad Kněžnou, Javornická, 33 m2

Javornická, Rychnov nad Kněžnou

3 125 000 Kč /za nemovitost HYPOTÉKA od 13 967 Kč /za měsíc
Exkluzivní partneři v Rychnovu nad Kněžnou

Informace k bytu

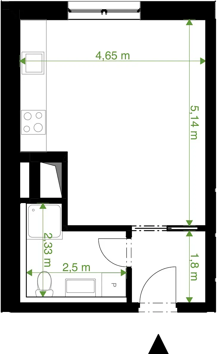
Nabízíme k prodeji exkluzivní byt 1+kk v Rychnově nad Kněžnou. Tento jednopodlažní byt se nachází ve velmi dobrém stavu a je umístěn v pátém nadzemním podlaží pětipodlažního domu se smíšenou konstrukcí. Prostorná užitná plocha 33 m2 poskytuje pohodlné bydlení pro jednotlivce či pár.

Byt je situován ve velmi dobrém stavu, což zajišťuje bezstarostné bydlení bez nutnosti dalších investic. Součástí je také sklep, který poskytuje další úložný prostor pro vaše potřeby. Objekt je napojen na třífázové rozvody, což umožňuje dostatečný přísun elektřiny pro všestranné domácí využití.

Energetická třída A svědčí o velice úsporném provozu bytu, díky čemuž se jedná o nízkoenergetický byt. Přestože z parametru internetového připojení není zřejmé, jaký typ je zde k dispozici, možnosti připojení by měl zajistit poskytovatel služeb v regionu.

Byt bude k nastěhování od 1. prosince 2028, s prodejem započneme již od 10. února 2026. Tato zajímavá investiční příležitost v oblastech s rostoucí poptávkou po bydlení nabízí skvělou příležitost pro budoucí majitele.

Pokud Vás tento byt zaujal, neváhejte nám napsat nebo zavolat a rádi Vám vše ukážeme osobně. Prohlídky jsou možné po předchozí domluvě. Pro více informací o této nemovitosti nebo sjednání prohlídky nás prosím kontaktujte, rádi Vám pomůžeme.

Parametry bytu

Cena
3 125 000 Kč /za nemovitost Spočítat hypotéku
Aktualizováno
11. 2. 2026
Adresa
Javornická, Rychnov nad Kněžnou
Stavba
Smíšená
Stav objektu
Velmi dobrý
Patro
5. z 5
Vlastnictví
Osobní
Užitná plocha
33 m2
Třída energetické náročnosti
A - Mimořádně úsporná
Elektřina
400V
Odpad
Veřejná kanalizace
Komunikace
Asfaltová
Telekomunikace
Internet
Voda
Místní zdroj vody
Sklep

Kontaktovat makléře

Realitní kancelář

Rychnovská realitní s.r.o.

Javornická 1903, Rychnov nad Kněžnou

Chystáte se prodat nemovitost?
Pomůžeme Vám!

Máte zájem o tento byt?

Tímto, v souladu s nařízením Evropského parlamentu a Rady (EU) 2016/679, v platném znění, prohlašuji, že mi je alespoň 16 let a uděluji tak svůj souhlas se zpracováním zadaných údajů (jméno, telefon, e-mail, ip adresa) společnosti B3 Technology, s.r.o., IČ: 07330600, se sídlem Novostavby 126/23, 435 11 Lom (správce dat), za účelem předání dotazu z tohoto formuláře Vámi vybranému inzerentovi a zpětného kontaktování mé osoby. Osobní údaje bude správce zpracovávat manuálně i automaticky přímo prostřednictvím svých zaměstnanců. Informace předané tímto formulářem budou uloženy v databázi správce maximálně po dobu 10 let. Odvolání souhlasu s uložením a zpracováním poskytnutých dat lze e-mailem na info@vitio.cz. V případě podezření na neoprávněné použití Vámi poskytnutých údajů máte právo předat podnět k šetření Úřadu pro ochranu osobních údajů. Více informací
Chystáte se prodat nemovitost?
Pomůžeme Vám!

Inzerát si prohlédlo 0 lidí

Prodejce

Petr Nehera

Petr Nehera

Hlídací pes

Chcete dostávat emailem podobné nabídky prodeje bytů 1+kk v Rychnovu nad Kněžnou?

Podobné nemovitosti