Pronájem kanceláře, Brno - Husovice, 236 m2

Brno, Husovice

49 000 Kč /za měsíc Získejte výhodnou HYPOTÉKU
Exkluzivní partneři v Brně

Informace k nemovitosti

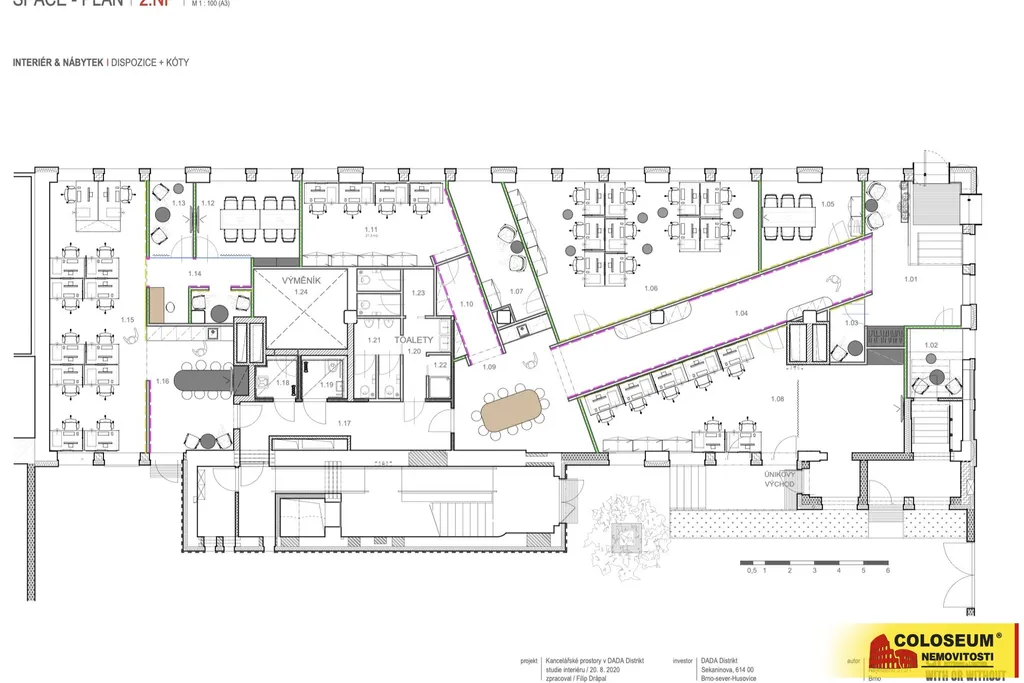
Hledáte prostory, které podpoří růst vaší firmy a budou dobře dostupné pro zaměstnance i klienty? Nabízíme k pronájmu krásné kancelářské prostory o celkové ploše 236 m² na ulici Sekaninova v městské části Brno-Husovice.

V blízkosti nově vzniká čtvrť v bývalém areálu Zbrojovky, což významně zvyšuje atraktivitu místa.

Prostory se nachází v zavedené administrativní budově v 1.patře a díky své velikosti a variabilní dispozici jsou ideální jako firemní sídlo, školicí centrum, projekční ateliér či IT centrum.

Díky stávajícímu vybavení můžete podnikání rozjet prakticky okamžitě.

Dispozice umožňuje kombinaci samostatných kanceláří o velikostech cca 49 m², 47,5 m² a 11,4 m², dále zasedacích místností o výměrách cca 6,3 m² a 13,5 m², call roomu o velikosti 3 m², prostorné kuchyňky o ploše cca 21,1 m² a vstupního zádveří se zázemím o velikosti přibližně 23 m². Součástí jsou také vlastní sociální zařízení a chodby o celkové ploše cca 62,3 m².

Dispoziční řešení umožňuje kombinaci samostatných kanceláří, otevřeného pracovního prostoru, zasedací místnosti i pohodlného zázemí pro zaměstnance. Prostory jsou světlé, flexibilně uspořadatelné a působí velmi reprezentativně.

Lokalita Husovice patří k velmi dobře dostupným částem Brna s rychlým napojením na centrum i hlavní tahy.

Kanceláře jsou k nastěhování od 1. dubna 2026, případně dle dohody. Měsíční nájemné činí 49 000 Kč, zálohy na služby se pohybují přibližně v rozmezí 13 000 až 15 000 Kč měsíčně bez DPH v závislosti na spotřebě. K nájmu je nutné připočítat provizi realitní kanceláře.

Kontaktujte nás pro více informací či sjednání prohlídky, rádi Vám prostory osobně představíme.

Parametry nemovitosti

Cena
49 000 Kč /za měsíc
Aktualizováno
10. 2. 2026
Adresa
Brno, Husovice
ID
5430L005
Stavba
Cihlová
Stav objektu
Velmi dobrý
Patro
1. z 4
Vybaveno
Ano
Typ objektu
Patrový
Druh objektu
Samostatný
Lokalita objektu
Centrum obce
Užitná plocha
236 m2
Zastavěná plocha
400 m2
Podlahová plocha
1600 m2
Třída energetické náročnosti
G - Mimořádně nehospodárná
Elektřina
230V
Voda
Vodovod
Výtah
Bezbarierový přístup
Parkování

Kontaktovat makléře

Máte zájem o tuto nemovistost?

Tímto, v souladu s nařízením Evropského parlamentu a Rady (EU) 2016/679, v platném znění, prohlašuji, že mi je alespoň 16 let a uděluji tak svůj souhlas se zpracováním zadaných údajů (jméno, telefon, e-mail, ip adresa) společnosti B3 Technology, s.r.o., IČ: 07330600, se sídlem Novostavby 126/23, 435 11 Lom (správce dat), za účelem předání dotazu z tohoto formuláře Vámi vybranému inzerentovi a zpětného kontaktování mé osoby. Osobní údaje bude správce zpracovávat manuálně i automaticky přímo prostřednictvím svých zaměstnanců. Informace předané tímto formulářem budou uloženy v databázi správce maximálně po dobu 10 let. Odvolání souhlasu s uložením a zpracováním poskytnutých dat lze e-mailem na info@vitio.cz. V případě podezření na neoprávněné použití Vámi poskytnutých údajů máte právo předat podnět k šetření Úřadu pro ochranu osobních údajů. Více informací
Chystáte se prodat nemovitost?
Pomůžeme Vám!

Inzerát si prohlédlo 0 lidí

Prodejce

Ivana Vašková

Ivana Vašková

Hlídací pes

Chcete dostávat emailem podobné nabídky pronájmu kanceláří v Brně?

Podobné nemovitosti