Prodej kanceláře, Praha - Modřany, Kolmanova, 119 m2

Kolmanova, Praha, Modřany

12 500 000 Kč /za nemovitost HYPOTÉKA od 55 867 Kč /za měsíc
Exkluzivní partneři v Praze 4

Stěhovací služby

Výkup a prodej starého nábytku

Informace k nemovitosti

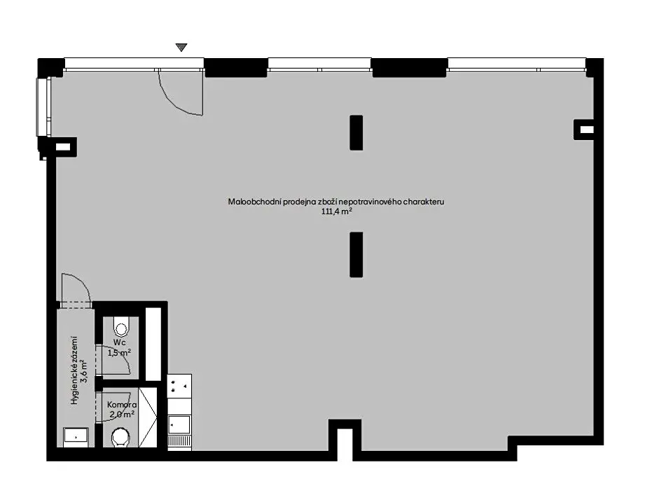
Nabízíme k prodeji moderní komerční prostor v právě dokončovaném projektu Modřanský cukrovar, jedné z atraktivních a rychle se rozvíjejících lokalit podél pražské Vltavy. Prostor je předáván v kolaudačním minimu, připravený k finálnímu doladění dle potřeb vašeho podnikání. Vhodný jako prodejna nepotravinového charakteru, showroom, klientské centrum či jiný typ obchodního provozu.

Modřany procházejí dynamickou transformací – lokalita se mění v moderní městskou čtvrť s vysokou poptávkou po službách a občanské vybavenosti. Nově budované rezidenční projekty přinášejí tisíce nových obyvatel, což vytváří stabilní zákaznickou základnu a silný potenciál pro dlouhodobě prosperující podnikání.

Investiční příležitost s růstovým potenciálem
Komerční prostor v Modřanském cukrovaru představuje bezpečné a perspektivní uložení kapitálu. Oblast prokazatelně roste v hodnotě díky:

Prostor se nachází v přízemí novostavby.
Nabízí: velké výkladce orientované do frekventované pěší zóny,
možnost dispozičního přizpůsobení podle účelu využití,
moderní technologie a energetickou efektivitu.

Parametry nemovitosti

Cena
12 500 000 Kč /za nemovitost Spočítat hypotéku
Aktualizováno
10. 2. 2026
Adresa
Kolmanova, Praha, Modřany
ID
MOCU 2 NC21109
Stavba
Skeletová
Stav objektu
Novostavba
Užitná plocha
119 m2
Třída energetické náročnosti
A - Mimořádně úsporná
Ukazatel energetické náročnosti
48 kWh/m2 za rok
Elektřina
120V
Plyn
Plynovod
Odpad
Veřejná kanalizace
Voda
Vodovod
Garáž
Parkování
Nízkoenergetický

Kontaktovat makléře

Máte zájem o tuto nemovistost?

Tímto, v souladu s nařízením Evropského parlamentu a Rady (EU) 2016/679, v platném znění, prohlašuji, že mi je alespoň 16 let a uděluji tak svůj souhlas se zpracováním zadaných údajů (jméno, telefon, e-mail, ip adresa) společnosti B3 Technology, s.r.o., IČ: 07330600, se sídlem Novostavby 126/23, 435 11 Lom (správce dat), za účelem předání dotazu z tohoto formuláře Vámi vybranému inzerentovi a zpětného kontaktování mé osoby. Osobní údaje bude správce zpracovávat manuálně i automaticky přímo prostřednictvím svých zaměstnanců. Informace předané tímto formulářem budou uloženy v databázi správce maximálně po dobu 10 let. Odvolání souhlasu s uložením a zpracováním poskytnutých dat lze e-mailem na info@vitio.cz. V případě podezření na neoprávněné použití Vámi poskytnutých údajů máte právo předat podnět k šetření Úřadu pro ochranu osobních údajů. Více informací
Chystáte se prodat nemovitost?
Pomůžeme Vám!

Inzerát si prohlédlo 0 lidí

Prodejce

Šárka Plechatá

Šárka Plechatá

Hlídací pes

Chcete dostávat emailem podobné nabídky prodeje kanceláří v Praze 4?

Podobné nemovitosti