Prodej bytu 5+kk, Písek, Kocínova, 158 m2

Kocínova, Písek

17 900 000 Kč /za nemovitost HYPOTÉKA od 80 002 Kč /za měsíc

(parkovací stání 336 000,-Kč)

Exkluzivní partneři v Písku

Výkup a prodej starého nábytku

Pojištění a finance

Informace k bytu

V exkluzivní lokalitě ulice Kocínova, v samotném centru města Písek, vzniká jedinečný developerský projekt Hejtmanský dvůr, který spojuje noblesu historické architektury s nejmodernějšími technologiemi současného bydlení. Dům prochází důkladnou a citlivou rekonstrukcí, při níž architekt kladl důraz na zachování původních historických prvků – včetně působivých kleneb ve vybraných bytech – a jejich propojení s nadčasovým designem.

Projekt nabízí komorní rezidenční bydlení s výtahem, promyšlenými a vzdušnými dispozicemi (2+kk – 4+kk) a dostatkem úložných prostor. Každý byt je navržen v luxusním standardu, s důrazem na kvalitu materiálů, funkčnost i estetiku. Samozřejmostí jsou velkorysé sklepy, praktické úložné prostory přímo v bytě a společná kolárna.

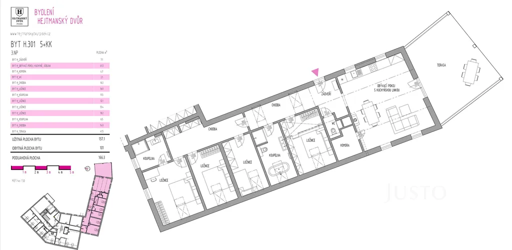
Byt číslo H 301, o dispozici 5+kk na 3. nadzemním podlaží.

Plochy bytu:
Podlahová plocha bytu (plocha bytu včetně vnitřních příček, dle vyhlášky č. 366/2013, §2 a §3) je 166,3 m².
Vnitřní plocha bytu (bez příček, bez balkonu a sklepu) je 158,4 m².
Sklep o výměře 8 m².
Terasa o výměře 38m²

Koupelna:
Kamenické rohy – bez lišt.
Velkoformátové dlaždice 60×120 cm.
Přesné spáry.
Top zařizovací předměty.
Promyšlené rozvržení a doplňky.
Vybrat si můžete ze dvou nadčasových barevných provedení.

Dveře a podlahy:
Podlahové vytápění, vinylová krytina.
Tři barevná provedení podlah na výběr.
Interiérové dveře s výškou 210 cm ve dvou barevných variantách.

Chytrá domácnost LOXONE:
Ovládání dveří skrze tablet v bytu.
Okamžitá kontrola spotřeby energií za byt.
Ovládání teploty v každé místnosti.
Ovládání předokenních žaluzií.
Ovládání – nabíjení elektromobilu na Wallboxu.

Součástí projektu jsou zastřešená parkovací stání v uzavřeném dvoře, který bude zabezpečen dálkově ovládanými vraty. Ke každému parkovacímu místu je připravena nabíječka pro elektromobil. O komfort a moderní způsob bydlení se stará inteligentní domácnost Loxone, připravenost na klimatizaci a efektivní technické řešení domu – vytápění plynovým kotlem a fotovoltaická elektrárna na střeše, která zajišťuje elektřinu pro společné prostory.

Hejtmanský dvůr představuje harmonii klidu jižních Čech a pohodlí městského života. Elegantní architektura, uzavřený dvůr se zelení a vysoký standard provedení vytvářejí ideální domov pro ty, kteří hledají výjimečné bydlení bez kompromisů – s veškerými službami, kulturou i přírodou na dosah.

Developer realizuje projekt výhradně z vlastních finančních prostředků, takže financování z Vaší strany je velmi jednoduché a bezpečné – na počátku hradíte pouze 10 % z kupní ceny, navíc uložených do advokátní úschovy, přičemž zbývající část kupní ceny se doplácí až po kolaudaci a podpisu kupní smlouvy, což Vám poskytuje dostatečný časový prostor k zajištění financování koupě.

Energetická náročnost budovy je aktuálně uváděna ve třídě D dle projektové dokumentace. Průkaz energetické náročnosti je v současné době přepracováván, neboť původní výpočet nezohledňuje inteligentní řízení domu a bytů systémem Loxone (samostatná regulace teploty v jednotlivých místnostech, meteostanice) ani fotovoltaickou elektrárnu o výkonu cca 10–17 kWp určenou pro denní dohřev teplé vody pro byty.

Parametry bytu

Cena
17 900 000 Kč /za nemovitost Spočítat hypotéku
Poznámka k ceně
parkovací stání 336 000,-Kč
Aktualizováno
17. 4. 2026
Adresa
Kocínova, Písek
ID
J12405
Stavba
Cihlová
Stav objektu
Ve výstavbě
Patro
3. z 4
Druh objektu
Rohový
Lokalita objektu
Centrum obce
Vlastnictví
Osobní
Užitná plocha
158 m2
Podlahová plocha
166 m2
Třída energetické náročnosti
C - Úsporná
Ukazatel energetické náročnosti
102 kWh/m2 za rok
Topení
Ústřední plynové
Topné těleso
Podlahové vytápění
Zdroj topení
Plynový kondenzační kotel
Zdroj teplé vody
Plynový kondenzační kotel
Sklep
Terasa
Výtah
Parkování

Kontaktovat makléře

Máte zájem o tento byt?

Tímto, v souladu s nařízením Evropského parlamentu a Rady (EU) 2016/679, v platném znění, prohlašuji, že mi je alespoň 16 let a uděluji tak svůj souhlas se zpracováním zadaných údajů (jméno, telefon, e-mail, ip adresa) společnosti B3 Technology, s.r.o., IČ: 07330600, se sídlem Novostavby 126/23, 435 11 Lom (správce dat), za účelem předání dotazu z tohoto formuláře Vámi vybranému inzerentovi a zpětného kontaktování mé osoby. Osobní údaje bude správce zpracovávat manuálně i automaticky přímo prostřednictvím svých zaměstnanců. Informace předané tímto formulářem budou uloženy v databázi správce maximálně po dobu 10 let. Odvolání souhlasu s uložením a zpracováním poskytnutých dat lze e-mailem na info@vitio.cz. V případě podezření na neoprávněné použití Vámi poskytnutých údajů máte právo předat podnět k šetření Úřadu pro ochranu osobních údajů. Více informací
Chystáte se prodat nemovitost?
Pomůžeme Vám!
Theleadway banner

Inzerát si prohlédlo 37 lidí

Prodejce

Bc. Ilona Vazačová

Bc. Ilona Vazačová

Hlídací pes

Chcete dostávat emailem podobné nabídky prodeje bytů 5+kk v Písku?

Podobné nemovitosti