Pronájem kanceláře, České Budějovice - České Budějovice 3, Skuherského, 33 m2

Skuherského, České Budějovice 3

8 000 Kč /za měsíc Získejte výhodnou HYPOTÉKU

(+ energie cca 2.000 Kč + kauce 10.000,-)

Exkluzivní partneři v Českých Budějovicích

Výkup a prodej starého nábytku

Informace k nemovitosti

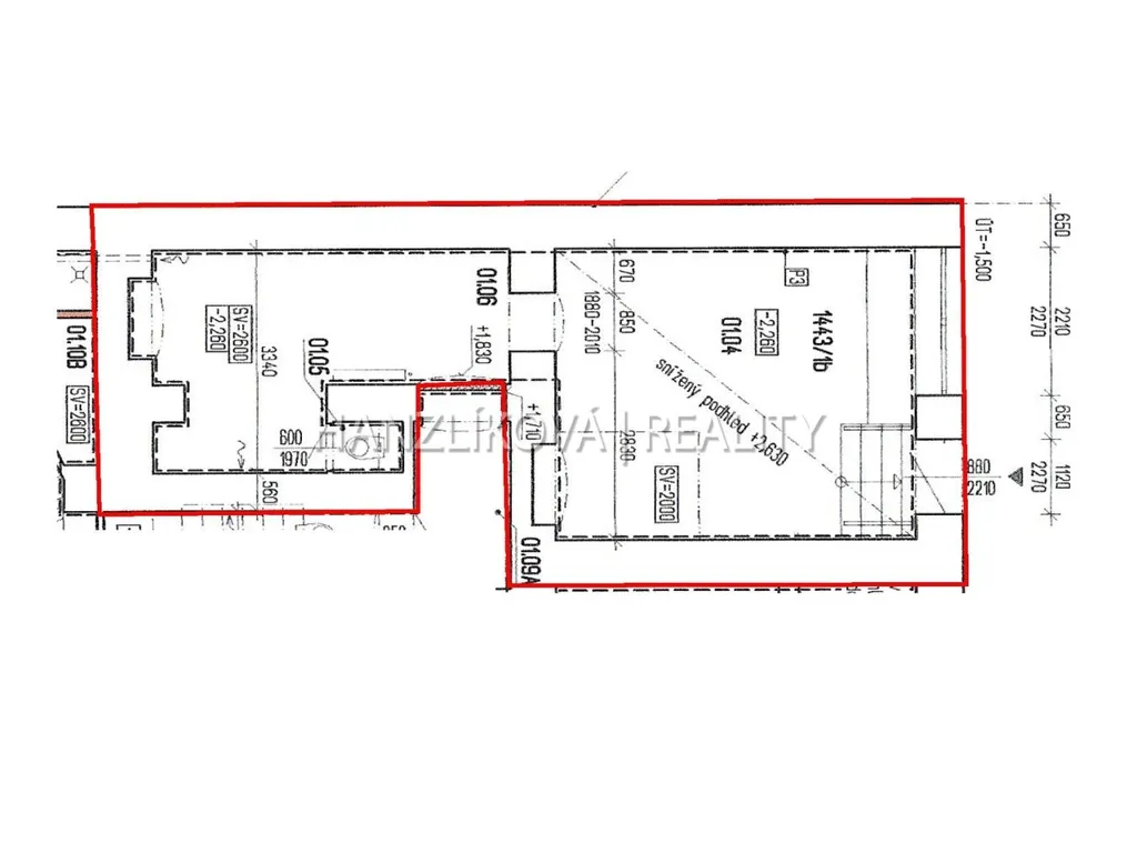
Nabízíme k pronájmu kompletně zrekonstruovaný nebytový prostor o celkové výměře cca 33 m2, který se nachází v 1. NP (snížené přízemí) činžovního domu v centru města, a to v ulici Skuherského. Prostor prošel kompletní rekonstrukcí a skládá se z: hlavní místnosti se dvěma okny do ulice (22,28 m2), zadní místnosti a sociálního zázemí včetně sprchového koutu. Prostory je možné využít k jako kancelář, menší prodejnu nebo pro kosmetické služby. K prostoru je možné poskytnout navíc skladový prostor v domě o výměře cca 18 m2. Prostory jsou k dispozici ihned.

Parametry nemovitosti

Cena
8 000 Kč /za měsíc
Poznámka k ceně
+ energie cca 2.000 Kč + kauce 10.000,-
Aktualizováno
5. 2. 2026
Adresa
Skuherského, České Budějovice 3
ID
0000003308
Stavba
Cihlová
Stav objektu
Po rekonstrukci
Typ objektu
Patrový
Lokalita objektu
Centrum obce
Užitná plocha
33 m2
Podlahová plocha
33 m2
Třída energetické náročnosti
G - Mimořádně nehospodárná
Elektřina
230V
Odpad
Veřejná kanalizace
Topení
Lokální elektrické
Komunikace
Asfaltová
Telekomunikace
Internet
Doprava
Vlak, Silnice, MHD, Autobus
Voda
Vodovod
Topné těleso
Přímotop
Zdroj topení
Přímotop
Zdroj teplé vody
Bojler - elektro
Výtah
Bezbarierový přístup

Kontaktovat makléře

Máte zájem o tuto nemovistost?

Tímto, v souladu s nařízením Evropského parlamentu a Rady (EU) 2016/679, v platném znění, prohlašuji, že mi je alespoň 16 let a uděluji tak svůj souhlas se zpracováním zadaných údajů (jméno, telefon, e-mail, ip adresa) společnosti B3 Technology, s.r.o., IČ: 07330600, se sídlem Novostavby 126/23, 435 11 Lom (správce dat), za účelem předání dotazu z tohoto formuláře Vámi vybranému inzerentovi a zpětného kontaktování mé osoby. Osobní údaje bude správce zpracovávat manuálně i automaticky přímo prostřednictvím svých zaměstnanců. Informace předané tímto formulářem budou uloženy v databázi správce maximálně po dobu 10 let. Odvolání souhlasu s uložením a zpracováním poskytnutých dat lze e-mailem na info@vitio.cz. V případě podezření na neoprávněné použití Vámi poskytnutých údajů máte právo předat podnět k šetření Úřadu pro ochranu osobních údajů. Více informací
Chystáte se prodat nemovitost?
Pomůžeme Vám!

Inzerát si prohlédlo 0 lidí

Prodejce

Lenka Michalová (Klimešová)

Lenka Michalová (Klimešová)

Hlídací pes

Chcete dostávat emailem podobné nabídky pronájmu kanceláří v Českých Budějovicích?

Podobné nemovitosti