Prodej bytu 4+1, Praha - Troja, Mazurská, 92 m2 (ID: 2575014)

Mazurská, Praha, Troja

10 350 000 Kč /za nemovitost HYPOTÉKA od 46 258 Kč /za měsíc
Exkluzivní partneři v Praze 8

Stěhovací služby

Výkup a prodej starého nábytku

Pojištění a finance

Informace k bytu

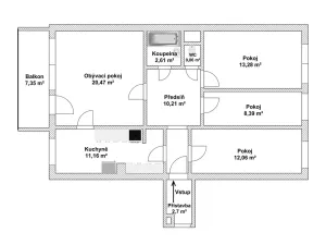
Nabízíme Vám k prodeji prostorný byt o dispozici 4+1 a celkové výměře 92 m2, který se nachází ve 2. patře v jednom z nejžádanějších panelových domů na sídlišti Bohnice vzhledem k jeho poloze. Společné prostory domu i okolí jsou svědomitě udržovány Společenstvím vlastníků.

Byt je určen k rekonstrukci dle vlastních potřeb, ale jinak je v dobrém stavu. Dům je po kompletní revitalizaci, disponuje prostorným výtahem.

Dispozice bytu zahrnuje čtyři samostatné pokoje, kuchyň, předsíň, koupelnu (zděné jádro), samostatné WC a prostornou atypickou zasklenou lodžii. K bytu náleží také sklepní kóje (2,8 m2). Byt je orientován na dvě světové strany – jih a sever, díky čemuž je zajištěn dostatek denního světla a příjemné klima po celý den. Vytápění zajišťuje centrální dálkový systém. Výhodou jsou nízké měsíční náklady na bydlení.

Lokalita Troja je velmi vyhledávaná díky své klidné atmosféře, množství zeleně a výborné dostupnosti MHD do centra města.
V blízkosti domu (cca 60 m) jsou dvě zastávky autobusu, odkud se dostanete na metro C Kobylisy přibližně za 7 minut. Do centra města dojedete autem zhruba za 20 minut, městskou hromadnou dopravou za 35 minut.

Veškerá občanská vybavenost – v docházkové vzdálenosti najdete mateřskou i základní školu, Gymnázium Ústavní, knihovnu, polikliniku, poštu, restaurace, OC Krakov, supermarkety Billa, Lidl, Penny i Albert.

Okolí nabízí výjimečnou kombinaci zeleně a města: Botanická zahrada (můžete ji využívat jako park, sousedské permanentky za 100 Kč ročně), cyklostezky kolem Vltavy, ZOO, Aquacentrum Šutka.

Byt je ideální volbou pro ty, kteří hledají klidné bydlení s veškerou občanskou vybaveností, výbornou dostupností do centra města, a současně chtějí mít přírodu a sportovní vyžití na dosah.

V případě zájmu o prohlídku či více informací mne neváhejte kontaktovat.

Parametry bytu

Cena
10 350 000 Kč /za nemovitost Spočítat hypotéku
Aktualizováno
5. 2. 2026
Adresa
Mazurská, Praha, Troja
ID
MAT 432
Stavba
Panelová
Stav objektu
Velmi dobrý
Patro
3.
Vlastnictví
Osobní
Užitná plocha
92 m2
Sklep
Lodžie

Kontaktovat makléře

Máte zájem o tento byt?

Tímto, v souladu s nařízením Evropského parlamentu a Rady (EU) 2016/679, v platném znění, prohlašuji, že mi je alespoň 16 let a uděluji tak svůj souhlas se zpracováním zadaných údajů (jméno, telefon, e-mail, ip adresa) společnosti B3 Technology, s.r.o., IČ: 07330600, se sídlem Novostavby 126/23, 435 11 Lom (správce dat), za účelem předání dotazu z tohoto formuláře Vámi vybranému inzerentovi a zpětného kontaktování mé osoby. Osobní údaje bude správce zpracovávat manuálně i automaticky přímo prostřednictvím svých zaměstnanců. Informace předané tímto formulářem budou uloženy v databázi správce maximálně po dobu 10 let. Odvolání souhlasu s uložením a zpracováním poskytnutých dat lze e-mailem na info@vitio.cz. V případě podezření na neoprávněné použití Vámi poskytnutých údajů máte právo předat podnět k šetření Úřadu pro ochranu osobních údajů. Více informací
Chystáte se prodat nemovitost?
Pomůžeme Vám!
Theleadway banner

Inzerát si prohlédlo 7 lidí

Prodejce

Andrea Matoušková

Andrea Matoušková

Hlídací pes

Chcete dostávat emailem podobné nabídky prodeje bytů 4+1 v Praze 8?

Podobné nemovitosti