Soccer reality

Prodej komerčního pozemku, Mochov, U Mrazíren, 6072 m2 (ID: 2572017)

U Mrazíren, Mochov

33 001 320 Kč HYPOTÉKA od 147 496 Kč /za měsíc

(včetně provize RK)

Exkluzivní partneři v Mochovu

Informace k pozemku

Prodej komerčního pozemku 6072 m² Mochov

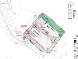
V zastoupení majitele nabízíme k prodeji komerční pozemek, který se nachází v obci Mochov, Praha-východ. Tento pozemek o rozloze 6072 m² je strategicky umístěn v blízkosti dálnice D11 Praha – Hradec Králové a představuje ideální příležitost pro investory a podnikatele, kteří hledají strategickou lokalitu pro rozvoj svých projektů. Pozemek o celkové rozloze 6072 m² nabízíme včetně projektové dokumentace na stavbu 2 skladových hal včetně administrativy o celkové užitné ploše 3200m². Objekty jsou navrženy podle nejnovější standardů, je plánována dostatečná energetická kapacita a kvalitní internetové připojení. Stavba má dokončené stavební a územní řízení včetně platného stavebního povolení. Prostory je možné variabilně upravit, případně propojit vnitřními vraty.

Dle územního plánu je pozemek zařazen do kategorie VL-Plochy výroby a skladování, což umožňuje široké spektrum využití.

Hlavní využití
 pozemky staveb a zařízení pro výrobu a služby
 stavby a pozemky pro skladování
Přípustné využití
 doplňkové obchodní, kancelářské a správní provozy a objekty
 doprovodná zařízení občanského vybavení (stravovací, sociální, zdravotní)
 plochy zeleně
 nezbytná související dopravní a technická vybavenost
 samostatné stavby a zařízení technické infrastruktury
 podlažnost: max. 15 m nad okolním terénem
 výška staveb max. 12 m nad okolním (původním, na plochu stavby navazujícím) terénem
 koeficient zastavění pozemku max. 40%
 koeficient zeleně min. 30 %
 parkování vozidel bude zajištěno na vlastním pozemku
 okrajové části plochy budou osázeny stromovou zelení plnící izolační a estetickou funkci a funkci přechodovou k plochám okolní krajiny, přičemž rozsah bude specifikován v územním řízení

Pozemek se nachází v obci známé pro svou dostupnost a rozvojovou politiku, což jej činí atraktivním pro různé komerční aktivity. Blízkost hlavních dopravních tepen a snadná dostupnost města Prahy zvyšují jeho strategický význam, který může významně přispět k rozvoji Vašeho podnikání a využít plný potenciál komerčních prostor v jedné z nejatraktivnějších, dynamicky se rozvíjející oblastí Prahy-východ.

Pozemek je ihned k dispozici, není zatížen žádnými právními omezeními a je přístupný přes obecní zpevněnou komunikaci, čímž máte jedinečnou příležitost investovat do nemovitosti, která nabízí potenciál pro další rozvoj a využití podle Vašich potřeb. Díky svému umístění a výměře je tento pozemek vhodný pro různé typy podnikatelských aktivit, což z něj činí mimořádně lákavou nabídku.

Pro více informací kontaktujte RK. Díky exkluzivním podmínkám u finančních institucí a kvalitnímu klientskému servisu se můžete spolehnout, že Vám doporučíme nejlepší financování Vaší nemovitosti a pomůžeme vyřídit veškeré náležitosti. Nenechte si ujít tuto jedinečnou příležitost a přijďte se přesvědčit o atraktivitě nabízené nemovitosti!!

Parametry pozemku

Cena
33 001 320 Kč Spočítat hypotéku
Poznámka k ceně
včetně provize RK
Aktualizováno
2. 2. 2026
Adresa
U Mrazíren, Mochov
ID
0102025
Plocha pozemku
6072 m2

Kontaktovat makléře

Realitní kancelář

Logo BENEST

BENEST

Tyršova 2070, Benešov

Chystáte se prodat nemovitost?
Pomůžeme Vám!

Máte zájem o tento pozemek?

Tímto, v souladu s nařízením Evropského parlamentu a Rady (EU) 2016/679, v platném znění, prohlašuji, že mi je alespoň 16 let a uděluji tak svůj souhlas se zpracováním zadaných údajů (jméno, telefon, e-mail, ip adresa) společnosti B3 Technology, s.r.o., IČ: 07330600, se sídlem Novostavby 126/23, 435 11 Lom (správce dat), za účelem předání dotazu z tohoto formuláře Vámi vybranému inzerentovi a zpětného kontaktování mé osoby. Osobní údaje bude správce zpracovávat manuálně i automaticky přímo prostřednictvím svých zaměstnanců. Informace předané tímto formulářem budou uloženy v databázi správce maximálně po dobu 10 let. Odvolání souhlasu s uložením a zpracováním poskytnutých dat lze e-mailem na info@vitio.cz. V případě podezření na neoprávněné použití Vámi poskytnutých údajů máte právo předat podnět k šetření Úřadu pro ochranu osobních údajů. Více informací
Chystáte se prodat nemovitost?
Pomůžeme Vám!

Inzerát si prohlédlo 0 lidí

Prodejce

Benest s. r. o.

Benest s. r. o.

Hlídací pes

Chcete dostávat emailem podobné nabídky prodeje komerčních pozemků v Mochovu?

Podobné nemovitosti