Prodej bytu 2+kk, Praha - Strašnice, Královická, 48 m2

Královická, Praha 10

7 190 000 Kč /za nemovitost HYPOTÉKA od 32 135 Kč /za měsíc
Exkluzivní partneři v Praze 10

Stěhovací služby

Výkup a prodej starého nábytku

Informace k bytu

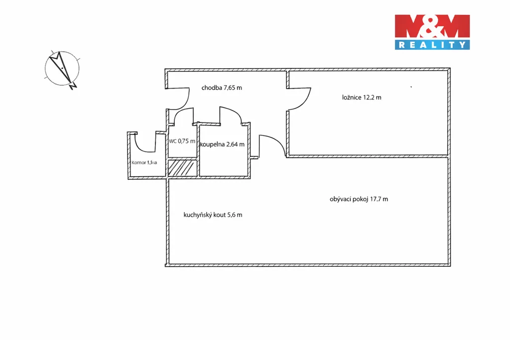
Prodej bytu 2+kk, 48 m², Praha 10 - Strašnice, ul.Královická

Nabízíme k prodeji prostorný, světlý byt 2+kk, 48 m², v ulici Královická, Strašnice. Byt je před rekonstrukcí. Skládá se ze vstupní chodby, ze které se vchází do dvou neprůchozích pokojů - ložnice a do obývacího pokoje s odděleným kuchyňským koutem vybaveným starší kuchyňskou linkou. Dále se z chodby dostanete do koupelny s vanou, umyvadlem a přípravou pro pračku a na samostatné WC.
Jádro je zděné.
Jedná se o byt s investičním potenciálem, případně je vhodný jako startovací bydlení pro mladou rodinu.
Byt se nachází v nadzemním podlaží panelového domu. K bytu náleží komora na chodbě v těsné blízkosti vstupních dveří. Ložnice i obývací pokoj jsou orientované na severozápad.
Dům prošel revitalizací - zateplení, plastová okna, opravené společné prostory atd.
Vzhledem k blízkosti stanice metra Skalka, vlakového nádraží a několika stanic autobusů MHD je výborná i dopravní dostupnost.

Parametry bytu

Cena
7 190 000 Kč /za nemovitost Spočítat hypotéku
Aktualizováno
28. 1. 2026
Adresa
Královická, Praha 10
ID
931369
Stavba
Panelová
Stav objektu
Před rekonstrukcí
Vybaveno
Částečně
Lokalita objektu
Klidná část obce
Vlastnictví
Osobní
Užitná plocha
48 m2

Kontaktovat makléře

Realitní kancelář

Logo M&M reality

M&M reality

ulice Krakovská 583/9, Praha

Chystáte se prodat nemovitost?
Pomůžeme Vám!

Máte zájem o tento byt?

Tímto, v souladu s nařízením Evropského parlamentu a Rady (EU) 2016/679, v platném znění, prohlašuji, že mi je alespoň 16 let a uděluji tak svůj souhlas se zpracováním zadaných údajů (jméno, telefon, e-mail, ip adresa) společnosti B3 Technology, s.r.o., IČ: 07330600, se sídlem Novostavby 126/23, 435 11 Lom (správce dat), za účelem předání dotazu z tohoto formuláře Vámi vybranému inzerentovi a zpětného kontaktování mé osoby. Osobní údaje bude správce zpracovávat manuálně i automaticky přímo prostřednictvím svých zaměstnanců. Informace předané tímto formulářem budou uloženy v databázi správce maximálně po dobu 10 let. Odvolání souhlasu s uložením a zpracováním poskytnutých dat lze e-mailem na info@vitio.cz. V případě podezření na neoprávněné použití Vámi poskytnutých údajů máte právo předat podnět k šetření Úřadu pro ochranu osobních údajů. Více informací
Chystáte se prodat nemovitost?
Pomůžeme Vám!

Inzerát si prohlédlo 1 lidí

Prodejce

Radek Vlach

Radek Vlach

Hlídací pes

Chcete dostávat emailem podobné nabídky prodeje bytů 2+kk v Praze 10?

Podobné nemovitosti