Prodej bytu 2+1, Hradec Králové - Nový Hradec Králové, Durychova, 83 m2

Durychova, Nový Hradec Králové

6 299 000 Kč /za nemovitost HYPOTÉKA od 28 153 Kč /za měsíc
Exkluzivní partneři v Hradci Králové

Informace k bytu

Prostorný byt 2+1 se dvěma lodžiemi po revitalizaci domu – Hradec Králové, Durychova

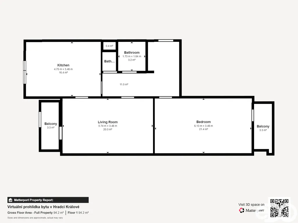
Nabízíme ke koupi světlý a vzdušný byt 2+1 v žádané lokalitě Hradce Králové, na adrese Durychova 1387/14. Byt se nachází v 7. patře z 11 a nabízí hezké výhledy do okolí města.

Byt zaujme velkorysou dispozicí, prostornými místnostmi a vyššími stropy (267 cm), které jsou nadstandardem oproti běžným panelovým domům. Oba pokoje mají vlastní lodžii, přičemž lodžie u obývacího pokoje byla v rámci revitalizace domu zvětšena a zasklena.

Bytové jádro je zděné, rekonstrukce proběhla přibližně v roce 2010. Byt je v udržovaném a funkčním stavu.

Dům prošel kompletní revitalizací v roce 2025 – zateplení, nová fasáda, vchodový portál, výtahy a úpravy lodžií výrazně zvyšují komfort bydlení i hodnotu nemovitosti.

Investiční příležitost i bydlení do budoucna
V bytě aktuálně bydlí spolehliví nájemníci s nájemní smlouvou do 30. 4. 2026, kteří mají zájem pokračovat v nájmu. Byt je tak vhodný jako investiční nemovitost, případně k vlastnímu bydlení.
K dispozici od 1. 5. 2026 nebo dle dohody.

Lokalita a občanská vybavenost:
- obchod s potravinami v docházkové vzdálenosti
- zastávka MHD
- zeleň a místa pro relax a procházky
- příjemným bonusem je kadeřnictví přímo ve vedlejším vchodě domu

Byt představuje ideální kombinaci prostoru, lokality a flexibility využití.
Doporučujeme osobní prohlídku.

Parametry bytu

Cena
6 299 000 Kč /za nemovitost Spočítat hypotéku
Aktualizováno
27. 1. 2026
Adresa
Durychova, Nový Hradec Králové
ID
420260013
Stavba
Panelová
Stav objektu
Dobrý
Patro
7. z 11
Vybaveno
Částečně
Lokalita objektu
Sídliště
Vlastnictví
Osobní
Užitná plocha
83 m2
Zastavěná plocha
722 m2
Třída energetické náročnosti
B - Velmi úsporná
Elektřina
230V
Plyn
Plynovod
Odpad
Veřejná kanalizace
Komunikace
Asfaltová
Telekomunikace
Internet, Kabelová televize, Kabelové rozvody
Doprava
Vlak, Dálnice, Silnice, MHD, Autobus
Voda
Vodovod
Sklep
Lodžie
Výtah

Kontaktovat makléře

Realitní kancelář

Logo eDO reality

eDO reality

Na Pankráci 322/26, Praha

Chystáte se prodat nemovitost?
Pomůžeme Vám!

Máte zájem o tento byt?

Tímto, v souladu s nařízením Evropského parlamentu a Rady (EU) 2016/679, v platném znění, prohlašuji, že mi je alespoň 16 let a uděluji tak svůj souhlas se zpracováním zadaných údajů (jméno, telefon, e-mail, ip adresa) společnosti B3 Technology, s.r.o., IČ: 07330600, se sídlem Novostavby 126/23, 435 11 Lom (správce dat), za účelem předání dotazu z tohoto formuláře Vámi vybranému inzerentovi a zpětného kontaktování mé osoby. Osobní údaje bude správce zpracovávat manuálně i automaticky přímo prostřednictvím svých zaměstnanců. Informace předané tímto formulářem budou uloženy v databázi správce maximálně po dobu 10 let. Odvolání souhlasu s uložením a zpracováním poskytnutých dat lze e-mailem na info@vitio.cz. V případě podezření na neoprávněné použití Vámi poskytnutých údajů máte právo předat podnět k šetření Úřadu pro ochranu osobních údajů. Více informací
Chystáte se prodat nemovitost?
Pomůžeme Vám!

Inzerát si prohlédlo 2 lidí

Prodejce

Bc. Jan Macek

Bc. Jan Macek

Hlídací pes

Chcete dostávat emailem podobné nabídky prodeje bytů 2+1 v Hradci Králové?

Top nabídky

Podobné nemovitosti