Prodej bytu 3+1, Ústí nad Orlicí - Hylváty, Třebovská, 77 m2

Třebovská, Ústí nad Orlicí, Hylváty

4 190 000 Kč /za nemovitost HYPOTÉKA od 18 727 Kč /za měsíc

(cena včetně provize, právního servisu a advokátní úschovy)

Exkluzivní partneři v Ústí nad Orlicí

Informace k bytu

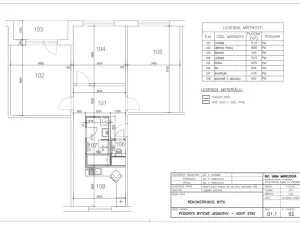
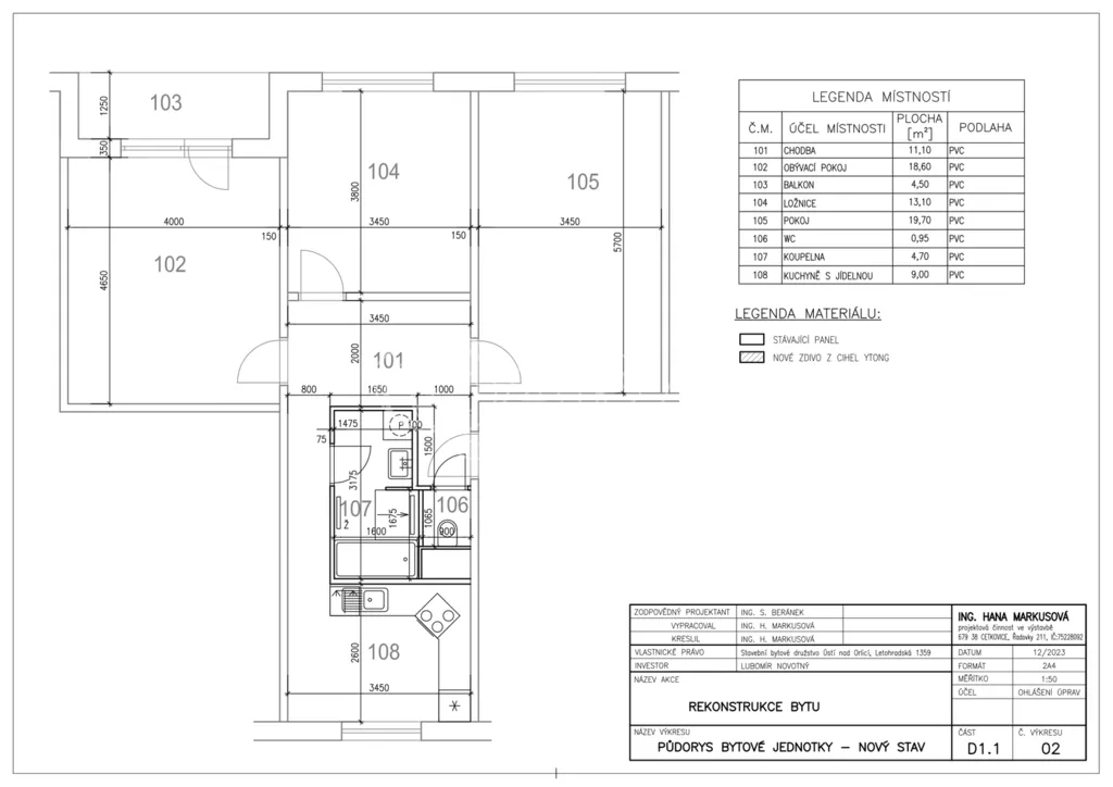
Nabízíme k prodeji prostorný družstevní byt 3+1 o podlahové ploše 77,15 m2 plus lodžie 4,5 m2 v obci Ústí nad Orlicí, ulice Třebovská. Byt se nachází ve zvýšeném přízemí panelového domu s výtahem. Bytová jednotka prošla vkusnou moderní rekonstrukcí, má plastová okna, novou kuchyni, zděné jádro, jehož nápaditou přestavbou vznikl v koupelně prostor pro vanu i sprchový kout. WC je samostatné. Z předsíně se velice prakticky vstupuje samostatně do všech pokojů. Kuchyně je situována východním směrem, ostatní pokoje na západ. Z obývacího pokoje je možno vstupovat na lodžii, druhý pokoj slouží jako ložnice a třetí jako dětský pokoj. Vytápění dálkové, ohřev vody také. Veškeré rozvody byly v rámci přestavby vyměněny za nové. K bytu patří sklepní kóje v suterénu budovy. Umístění v klidné lokalitě mimo rušnou část města. Převod do OV je možný.

Parametry bytu

Cena
4 190 000 Kč /za nemovitost Spočítat hypotéku
Poznámka k ceně
cena včetně provize, právního servisu a advokátní úschovy
Aktualizováno
25. 1. 2026
Adresa
Třebovská, Ústí nad Orlicí, Hylváty
ID
18579
Stavba
Panelová
Stav objektu
Po rekonstrukci
Patro
1. z 6
Vlastnictví
Družstevní
Užitná plocha
77 m2
Zastavěná plocha
428 m2
Podlahová plocha
81 m2
Třída energetické náročnosti
G - Mimořádně nehospodárná
Elektřina
230V
Odpad
Veřejná kanalizace
Doprava
Silnice
Voda
Vodovod
Sklep
Lodžie
Výtah
Převod do OV

Kontaktovat makléře

Realitní kancelář

Logo QARA, s.r.o.

QARA, s.r.o.

Šafaříkova 201/17, Praha

Chystáte se prodat nemovitost?
Pomůžeme Vám!

Máte zájem o tento byt?

Tímto, v souladu s nařízením Evropského parlamentu a Rady (EU) 2016/679, v platném znění, prohlašuji, že mi je alespoň 16 let a uděluji tak svůj souhlas se zpracováním zadaných údajů (jméno, telefon, e-mail, ip adresa) společnosti B3 Technology, s.r.o., IČ: 07330600, se sídlem Novostavby 126/23, 435 11 Lom (správce dat), za účelem předání dotazu z tohoto formuláře Vámi vybranému inzerentovi a zpětného kontaktování mé osoby. Osobní údaje bude správce zpracovávat manuálně i automaticky přímo prostřednictvím svých zaměstnanců. Informace předané tímto formulářem budou uloženy v databázi správce maximálně po dobu 10 let. Odvolání souhlasu s uložením a zpracováním poskytnutých dat lze e-mailem na info@vitio.cz. V případě podezření na neoprávněné použití Vámi poskytnutých údajů máte právo předat podnět k šetření Úřadu pro ochranu osobních údajů. Více informací
Chystáte se prodat nemovitost?
Pomůžeme Vám!

Inzerát si prohlédlo 0 lidí

Prodejce

Martin Vraspír

Martin Vraspír

Hlídací pes

Chcete dostávat emailem podobné nabídky prodeje bytů 3+1 v Ústí nad Orlicí?

Podobné nemovitosti