Remax Monarcha

Prodej bytu 1+kk, Olomouc, Leopolda Pospíšila, 32 m2 (ID: 2563109)

Leopolda Pospíšila, Olomouc, Nová Ulice

4 570 000 Kč /za nemovitost HYPOTÉKA od 20 425 Kč /za měsíc
Exkluzivní partneři v Olomouci

Informace k bytu

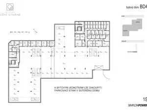
Představujeme vám nově vznikající jedinečný projekt bytových domů „Rezidence Jižní Stráně“ v lukrativní a žádané lokalitě na ulici Leopolda Pospíšila v Olomouci.

Ve třetí etapě vznikne bytový dům BD4 o dvou blocích A a B propojených suterénním parkovištěm s celkem 39 byty. V rámci této etapy nabízíme k prodeji celkem deset bytových jednotek o dispozici 1+kk s užitnou plochou od 29 m² do 39 m² v cenovém rozpětí od
4 095 000 Kč do 4 991 000 Kč.

Do této kategorie patří i prezentovaný byt s označením BD4_B01 o dispozici 1+kk s celkovou plochou 93,16 m² (byt 32,08 m², terasa 15,35 m², zahrada 41,72 m² a sklep 4,02 m²).

Cena bytové jednotky zahrnuje vysoký volitelný standard (kvalitní vinylové podlahy, zařizovací prvky koupelen Villeroy & Boch, Grohe, velkoformátové obklady a dlažba, plné laminátové CPL dveře a další).

Komfort bydlení výrazně zvyšují prvky jako teplovodní podlahové vytápění, rekuperace a venkovní elektrické žaluzie, které jsou součástí standardu.

Jednotka B01 sestává z obývacího pokoje s kuchyňským koutem, koupelny s WC, předsíně a šatny. Součástí je i sklepní box v suterénu budovy. K bytu je možné dokoupit také parkovací stání v suterénu domu.

V průběhu přípravy projektu jsme kladli důraz na optimální dispoziční řešení, které splňuje požadavky náročného klienta, kdy výjimečnost projektu umocňuje jeho umístění ve svažitém terénu.

Nabízíme vám možnost vlastnit nemovitost v jedné z nejlepších lokalit Olomouce s plnou občanskou vybaveností a výbornou dopravní dostupností do všech částí města.

V případě zájmu kontaktujte manažera projektu.

Více informací o projektu a prodeji naleznete na našich webových stránkách rezidence Jižní Stráně.

Parametry bytu

Cena
4 570 000 Kč /za nemovitost Spočítat hypotéku
Aktualizováno
23. 1. 2026
Adresa
Leopolda Pospíšila, Olomouc, Nová Ulice
ID
PD-JS-BD4-1kk_B01
Stavba
Cihlová
Stav objektu
Novostavba
Patro
1.
Vlastnictví
Osobní
Užitná plocha
32 m2
Podlahová plocha
93 m2
Plocha zahrady
41 m2
Třída energetické náročnosti
B - Velmi úsporná
Sklep
Terasa
Výtah

Kontaktovat makléře

Realitní kancelář

Simplon Power s.r.o.

tř. Svornosti 1177/57, Olomouc

Chystáte se prodat nemovitost?
Pomůžeme Vám!

Máte zájem o tento byt?

Tímto, v souladu s nařízením Evropského parlamentu a Rady (EU) 2016/679, v platném znění, prohlašuji, že mi je alespoň 16 let a uděluji tak svůj souhlas se zpracováním zadaných údajů (jméno, telefon, e-mail, ip adresa) společnosti B3 Technology, s.r.o., IČ: 07330600, se sídlem Novostavby 126/23, 435 11 Lom (správce dat), za účelem předání dotazu z tohoto formuláře Vámi vybranému inzerentovi a zpětného kontaktování mé osoby. Osobní údaje bude správce zpracovávat manuálně i automaticky přímo prostřednictvím svých zaměstnanců. Informace předané tímto formulářem budou uloženy v databázi správce maximálně po dobu 10 let. Odvolání souhlasu s uložením a zpracováním poskytnutých dat lze e-mailem na info@vitio.cz. V případě podezření na neoprávněné použití Vámi poskytnutých údajů máte právo předat podnět k šetření Úřadu pro ochranu osobních údajů. Více informací
Chystáte se prodat nemovitost?
Pomůžeme Vám!

Inzerát si prohlédlo 4 lidí

Prodejce

Martin Listopad

Martin Listopad

Hlídací pes

Chcete dostávat emailem podobné nabídky prodeje bytů 1+kk v Olomouci?

Podobné nemovitosti