Prodej bytu 3+1, Plzeň - Bolevec, Toužimská, 72 m2 (ID: 2562261)

Toužimská, Plzeň, Bolevec

Exkluzivní partneři v Plzni

Podlahy

Stěhovací služby

Informace k bytu

Prodej bytu 3+1, 68 m², Toužimská, Plzeň

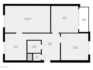
Nabízíme k prodeji citlivě zrekonstruovaný, světlý byt o podlahové ploše 68 m², dispozičně řešený jako 3+1 s lodžií. Bytová jednotka se nachází ve zvýšeném přízemí panelového domu v Toužimské ulici v plzeňské části Košutka.
Byt prošel kompletní rekonstrukcí, která zahrnovala zejména koupelnu, toaletu a kuchyni včetně nových rozvodů, dále pak nové podlahy a interiérové dveře v celém bytě. Orientace bytu je na severní a jižní stranu; na jih je situována také lodžie o velikosti 4,4 m². V suterénu domu je k dispozici vlastní sklepní kóje o velikosti 2,9 m².
Jednotka je vytápěna dálkově, stejně tak i ohřev teplé vody je zajištěn dálkově. Bezplatné parkování je možné přímo na ulici před domem nebo na přilehlých parkovištích.
O dům je dlouhodobě dobře pečováno, nachází se v energetické třídě C a měsíční platba do fondu oprav činí 2 032 Kč. Jednotka se prodává bez vybavení.
Přímo za domem se nachází park s kavárnou a dětským hřištěm. V blízkém okolí je veškerá občanská vybavenost. Výborné dopravní spojení s centrem zajišťuje MHD, přičemž zastávka je vzdálena jen pár kroků od domu.
S vyřízením případného financování vám rádi zdarma pomůžeme.

Parametry bytu

Cena
5 490 000 Kč Spočítat hypotéku
Aktualizováno
22. 1. 2026
Adresa
Toužimská, Plzeň, Bolevec
ID
971619
Stavba
Panelová
Vlastnictví
Osobní
Užitná plocha
72 m2
Třída energetické náročnosti
C - Úsporná
Ukazatel energetické náročnosti
73 kWh/m2 za rok

Kontaktovat makléře

Máte zájem o tento byt?

Tímto, v souladu s nařízením Evropského parlamentu a Rady (EU) 2016/679, v platném znění, prohlašuji, že mi je alespoň 16 let a uděluji tak svůj souhlas se zpracováním zadaných údajů (jméno, telefon, e-mail, ip adresa) společnosti B3 Technology, s.r.o., IČ: 07330600, se sídlem Novostavby 126/23, 435 11 Lom (správce dat), za účelem předání dotazu z tohoto formuláře Vámi vybranému inzerentovi a zpětného kontaktování mé osoby. Osobní údaje bude správce zpracovávat manuálně i automaticky přímo prostřednictvím svých zaměstnanců. Informace předané tímto formulářem budou uloženy v databázi správce maximálně po dobu 10 let. Odvolání souhlasu s uložením a zpracováním poskytnutých dat lze e-mailem na info@vitio.cz. V případě podezření na neoprávněné použití Vámi poskytnutých údajů máte právo předat podnět k šetření Úřadu pro ochranu osobních údajů. Více informací
Chystáte se prodat nemovitost?
Pomůžeme Vám!

Inzerát si prohlédlo 12 lidí

Prodejce

Bc. Jan Měsíček

Bc. Jan Měsíček

Hlídací pes

Chcete dostávat emailem podobné nabídky prodeje bytů 3+1 v Plzni?

Top nabídky

Podobné nemovitosti