Prodej bytu 4+1, Ostrava - Poruba, náměstí Antonie Bejdové, 85 m2 (ID: 2560529)

náměstí Antonie Bejdové, Ostrava, Poruba

5 390 000 Kč /za nemovitost HYPOTÉKA od 24 090 Kč /za měsíc
Exkluzivní partneři v Ostravě

Informace k bytu

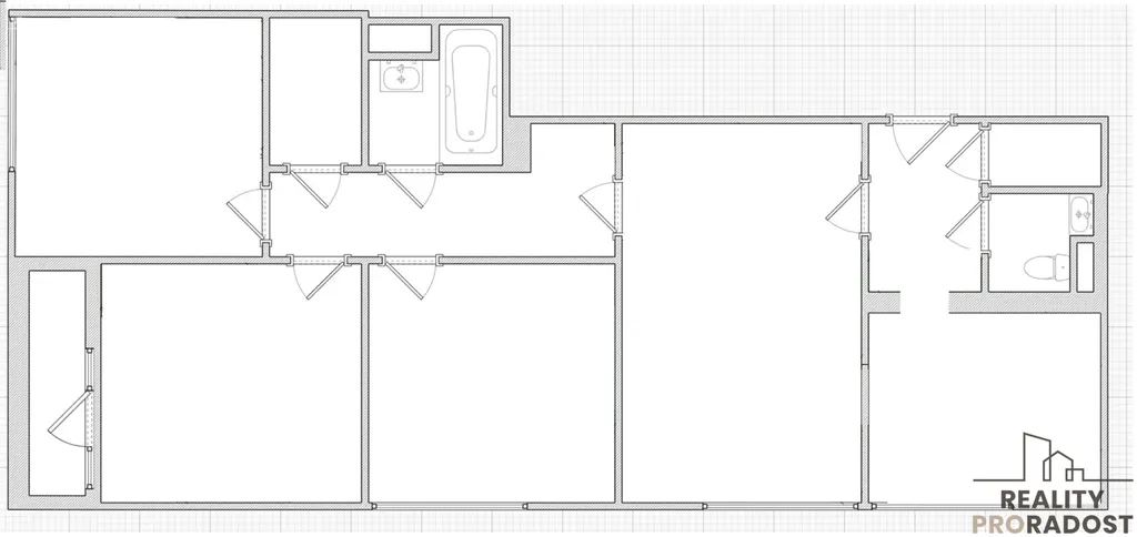
Jednotka v družstevním vlastnictví o dispozici 4+1 se zasklenou lodžií, která se nachází v klidné části Poruby na ulici nám. Antonie Bejdové v Ostravě. Jednotka se nachází v 5. patře domu po kompletní revitalizaci - 2 výtahy, které stojí přímo na patře, plastová okna, zateplení, zvonky, suché sklepy... V domě jsou k dispozici společné prostory domu a to kočárkárna a kolárna.

Celková plocha jednotky činí 90 m2 včetně lodžie o velikosti 3 m2 a sklepní kóje o velikosti 1,5 m2.

Interiér je tvořen kuchyní, obývacím pokojem, 3 samostatnými pokoji z nichž má jeden výstup na zasklenou lodžii, samostatnou toaletou, koupelnou, spíží, šatnou a prostornou chodbou. K bytu náleží sklepní kóje. Pokoje jsou orientovány na 2 světové strany.

Kuchyňská linka do L kombinuje dekory lesklé bílé a pracovní desky z masivu. Součástí linky jsou i vestavěné spotřebiče - myčka, plynová varná deska, odsavač par, trouba, mikrovlnná trouba a granitový dřez s baterií. V kuchyni je dostatek prostoru na umístění jídelního stolu. Kuchyně je orientována do vnitrobloku do zeleně.

Obývací pokoj je také orientován do zeleně, stejně jako jeden ze tří samostatných pokojů. Zbylé dva pokoje nabízí výhled na Beskydy.

V koupelně se nachází prostorná vana, umyvadlo, úložný prostor.

Výhodou bytu je jeho variabilita a množství úložného prostoru. Úložný prostor je hned u vstupních dveří v podobě šatny, tak také u koupelny jako samostatná spíž a dále množství úložného prostoru na chodbě.

Technický stav bytu - byt procházel před cca 7-10 lety částečnou rekonstrukcí - nová elektřina v kuchyni a předsíni, nová kuchyňská linka včetně spotřebičů, laminátové podlahy, interiérové dveře včetně prosklených dveří mezi předsíní a obývacím pokojem, ... Nábytek není součástí prodeje.

Nízké měsíční náklady - FO 2 493 Kč. Celkové služby pro 1 osobu 4 843 Kč/měs.

Vynikající poloha u Duhy, která nabízí veškerou občanskou vybavenost v docházkové vzdálenosti - supermarket Albert, restaurační a sportovní vyžití, ZŠ, SŠ, dětské hřiště, pošta, knihovna,... Parkování je možné přímo u domu. MHD je vzdáleno cca 180 m (zas. autobusu Duha).

Kromě klasické prohlídky nabízím také prohlídku v reálném čase přes Whatsapp či FaceTime.

Parametry bytu

Cena
5 390 000 Kč /za nemovitost Spočítat hypotéku
Aktualizováno
20. 1. 2026
Adresa
náměstí Antonie Bejdové, Ostrava, Poruba
ID
28759
Stavba
Panelová
Stav objektu
Velmi dobrý
Patro
6. z 12
Lokalita objektu
Klidná část obce
Vlastnictví
Družstevní
Užitná plocha
85 m2
Zastavěná plocha
517 m2
Podlahová plocha
90 m2
Třída energetické náročnosti
C - Úsporná
Elektřina
230V
Plyn
Plynovod
Odpad
Veřejná kanalizace
Komunikace
Asfaltová
Telekomunikace
Internet
Voda
Vodovod
Lodžie
Výtah
Převod do OV

Kontaktovat makléře

Máte zájem o tento byt?

Tímto, v souladu s nařízením Evropského parlamentu a Rady (EU) 2016/679, v platném znění, prohlašuji, že mi je alespoň 16 let a uděluji tak svůj souhlas se zpracováním zadaných údajů (jméno, telefon, e-mail, ip adresa) společnosti B3 Technology, s.r.o., IČ: 07330600, se sídlem Novostavby 126/23, 435 11 Lom (správce dat), za účelem předání dotazu z tohoto formuláře Vámi vybranému inzerentovi a zpětného kontaktování mé osoby. Osobní údaje bude správce zpracovávat manuálně i automaticky přímo prostřednictvím svých zaměstnanců. Informace předané tímto formulářem budou uloženy v databázi správce maximálně po dobu 10 let. Odvolání souhlasu s uložením a zpracováním poskytnutých dat lze e-mailem na info@vitio.cz. V případě podezření na neoprávněné použití Vámi poskytnutých údajů máte právo předat podnět k šetření Úřadu pro ochranu osobních údajů. Více informací
Chystáte se prodat nemovitost?
Pomůžeme Vám!

Inzerát si prohlédlo 0 lidí

Prodejce

Ing. Natálie Skřičková

Ing. Natálie Skřičková

Hlídací pes

Chcete dostávat emailem podobné nabídky prodeje bytů 4+1 v Ostravě?

Podobné nemovitosti