Prodej bytu 2+kk, Šlapanice, 72 m2 (ID: 2558964)

Šlapanice

9 750 832 Kč /za nemovitost HYPOTÉKA od 43 580 Kč /za měsíc

(včetně DPH, včetně poplatků, včetně provize, včetně právního servisu)

Exkluzivní partneři v Šlapanicích

Informace k bytu

V rámci projektu Nové Šlapanice, který vyrůstá na začátku Šlapanic si Vám dovolujeme představit výjimečné a na danou lokalitu ojedinělé bydlení. Celý projekt je v nadstandartním provedení.
Představujeme Vám 3.etapu, která je zaměřena na výstavbu viladomů. Každý viladům má 3 bytové jednotky a ateliér Je to ideální místo pro ty, kteří hledají kvalitní, moderní, prostorné a dispozičně chytře řešené bydlení.
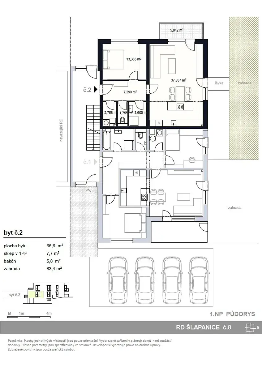
V tomto projektu nabízíme k prodeji byt 2+KK s balkonem 5,8m2, zahradou 83,4m2, sklepem 7,7m2 a 1 parkovacím stáním, vše je součástí kupní ceny.
Možnost dokoupení dalšího parkovacího stání za 300.000,-Kč

První tři kupující v tomto projektu mají BONUS - KUCHYŃSKOU LINKU VČETNĚ VŠECH SPOTŘEBIČŮ Zn. ELECTROLUX V HODNOTĚ 650.000,-Kč ZDARMA.
V celém bytě jsou venkovní žaluzie.

Viladům 8 na ulici Stanislava Hanzelky
Byt č.2 je umístěn v 1.NP
Dispozice: chodba 7,29m2, obývací pokoj s kuchyňským koutem 37,83m2 s přímým vstupem přes lávku na zahradu 83,4m2 a s balkonem 5,8m2, ložnice 13,36m2, koupelna se sprchovým koutem 3,6m2 a WC zvlášť 1,75m2 a technická místnost 2,75m2.

Standarty bytu, které jsou součástí kupní ceny:
- podlahy vinyl, keramická dlažba
- sanitární technika, sprchový kout, včetně sprchového setu, umyvadlo včetně baterie, vana, závěsné WC, zrcadlo, obklady -mramor
- interiérové dveře + obložkové zárubně, vstupní dveře
- podlahové vytápění, topné těleso
- klimatizace
- rekuperace


Samotná lokalita nabízí širokou škálu pracovních možností a veškerou potřebnou občanskou vybavenost a výbornou dojezdnost díky dálnici D1 a D2. Také zde v docházkové vzdálenosti nalezneme školu, školku, řadu obchodů, restaurací a služeb, trolejbusovou zastávku, ale především vlakové nádraží, z kterého jste na Hlavním vlakovém nádraží v Brně za 15 min.
Dokončení bytů je plánované na 3Q roku 2026. Výhodou je model financování nemovitosti.
Pokud by Vás nabídka tohoto či jakéhokoliv jiného bytu v tomto projektu zaujala, kontaktujte prosím makléře, u kterého se dozvíte více.
Děláme moderní bydlení dostupnější.

Parametry bytu

Cena
9 750 832 Kč /za nemovitost Spočítat hypotéku
Poznámka k ceně
včetně DPH, včetně poplatků, včetně provize, včetně právního servisu
Aktualizováno
19. 1. 2026
Adresa
Šlapanice
ID
00023
Stavba
Cihlová
Stav objektu
Ve výstavbě
Patro
1. z 2
Vybaveno
Částečně
Lokalita objektu
Okraj obce
Vlastnictví
Osobní
Užitná plocha
72 m2
Podlahová plocha
81 m2
Plocha zahrady
104 m2
Třída energetické náročnosti
B - Velmi úsporná
Ukazatel energetické náročnosti
73 kWh/m2 za rok
Odpad
Veřejná kanalizace
Komunikace
Asfaltová
Telekomunikace
Internet
Doprava
Vlak, Silnice, MHD
Topné těleso
Podlahové vytápění
Balkon
Sklep
Výtah
Parkování

Kontaktovat makléře

Realitní kancelář

LUX Real s.r.o

Moravské náměstí 754/13, Brno

Chystáte se prodat nemovitost?
Pomůžeme Vám!

Máte zájem o tento byt?

Tímto, v souladu s nařízením Evropského parlamentu a Rady (EU) 2016/679, v platném znění, prohlašuji, že mi je alespoň 16 let a uděluji tak svůj souhlas se zpracováním zadaných údajů (jméno, telefon, e-mail, ip adresa) společnosti B3 Technology, s.r.o., IČ: 07330600, se sídlem Novostavby 126/23, 435 11 Lom (správce dat), za účelem předání dotazu z tohoto formuláře Vámi vybranému inzerentovi a zpětného kontaktování mé osoby. Osobní údaje bude správce zpracovávat manuálně i automaticky přímo prostřednictvím svých zaměstnanců. Informace předané tímto formulářem budou uloženy v databázi správce maximálně po dobu 10 let. Odvolání souhlasu s uložením a zpracováním poskytnutých dat lze e-mailem na info@vitio.cz. V případě podezření na neoprávněné použití Vámi poskytnutých údajů máte právo předat podnět k šetření Úřadu pro ochranu osobních údajů. Více informací
Chystáte se prodat nemovitost?
Pomůžeme Vám!

Inzerát si prohlédlo 0 lidí

Prodejce

Jana Krejčí

Jana Krejčí

Hlídací pes

Chcete dostávat emailem podobné nabídky prodeje bytů 2+kk v Šlapanicích (okr. Brno-venkov)?

Podobné nemovitosti