Pronájem ubytování, Cheb, Pekařská, 720 m2 (ID: 2558715)

Pekařská, Cheb

140 000 Kč /za měsíc Získejte výhodnou HYPOTÉKU

(bez DPH)

Exkluzivní partneři v Chebu

Informace k nemovitosti

Společnost Marent Reality Vám nabízí k dlouhodobému pronájmu tuto nově připravovanou ubytovnu přímo v centru města Cheb hned vedle obchodního centra Tesco.
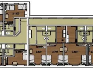
Jedná se o kompletně nově postavenou ubytovnu s celkem 15 pokoji pro celkem až
36 lidí. Ubytovna je rozdělena na 2 části – část s 9 pokoji a část se 6 pokoji. Velikost pokojů je od 24 m² do 36 m². Každá část má vlastní vstup se schodištěm, ale zároveň jsou vzájemně propojeni společnou chodbou. Preferujeme pronájem ubytovny jako celku, nebo možnost pronájmu buďto 9 pokojů nebo 6 pokojů. Jednotlivé pokoje pronajímat nelze. Ideální místo pro ubytování firemních zaměstnanců v čistém a příjemně zařízeném prostředí. Ubytovna ještě nebyla obývána.
Celá budova vč. nabízených prostor prošla generální rekonstrukcí – rozvody podlahového vytápění vč. výkonného a zároveň úsporného plynového kotle, nové zateplení, dřevěná eurookna, vinylové podlahy, nové obklady, nové rozvody elektřiny a vody, LED osvětlení atd. Všechny místnosti jsou kompletně vybaveny novým nábytkem na míru. Každá bytová jednotka se skládá ze zádveří, vlastní koupelny s toaletou a obývacího pokoje s kuchyňským koutem. Ve společných prostorách lze také využít kočárkárnu (sklad).
Zastávka MHD přímo před domem. Obchodní zóna (Tesco, prodejna elektro a další prodejny) přímo sousedí s touto nabízenou ubytovnou. Možnost parkování přímo před objektem na veřejném parkovišti nebo také ve vlastním uzavřeném areálu, kde se ubytovna nachází.
Prostory se v současné době připravují a k nastěhování budou dle domluvy v průběhu roku 2025.
Kontaktujte nás a přesvědčte se o našich kvalitách. Vždy pro Vás najdeme rychlé a kvalitní řešení. Více informací Vám rád poskytneme náš vedoucí správy nemovitostí.

Parametry nemovitosti

Cena
140 000 Kč /za měsíc
Poznámka k ceně
bez DPH
Aktualizováno
18. 1. 2026
Adresa
Pekařská, Cheb
Stavba
Cihlová
Stav objektu
Po rekonstrukci
Vybaveno
Ano
Lokalita objektu
Centrum obce
Užitná plocha
720 m2
Elektřina
230V, 400V
Plyn
Plynovod
Odpad
Veřejná kanalizace
Topení
Ústřední plynové
Komunikace
Asfaltová
Telekomunikace
Internet
Doprava
Vlak, Dálnice, Silnice, MHD
Voda
Vodovod
Zdroj topení
Plynový kondenzační kotel
Výtah
Parkování

Kontaktovat makléře

Máte zájem o tuto nemovistost?

Tímto, v souladu s nařízením Evropského parlamentu a Rady (EU) 2016/679, v platném znění, prohlašuji, že mi je alespoň 16 let a uděluji tak svůj souhlas se zpracováním zadaných údajů (jméno, telefon, e-mail, ip adresa) společnosti B3 Technology, s.r.o., IČ: 07330600, se sídlem Novostavby 126/23, 435 11 Lom (správce dat), za účelem předání dotazu z tohoto formuláře Vámi vybranému inzerentovi a zpětného kontaktování mé osoby. Osobní údaje bude správce zpracovávat manuálně i automaticky přímo prostřednictvím svých zaměstnanců. Informace předané tímto formulářem budou uloženy v databázi správce maximálně po dobu 10 let. Odvolání souhlasu s uložením a zpracováním poskytnutých dat lze e-mailem na info@vitio.cz. V případě podezření na neoprávněné použití Vámi poskytnutých údajů máte právo předat podnět k šetření Úřadu pro ochranu osobních údajů. Více informací
Chystáte se prodat nemovitost?
Pomůžeme Vám!

Inzerát si prohlédlo 7 lidí

Prodejce

Bc. Roman Štěrba, DiS.

Bc. Roman Štěrba, DiS.

Hlídací pes

Chcete dostávat emailem podobné nabídky pronájmu ubytování v Chebu?

Podobné nemovitosti