Prodej bytu 2+kk, Praha - Libeň, Prosecká, 47 m2

Prosecká, Praha, Libeň

6 490 000 Kč /za nemovitost HYPOTÉKA od 29 006 Kč /za měsíc
Exkluzivní partneři v Praze 8

Stěhovací služby

Výkup a prodej starého nábytku

Informace k bytu

Realitní společnost Dvořák&Petrášková reality vám nabízí k prodeji byt 2+kk na Praze 8 v Libni.

Do not hesitate to contact me i speak fluently English.

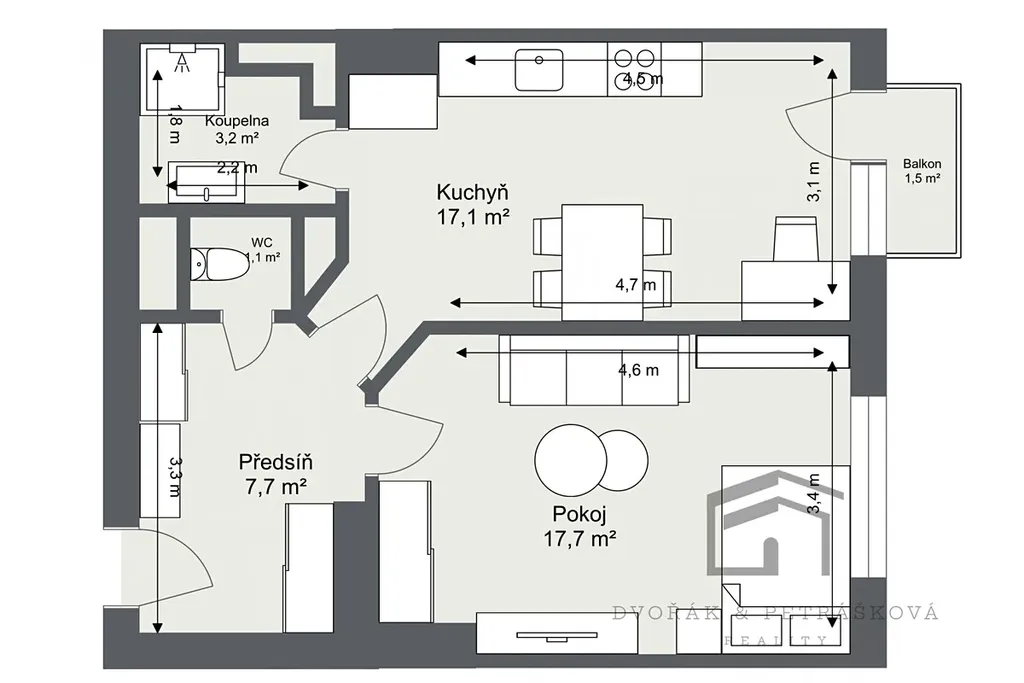
V nabídce pro Vás aktuálně máme dvoupokojový byt v pražské Libni před rekonstrukcí.
Tento byt s podlahovou plochou 46,8m2 se nachází na 2. podlaží 5 podlažního samostatně stojícího cihlového domu v ulici Prosecká.
Byt nabízí vstupní předsíň, kde najdete prostor pro možnost vestavby skříní a vstup na samostatné WC. Dále vstupy do dvou samostatných světlých pokojů se slušnou výměrou 18,84m2 a 17,78m2.

K bytu dále náleží k užívání 1,48m2 balkon přístupný z levého pokoje.
Měsíční platby do SVJ jsou 2732,– Kč.
Měsíční platba elektřiny za vytápění a ohřev vody bude cca. 2500 Kč. Plyn je v bytě taktéž zaveden a je možné ho případně využít pro ohřev vody a vytápění.
PENB kategorie F.

Samostatně stojící dům se nachází u křižovatky silnic Prosecká a Zenklova, minutu od tramvajové zastávky U Kříže. Odtud jste tramvají u OC Galerie Harfa za 16 minut.
Za 5 minut dojdete k autobusové zastávce Kundratka.
Ze zastávky jste na Metru C - Prosek za 12 minut.

Tento byt nejvíce zaujme zájemce o startovní bydlení s ideální polohou pro cestování centrem Prahy a nabídkou všech služeb co lokalita nabízí.

Samozřejmostí je rychlé vyřízení hypotéky bez poplatků, za velmi příznivých podmínek. Základní propočet hypotéky je možné získat při domluvené prohlídce nemovitosti. Pro více informací mě neváhejte kontaktovat.

Parametry bytu

Cena
6 490 000 Kč /za nemovitost Spočítat hypotéku
Aktualizováno
16. 1. 2026
Adresa
Prosecká, Praha, Libeň
ID
26002
Stavba
Cihlová
Stav objektu
Před rekonstrukcí
Patro
2. z 5
Vybaveno
Ne
Lokalita objektu
Centrum obce
Vlastnictví
Osobní
Užitná plocha
47 m2
Podlahová plocha
48 m2
Třída energetické náročnosti
F - Velmi nehospodárná
Ukazatel energetické náročnosti
306 kWh/m2 za rok
Elektřina
230V
Plyn
Plynovod
Odpad
Veřejná kanalizace
Topení
Lokální elektrické
Komunikace
Asfaltová
Telekomunikace
Internet
Doprava
Silnice, MHD, Autobus
Voda
Vodovod
Topné těleso
Přímotop, Infrapanel
Zdroj topení
Přímotop, Infrapanel
Zdroj teplé vody
Elektrokotel, Bojler - elektro
Balkon
Výtah
Bezbarierový přístup

Kontaktovat makléře

Máte zájem o tento byt?

Tímto, v souladu s nařízením Evropského parlamentu a Rady (EU) 2016/679, v platném znění, prohlašuji, že mi je alespoň 16 let a uděluji tak svůj souhlas se zpracováním zadaných údajů (jméno, telefon, e-mail, ip adresa) společnosti B3 Technology, s.r.o., IČ: 07330600, se sídlem Novostavby 126/23, 435 11 Lom (správce dat), za účelem předání dotazu z tohoto formuláře Vámi vybranému inzerentovi a zpětného kontaktování mé osoby. Osobní údaje bude správce zpracovávat manuálně i automaticky přímo prostřednictvím svých zaměstnanců. Informace předané tímto formulářem budou uloženy v databázi správce maximálně po dobu 10 let. Odvolání souhlasu s uložením a zpracováním poskytnutých dat lze e-mailem na info@vitio.cz. V případě podezření na neoprávněné použití Vámi poskytnutých údajů máte právo předat podnět k šetření Úřadu pro ochranu osobních údajů. Více informací
Chystáte se prodat nemovitost?
Pomůžeme Vám!

Inzerát si prohlédlo 1 lidí

Prodejce

Martin Dvořák

Martin Dvořák

Hlídací pes

Chcete dostávat emailem podobné nabídky prodeje bytů 2+kk v Praze 8?

Podobné nemovitosti