Prodej bytu 3+1, Komárov, Mládežnická, 65 m2

Mládežnická, Komárov

3 795 000 Kč /za nemovitost HYPOTÉKA od 16 961 Kč /za měsíc

(Kupní cena včetně provize a právního servisu.)

Exkluzivní partneři v Komárově

Informace k bytu

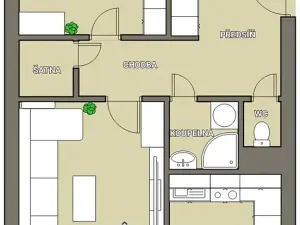
V zastoupení majitele nabízíme k prodeji prostorný byt 3+1 s lodžií a šatnou v lokalitě Komárov, ul. Mládežnická. Tento byt v osobním vlastnictví o celkové užitné ploše 65 m² se nachází v panelové budově na prvním nadzemním podlaží. Byt je určený k rekonstrukci, nicméně má velký potenciál s možnostmi úprav dle vašich představ a potřeb. K dispozici je také lodžie, prostorná komora na chodbě a sklep. Tato nabídka je skvělou příležitostí pro ty, kteří hledají bydlení nebo investici ve vyhledávané lokalitě. Nemovitost je umístěna v klidné lokalitě obce s velmi dobrou dostupností veškerých občanských služeb v okolí. Nízké náklady na bydlení. Nečekejte a kontaktujte nás ještě dnes ohledně prohlídky.

Parametry bytu

Cena
3 795 000 Kč /za nemovitost Spočítat hypotéku
Poznámka k ceně
Kupní cena včetně provize a právního servisu.
Náklady na bydlení
4533
Aktualizováno
10. 1. 2026
Adresa
Mládežnická, Komárov
ID
10111
Stavba
Panelová
Stav objektu
Před rekonstrukcí
Patro
1. z 4
Vybaveno
Částečně
Lokalita objektu
Sídliště
Vlastnictví
Osobní
Užitná plocha
65 m2
Podlahová plocha
76 m2
Třída energetické náročnosti
G - Mimořádně nehospodárná
Elektřina
230V
Odpad
Veřejná kanalizace
Komunikace
Asfaltová
Doprava
Silnice, Autobus
Voda
Vodovod
Topné těleso
Radiátory
Zdroj topení
Centrální dálkové
Zdroj teplé vody
Centrální dálkový ohřev
Sklep
Lodžie

Kontaktovat makléře

Realitní kancelář

Boček - reality

Jungmannova 156/2b, Hořovice

Chystáte se prodat nemovitost?
Pomůžeme Vám!

Máte zájem o tento byt?

Tímto, v souladu s nařízením Evropského parlamentu a Rady (EU) 2016/679, v platném znění, prohlašuji, že mi je alespoň 16 let a uděluji tak svůj souhlas se zpracováním zadaných údajů (jméno, telefon, e-mail, ip adresa) společnosti B3 Technology, s.r.o., IČ: 07330600, se sídlem Novostavby 126/23, 435 11 Lom (správce dat), za účelem předání dotazu z tohoto formuláře Vámi vybranému inzerentovi a zpětného kontaktování mé osoby. Osobní údaje bude správce zpracovávat manuálně i automaticky přímo prostřednictvím svých zaměstnanců. Informace předané tímto formulářem budou uloženy v databázi správce maximálně po dobu 10 let. Odvolání souhlasu s uložením a zpracováním poskytnutých dat lze e-mailem na info@vitio.cz. V případě podezření na neoprávněné použití Vámi poskytnutých údajů máte právo předat podnět k šetření Úřadu pro ochranu osobních údajů. Více informací
Chystáte se prodat nemovitost?
Pomůžeme Vám!

Inzerát si prohlédlo 0 lidí

Prodejce

Matyáš Boček

Matyáš Boček

Hlídací pes

Chcete dostávat emailem podobné nabídky prodeje bytů 3+1 v Komárově (okr. Beroun)?

Podobné nemovitosti