Prodej činžovního domu, Husinec, Jeronýmova, 400 m2 (ID: 2549712)

Jeronýmova, Husinec

7 600 000 Kč /za nemovitost HYPOTÉKA od 33 967 Kč /za měsíc
Exkluzivní partneři v Husinci

Výkup a prodej starého nábytku

Informace k nemovitosti

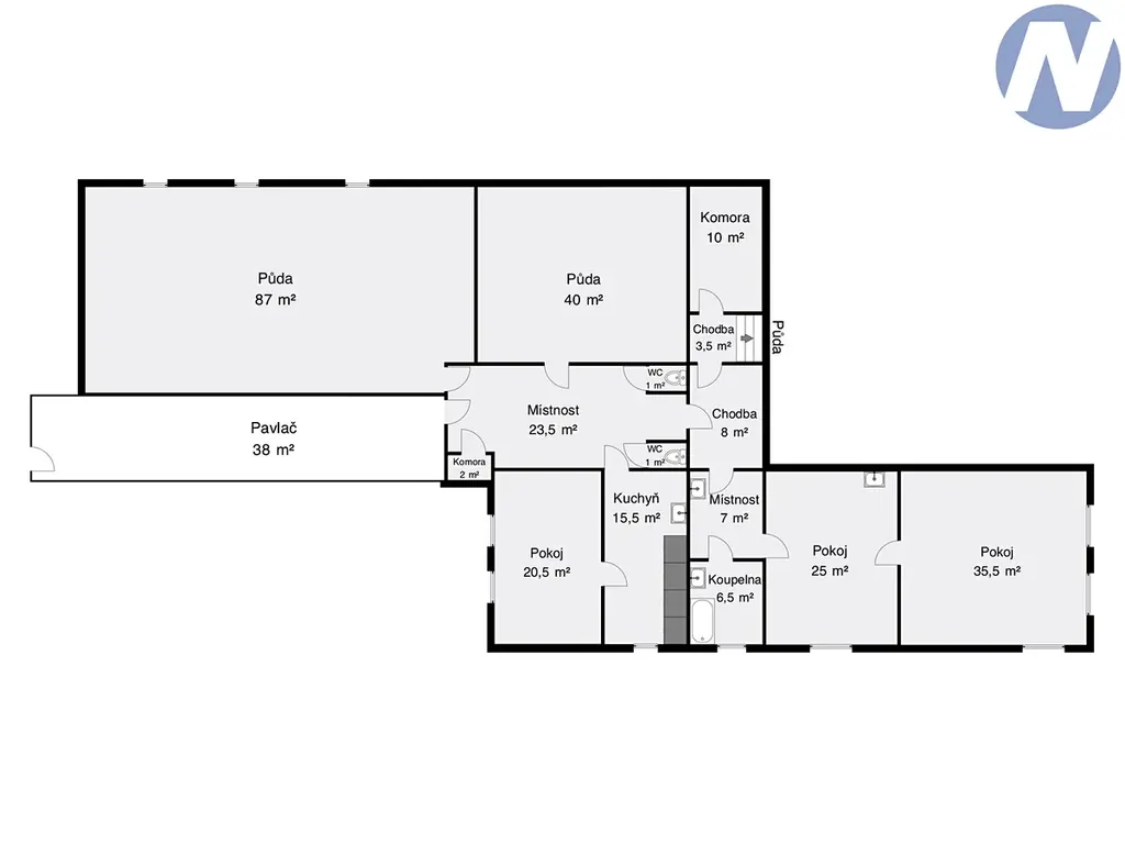
Nabízím k prodeji dům se 3 byty a potenciálem na vytvoření dalších bytů, v historickém centru města Husinec. Jedná se o dvoupatrový objekt + velká půda, s uzavřeným dvorem a ovocným sadem. Obytnou část tvoří 3 bytové jednotky, 2+1, 1+1 a 3+1, a rozsáhlé půdní prostory, stodoly a další nebytové prostory vhodné k vytvoření dalších bytů. V přízemí se nachází obchod se 2 výlohami a s vchodem z ulice. Dům je z části podsklepen. Na obytnou část stavebně navazují hospodářské budovy a uzavírají dvůr do tvaru písmena U. Zde je množství dalších prostor, v přízemí je maštal, konírna, patrová stodola, technické místnosti a v patře jsou sýpky (půdy). Objekt prošel v roce 2000 rekonstrukcí střechy, fasády. Dům je napojen na obecní vodovod, obecní kanalizaci a plyn. Ohřev vody zajišťují bojlery a vytápění je plynovým kotlem a kamny na tuhá paliva. Na zahradě je kopaná studna s vodárnou. Do domu je vchod z ulice přes dřevěná vrata a z průjezdu jsou jednotlivé vstupy do bytů (2+1, 1+1). Z průchodu je vstup do uzavřeného dvora. Ze dvora je vstup do bytu 3+1 o výměře 144 m2 přes pavlač. Do zahrady je průjezd skrze stodolu. V místě je veškerá občanská vybavenost. Na prodej je celý objekt. Více informací u makléře.

Parametry nemovitosti

Cena
7 600 000 Kč /za nemovitost Spočítat hypotéku
Aktualizováno
7. 1. 2026
Adresa
Jeronýmova, Husinec
ID
43819
Stavba
Cihlová
Stav objektu
Dobrý
Vybaveno
Částečně
Lokalita objektu
Centrum obce
Užitná plocha
400 m2
Zastavěná plocha
1479 m2
Plocha zahrady
2845 m2
Elektřina
230V, 400V
Plyn
Plynovod
Odpad
Veřejná kanalizace
Komunikace
Asfaltová
Doprava
Silnice, Autobus
Voda
Vodovod
Topné těleso
Radiátory, Krb, Kamna
Zdroj topení
Plynový kotel, Krb, Kamna
Zdroj teplé vody
Bojler - elektro

Kontaktovat makléře

Realitní kancelář

NEMO reality, s.r.o.

Kostelní náměstí 17, Prachatice

Chystáte se prodat nemovitost?
Pomůžeme Vám!

Máte zájem o tuto nemovistost?

Tímto, v souladu s nařízením Evropského parlamentu a Rady (EU) 2016/679, v platném znění, prohlašuji, že mi je alespoň 16 let a uděluji tak svůj souhlas se zpracováním zadaných údajů (jméno, telefon, e-mail, ip adresa) společnosti B3 Technology, s.r.o., IČ: 07330600, se sídlem Novostavby 126/23, 435 11 Lom (správce dat), za účelem předání dotazu z tohoto formuláře Vámi vybranému inzerentovi a zpětného kontaktování mé osoby. Osobní údaje bude správce zpracovávat manuálně i automaticky přímo prostřednictvím svých zaměstnanců. Informace předané tímto formulářem budou uloženy v databázi správce maximálně po dobu 10 let. Odvolání souhlasu s uložením a zpracováním poskytnutých dat lze e-mailem na info@vitio.cz. V případě podezření na neoprávněné použití Vámi poskytnutých údajů máte právo předat podnět k šetření Úřadu pro ochranu osobních údajů. Více informací
Chystáte se prodat nemovitost?
Pomůžeme Vám!

Inzerát si prohlédlo 0 lidí

Prodejce

Bc. Monika Kálalová

Bc. Monika Kálalová

Hlídací pes

Chcete dostávat emailem podobné nabídky prodeje činžovních domů v Husinci (okr. Prachatice)?

Podobné nemovitosti