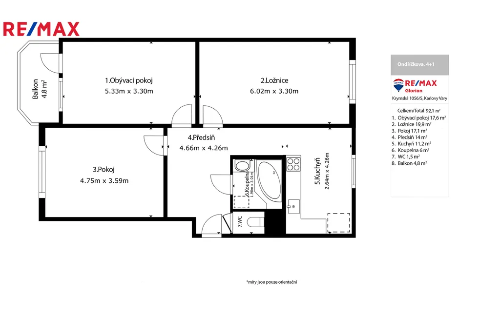
Prodej bytu 3+1, Otovice, K Panelárně, 83 m2

K Panelárně, Otovice

4 990 000 Kč /za nemovitost HYPOTÉKA od 22 302 Kč /za měsíc
Exkluzivní partneři v Otovicích

Informace k bytu

Hledáte prostorné a bezstarostné bydlení v klidné části Karlových Varů s vlastní garáží?
Pak by vás mohl zaujmout tento velmi pěkný byt 3+1 s balkonem o celkové ploše 83 m², který se nachází v Otovicích u Panelárny.

Byt je umístěn ve 2. nadzemním podlaží udržovaného bytového domu z roku 1999. Před přibližně 3 lety prošel kompletní rekonstrukcí, takže je ve výborném stavu a připraven k okamžitému nastěhování bez dalších investic.

Velkou předností je vlastní garáž o velikosti cca 20 m², která se nachází přímo v budově a je vybavena elektrickým ovládáním vrat. K tomu navíc parkovací stání přímo vedle garáže, což je v dnešní době obrovský benefit.

Dispozice bytu je velmi praktická – všechny pokoje jsou samostatné, což ocení jak rodina, tak i ti, kteří chtějí mít dostatek soukromí. Součástí bytu je také balkon, ideální pro ranní kávu nebo večerní relax.

Dům je dlouhodobě udržovaný, v loňském roce proběhlo zateplení fasády, což má pozitivní vliv na energetickou úsporu. Vytápění i ohřev teplé vody jsou řešeny centrálně.

Otovice jsou vyhledávanou a klidnou částí Karlových Varů s dobrou dostupností do centra města, okolní přírody i základní občanské vybavenosti. Lokalita je ideální pro ty, kteří chtějí bydlet v klidu, ale zároveň mít město na dosah.

Parametry bytu

Cena
4 990 000 Kč /za nemovitost Spočítat hypotéku
Aktualizováno
6. 1. 2026
Adresa
K Panelárně, Otovice
ID
294-NP01721
Stavba
Panelová
Stav objektu
Velmi dobrý
Patro
2. z 5
Vybaveno
Částečně
Lokalita objektu
Klidná část obce
Vlastnictví
Osobní
Užitná plocha
83 m2
Zastavěná plocha
471 m2
Podlahová plocha
83 m2
Třída energetické náročnosti
D - Méně úsporná
Elektřina
230V
Plyn
Plynovod
Odpad
Veřejná kanalizace
Voda
Vodovod
Balkon
Garáž
Sklep
Parkování

Kontaktovat makléře

Realitní kancelář

Logo RE/MAX Glorion

RE/MAX Glorion

Krymská 1056/5, Karlovy Vary

Chystáte se prodat nemovitost?
Pomůžeme Vám!

Máte zájem o tento byt?

Tímto, v souladu s nařízením Evropského parlamentu a Rady (EU) 2016/679, v platném znění, prohlašuji, že mi je alespoň 16 let a uděluji tak svůj souhlas se zpracováním zadaných údajů (jméno, telefon, e-mail, ip adresa) společnosti B3 Technology, s.r.o., IČ: 07330600, se sídlem Novostavby 126/23, 435 11 Lom (správce dat), za účelem předání dotazu z tohoto formuláře Vámi vybranému inzerentovi a zpětného kontaktování mé osoby. Osobní údaje bude správce zpracovávat manuálně i automaticky přímo prostřednictvím svých zaměstnanců. Informace předané tímto formulářem budou uloženy v databázi správce maximálně po dobu 10 let. Odvolání souhlasu s uložením a zpracováním poskytnutých dat lze e-mailem na info@vitio.cz. V případě podezření na neoprávněné použití Vámi poskytnutých údajů máte právo předat podnět k šetření Úřadu pro ochranu osobních údajů. Více informací
Chystáte se prodat nemovitost?
Pomůžeme Vám!

Inzerát si prohlédlo 1 lidí

Prodejce

Mihály Szozánszki

Mihály Szozánszki

Hlídací pes

Chcete dostávat emailem podobné nabídky prodeje bytů 3+1 v Otovicích (okr. Karlovy Vary)?

Podobné nemovitosti