Prodej bytu 2+kk, Praha - Hlubočepy, Silurská, 64 m2

Silurská, Praha, Hlubočepy

9 875 470 Kč /za nemovitost HYPOTÉKA od 44 137 Kč /za měsíc

(Náklady na bydlení 6.288 Kč, Cena bez parkovacího stání, parkovací stání za cenu 452 094 Kč)

Exkluzivní partneři v Praze 5

Stěhovací služby

Výkup a prodej starého nábytku

Informace k bytu

Exkluzivní a ihned k dispozici - byt 2+kk na Barrandově ve 2. nadzemním podlaží, který Vás ohromí svou prostorností a zajímavou dispozicí. Tento byt je součástí moderní novostavby od renomovaného Crestylu, známého vysokým standardem a kvalitou provedení. Byt je v uzavřeném areálu, což zaručuje Vaši bezpečnost a soukromí. K dispozici máte také vlastní místo v garáži.

Byt vyniká mimořádnou prostorností, navíc máte k dispozici balkón i terasu. Podle sluníčka si můžete vybrat, kde budete trávit svůj čas. A jestliže v budoucnu budete potřebovat více místností, lze dispozici bytu snadno upravit na tři pokoje a přidat tak další pokoj podle Vašich potřeb.

Byt se prodává s kompletním vybavením.

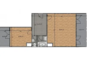
Rozměry jednotlivých částí bytu dle prohlášení vlastníka:

Předsíň: 11,7 m2
Obývací pokoj s kuchyňským koutem: 32,3 m2
Ložnice: 15,3 m2
Koupelna: 3,6 m2
WC: 2 m2
Terasa: 9,4 m2
Balkón: 6,8 m2

Celková výměra podlahové plochy bytu včetně balkónu a terasy činí 81,1 m2.

Orientační náklady na provoz bytu:

SVJ (voda, společná elektřina, úklid, odpad,..): 5 568 Kč
Elektřina: 700 Kč

Bytový dům se nachází v uzavřeném areálu, kde se nachází například kavárna a barber shop, což umožňuje pohodlí přímo na dosah ruky.

Dům byl zkolaudovaný v roce 2009 a je velmi dobře obhospodařován.

Dopravní spojení je také vynikající, tramvajovou zastávku máte kousek od domu.

Pokud jste milovníky procházek, nedaleko na Vás čeká Prokopské údolí. Barrandov nabízí také krásné výhledy na Vltavu.

Pokud Vás tato nabídka zaujala, neváhejte se na mě obrátit. Vaše Blanka

Parametry bytu

Cena
9 875 470 Kč /za nemovitost Spočítat hypotéku
Poznámka k ceně
Náklady na bydlení 6.288 Kč, Cena bez parkovacího stání, parkovací stání za cenu 452 094 Kč
Aktualizováno
29. 1. 2026
Adresa
Silurská, Praha, Hlubočepy
ID
3
Stavba
Skeletová
Stav objektu
Novostavba
Patro
2. z 5
Vybaveno
Částečně
Vlastnictví
Osobní
Užitná plocha
64 m2
Podlahová plocha
81 m2
Třída energetické náročnosti
D - Méně úsporná
Odpad
Veřejná kanalizace
Komunikace
Asfaltová
Doprava
Vlak, Dálnice, Silnice, MHD, Autobus
Voda
Vodovod
Balkon
Terasa
Výtah
Bezbarierový přístup
Parkování

Kontaktovat makléře

Máte zájem o tento byt?

Tímto, v souladu s nařízením Evropského parlamentu a Rady (EU) 2016/679, v platném znění, prohlašuji, že mi je alespoň 16 let a uděluji tak svůj souhlas se zpracováním zadaných údajů (jméno, telefon, e-mail, ip adresa) společnosti B3 Technology, s.r.o., IČ: 07330600, se sídlem Novostavby 126/23, 435 11 Lom (správce dat), za účelem předání dotazu z tohoto formuláře Vámi vybranému inzerentovi a zpětného kontaktování mé osoby. Osobní údaje bude správce zpracovávat manuálně i automaticky přímo prostřednictvím svých zaměstnanců. Informace předané tímto formulářem budou uloženy v databázi správce maximálně po dobu 10 let. Odvolání souhlasu s uložením a zpracováním poskytnutých dat lze e-mailem na info@vitio.cz. V případě podezření na neoprávněné použití Vámi poskytnutých údajů máte právo předat podnět k šetření Úřadu pro ochranu osobních údajů. Více informací
Chystáte se prodat nemovitost?
Pomůžeme Vám!

Inzerát si prohlédlo 4 lidí

Prodejce

Bc. Tereza Gibiš

Bc. Tereza Gibiš

Hlídací pes

Chcete dostávat emailem podobné nabídky prodeje bytů 2+kk v Praze 5?

Podobné nemovitosti