Prodej bytu 4+kk, Praha - Košíře, U Vojanky, 126 m2 (ID: 2545089)

U Vojanky, Praha, Košíře

20 490 000 Kč /za nemovitost HYPOTÉKA od 91 578 Kč /za měsíc
Exkluzivní partneři v Praze 5

Stěhovací služby

Výkup a prodej starého nábytku

Informace k bytu

Prodej bytu 4+KK, 125,81 m² + zahrada 188 m² + garážové stání
Ulice U Vojanky 1216/3a, Praha 5 – Košíře

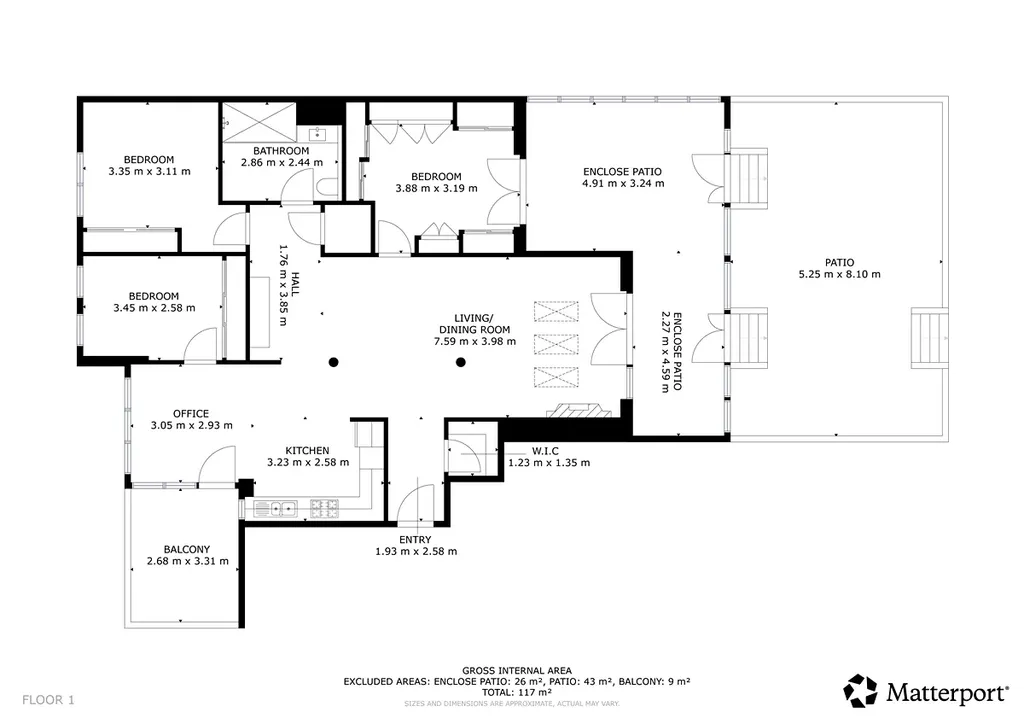
Nabízíme k prodeji prostorný byt 4+KK v osobním vlastnictví o celkové výměře 125,81 m², se zahradou o rozloze 188 m² a vlastním garážovým stáním. Byt se nachází ve 4. nadzemním podlaží domu v klidné části Prahy 5 – Košíře, a to s orientací na východ a západ.

Součástí prodeje je plně vybavená kuchyňská linka se zabudovanými spotřebiči, vestavěné skříně a další nábytek.

Byt má nízké provozní náklady – předpis záloh na rok 2025 činí 12 080 Kč měsíčně + elektřina a internet.

Dispozice bytu:
Za vstupními dveřmi se nachází předsíň (3,6 m²) navazující na prostornou halu (18,1 m²) propojenou s obývacím pokojem (17,9 m²), kuchyní (7,9 m²) a jídelním koutem (7,8 m²).
Z kuchyně je vstup na východní terasu (3,35 m²) a dále do obytného pokoje (12,6 m²).
V zadní části haly se nachází chodba (2,5 m²), z níž je vstup do pokoje (14,1 m²), koupelny s toaletou (9,5 m²) a pokoje (10 m²). M2 vychází z prohlášení vlastníka, skutečná užitná plocha východní terasy je 7,7 m2 a západní 23,60 m2
Na západní straně je přístup na terasu (11,8 m²) a následně do zahrady o velikosti 188 m².
K bytu dále náleží sklepní kóje (6,16 m²) a garážové stání v 1. NP domu.

Energetická náročnost budovy: třída D – méně úsporná.

Tato žádaná a atraktivní lokalita Košíř nabízí klidné bydlení s plnou občanskou vybaveností, výbornou dopravní dostupností a blízkostí zeleně.

Byt je v osobním vlastnictví a lze jej financovat hypotečním úvěrem.
V rámci služeb realitní kanceláře Vám zajistíme kompletní hypoteční servis zdarma, včetně poplatků banky.

Cena: 20 490 000 Kč

Doporučujeme všem, kteří hledají prostorné, kvalitní a klidné bydlení v blízkosti centra Prahy.

Parametry bytu

Cena
20 490 000 Kč /za nemovitost Spočítat hypotéku
Aktualizováno
2. 1. 2026
Adresa
U Vojanky, Praha, Košíře
ID
02102025
Stavba
Cihlová
Stav objektu
Velmi dobrý
Patro
4.
Vybaveno
Ano
Lokalita objektu
Klidná část obce
Vlastnictví
Osobní
Užitná plocha
126 m2
Podlahová plocha
141 m2
Plocha zahrady
188 m2
Třída energetické náročnosti
D - Méně úsporná
Sklep
Terasa
Výtah
Bezbarierový přístup
Parkování

Kontaktovat makléře

Máte zájem o tento byt?

Tímto, v souladu s nařízením Evropského parlamentu a Rady (EU) 2016/679, v platném znění, prohlašuji, že mi je alespoň 16 let a uděluji tak svůj souhlas se zpracováním zadaných údajů (jméno, telefon, e-mail, ip adresa) společnosti B3 Technology, s.r.o., IČ: 07330600, se sídlem Novostavby 126/23, 435 11 Lom (správce dat), za účelem předání dotazu z tohoto formuláře Vámi vybranému inzerentovi a zpětného kontaktování mé osoby. Osobní údaje bude správce zpracovávat manuálně i automaticky přímo prostřednictvím svých zaměstnanců. Informace předané tímto formulářem budou uloženy v databázi správce maximálně po dobu 10 let. Odvolání souhlasu s uložením a zpracováním poskytnutých dat lze e-mailem na info@vitio.cz. V případě podezření na neoprávněné použití Vámi poskytnutých údajů máte právo předat podnět k šetření Úřadu pro ochranu osobních údajů. Více informací
Chystáte se prodat nemovitost?
Pomůžeme Vám!

Inzerát si prohlédlo 5 lidí

Prodejce

Jiří Škarvada

Jiří Škarvada

Hlídací pes

Chcete dostávat emailem podobné nabídky prodeje bytů 4+kk v Praze 5?

Podobné nemovitosti