Prodej bytu 3+kk, Praha, Borovanského, 70 m2

Borovanského, Praha 5

8 600 000 Kč /za nemovitost HYPOTÉKA od 38 437 Kč /za měsíc
Exkluzivní partneři v Praze 5

Stěhovací služby

Výkup a prodej starého nábytku

Informace k bytu

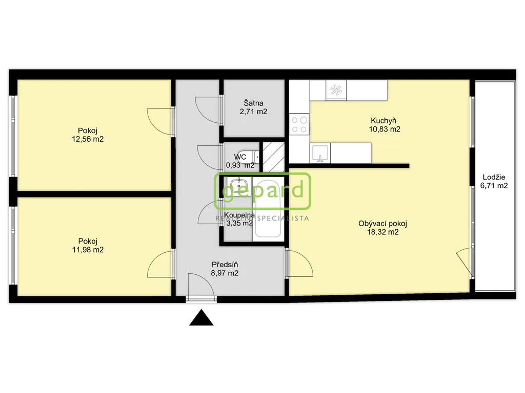
Hledáte pohodlné městské bydlení s perfektní dostupností a přírodou na dosah? Nabízíme vám prostorný, světlý byt v oblíbené lokalitě Prahy 5 – Stodůlky. Byt se nachází v 7. patře kompletně zrekonstruovaného domu (nová fasáda, střecha, lodžie) s výborně fungujícím SVJ a pouhými 23 jednotkami.
Dispozice, která vás nadchne:
• Prostorný obývací pokoj propojený s moderní kuchyní do tvaru U
• Kuchyňská linka na míru od truhláře, vybavená spotřebiči a designem, který zaujme na první pohled
• Dvě samostatné ložnice pro maximální soukromí
• Koupelna + samostatné WC
• Velká šatna/komora s nadstandardním úložným prostorem, pračkou a sušičkou
Podlahy: vinyl v obytných místnostech, dlažba v chodbě, koupelně, WC i komoře.
Byt je orientovaný na jihovýchod, takže je krásně světlý a slunný. Lodžie jsou zasklené, k bytu patří sklep (3,3 m²) a v domě najdete i kolárnu.
Lokalita, která má vše:
Stodůlky = kompletní občanská vybavenost. V docházkové vzdálenosti školy, školky, obchody, restaurace, lékárny i zdravotnická zařízení. Skvělá dopravní dostupnost – metro B a autobusová zastávka pár minut od domu. A pro milovníky přírody? Prokopské a Dalejské údolí jsou doslova za rohem.
Byt je ve skvělém stavu, připravený k nastěhování duben/květen. V případě zájmu je možné se domluvit na ponechání části zařízení.
Zaujalo vás to? Zavolejte nám – rádi vám byt osobně ukážeme a pomůžeme i s financováním.

Parametry bytu

Cena
8 600 000 Kč /za nemovitost Spočítat hypotéku
Aktualizováno
30. 12. 2025
Adresa
Borovanského, Praha 5
ID
11876
Stavba
Panelová
Stav objektu
Velmi dobrý
Patro
7. z 7
Vybaveno
Částečně
Lokalita objektu
Sídliště
Vlastnictví
Osobní
Užitná plocha
70 m2
Zastavěná plocha
260 m2
Podlahová plocha
78 m2
Třída energetické náročnosti
C - Úsporná
Elektřina
230V
Plyn
Plynovod
Odpad
Veřejná kanalizace
Telekomunikace
Internet
Doprava
Silnice, MHD, Autobus
Sklep
Lodžie
Výtah

Kontaktovat makléře

Máte zájem o tento byt?

Tímto, v souladu s nařízením Evropského parlamentu a Rady (EU) 2016/679, v platném znění, prohlašuji, že mi je alespoň 16 let a uděluji tak svůj souhlas se zpracováním zadaných údajů (jméno, telefon, e-mail, ip adresa) společnosti B3 Technology, s.r.o., IČ: 07330600, se sídlem Novostavby 126/23, 435 11 Lom (správce dat), za účelem předání dotazu z tohoto formuláře Vámi vybranému inzerentovi a zpětného kontaktování mé osoby. Osobní údaje bude správce zpracovávat manuálně i automaticky přímo prostřednictvím svých zaměstnanců. Informace předané tímto formulářem budou uloženy v databázi správce maximálně po dobu 10 let. Odvolání souhlasu s uložením a zpracováním poskytnutých dat lze e-mailem na info@vitio.cz. V případě podezření na neoprávněné použití Vámi poskytnutých údajů máte právo předat podnět k šetření Úřadu pro ochranu osobních údajů. Více informací
Chystáte se prodat nemovitost?
Pomůžeme Vám!

Inzerát si prohlédlo 1 lidí

Prodejce

Mgr. Kristýna Kitnerová

Mgr. Kristýna Kitnerová

Hlídací pes

Chcete dostávat emailem podobné nabídky prodeje bytů 3+kk v Praze 5?

Podobné nemovitosti