Prodej bytu 3+1, České Budějovice, L. M. Pařízka, 61 m2 (ID: 2542324)

L. M. Pařízka, České Budějovice 7

4 940 000 Kč /za nemovitost HYPOTÉKA od 22 079 Kč /za měsíc
Exkluzivní partneři v Českých Budějovicích

Výkup a prodej starého nábytku

Informace k bytu

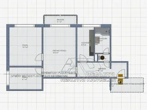
Ve výhradním zastoupení vlastníka nabízíme k prodeji panelový byt velikosti 3+1 s balkonem umístěný v bytovém domě v lokalitě ulice L.M.Pařízka (Linecké předměstí) v Českých Budějovicích. Celková plocha bytu 67m2, podlahová plocha bytu [61,5m2] + balkon [3,3m2] + sklep [2,2m2].
Byt je částečně modernizovaný (provedeno zděné bytové jádro), obložená koupelna a WC, položené podlahy (keramická dlažba v rozsahu obytných místností), plastová okna: Byt je vyklizený vyklizený. Okna plastová. Bytový dům je modernizovaný (částečně zateplený).

Umístěným v klidné lokalitě a zároveň v dosahu centra nabízí obyvatelům dostupnost veškeré vybavenosti (Nemocnice, veřejná doprava včetně vlaku – jižní zastávka 180m, obchody, školy…).

Svým novým majitelům byt nabízí prostorný obývací pokoj osvětlený velkým francouzským oknem s dveřmi na balkon, balkon orientovaný na východ, do pokoje a ložnice orientovány na sever a východ. V předsíni je pak prostor pro umístění vestavěných skříní. Vyzděním původního bytového jádra vznikl spojený koupelny a WC. Byt je kompletně vyklizený (pouze kuchyňská linka bez sporáku). V bytě jsou osazena plastová okna. Orientace oken bytu (obytných místností) na východ a sever.
Dispozice bytu: obývací pokoj [18,4m2], samostatná ložnice [14,3m2], pokoj [8,1m2], kuchyně [6,5m2], předsíň [8,5m2], koupelna WC [5,4m2]. K bytu je k dispozici sklepní kóje v 1.NP (technické podlaží – přízemí) domu o výměře cca [2,2m2]. Topení v bytě centrální / ústřední dálkové (radiátory), podružné měření spotřeby teplé a studené vody (vodoměry), samostatné měření spotřeby elektřiny (elektroměr). V bytě je možnost připojení internetu (Starnet) a STA.
Byt je umístěn ve 5.nadzemním podlaží (4.obytné patro) panelového bytového domu s (novým) výtahem, bytový dům je průběžně udržovaný.
Energetická náročnost budovy / PENB v hodnotě [D].
Vlastnictví: bytová jednotka ve vlastnictví (osobní vlastnictví) zapsaná v katastru nemovitostí. Financování koupě lze řešit hypotékou čí úvěrem banky.
Veškerá občanská vybavenost včetně MHD je v dosahu, základní škola, školka, obchody, služby, banka v blízkosti. Parkování na parkovišti podél domu / v blízkosti poblíž domu – parkovací zóna.
Byt je k dispozici po dohodě ihned.
Aktuální cena uvedená shora kompletní cenou včetně provize RK a majetkoprávního servisu spojeného s koupí nemovitosti.
Pro bližší informace a termíny prohlídky volejte makléře (Jindřich DVOŘÁK, Dipl.Tech).
Zakázka výhradně v nabídce realitní kanceláře AD-reality CB České Budějovice.

Parametry bytu

Cena
4 940 000 Kč /za nemovitost Spočítat hypotéku
Aktualizováno
27. 12. 2025
Adresa
L. M. Pařízka, České Budějovice 7
ID
AD-2727-2025
Stavba
Panelová
Stav objektu
Dobrý
Patro
5.
Vybaveno
Částečně
Lokalita objektu
Klidná část obce
Vlastnictví
Osobní
Užitná plocha
61 m2
Podlahová plocha
67 m2
Třída energetické náročnosti
D - Méně úsporná
Elektřina
230V
Odpad
Veřejná kanalizace
Komunikace
Dlážděná
Telekomunikace
Internet
Doprava
Vlak, Dálnice, Silnice, MHD, Autobus
Voda
Vodovod
Topné těleso
Radiátory
Zdroj topení
Ústřední dálkové, Centrální dálkové
Zdroj teplé vody
Centrální dálkový ohřev
Balkon
Sklep
Výtah

Kontaktovat makléře

Realitní kancelář

AD reality CB

Dr. Stejskala 108/7, České Budějovice

Chystáte se prodat nemovitost?
Pomůžeme Vám!

Máte zájem o tento byt?

Tímto, v souladu s nařízením Evropského parlamentu a Rady (EU) 2016/679, v platném znění, prohlašuji, že mi je alespoň 16 let a uděluji tak svůj souhlas se zpracováním zadaných údajů (jméno, telefon, e-mail, ip adresa) společnosti B3 Technology, s.r.o., IČ: 07330600, se sídlem Novostavby 126/23, 435 11 Lom (správce dat), za účelem předání dotazu z tohoto formuláře Vámi vybranému inzerentovi a zpětného kontaktování mé osoby. Osobní údaje bude správce zpracovávat manuálně i automaticky přímo prostřednictvím svých zaměstnanců. Informace předané tímto formulářem budou uloženy v databázi správce maximálně po dobu 10 let. Odvolání souhlasu s uložením a zpracováním poskytnutých dat lze e-mailem na info@vitio.cz. V případě podezření na neoprávněné použití Vámi poskytnutých údajů máte právo předat podnět k šetření Úřadu pro ochranu osobních údajů. Více informací
Chystáte se prodat nemovitost?
Pomůžeme Vám!

Inzerát si prohlédlo 0 lidí

Prodejce

Jindřich DVOŘÁK, Dipl.Tech.

Jindřich DVOŘÁK, Dipl.Tech.

Hlídací pes

Chcete dostávat emailem podobné nabídky prodeje bytů 3+1 v Českých Budějovicích?

Top nabídky

Podobné nemovitosti